|
|
|
| Larry Stein Oklahoma County Assessor (405) 713-1200 - Public Access System |
|
|
|
|
|
|
| Real Property Display - Screen Produced 3/5/2026 3:25:53 AM | ||||
|---|---|---|---|---|
| Account: R119702500 | Type: Residential | Location: |
1308 NE 42ND ST |
|
| Building Name/Occupant: |
|
OKLAHOMA CITY |
||
| Owner Name 1: | THALASSOPHILE LLC |
Parcel PIN#: |
2656-11-970-2500 |
|
| Owner Name 2: | 1308 PROTECTED SERIES | 1/4 section #: |
2656 |
|
| Owner Name 3: | Parent Acct: |
|
||
| Billing Address: | 3225 MCLEOD DR, Unit 777 | Tax District: |
|
|
| City, State, Zip | LAS VEGAS, NV 89121-2257 | School System: |
Oklahoma City #89 |
|
|
Country: (If noted) |
Land Size: |
0.1928 Acres |
||
|
Land Value: 14,280 |
|
|||
|
Sect 14-T12N-R3W Qtr NW |
PARK ESTATES ADD
Block
003
Lot
000
|
|||
| Full Legal Description: PARK ESTATES ADD 003 000 W53FT OF LOT 8 & E7FT OF LOT 9 |
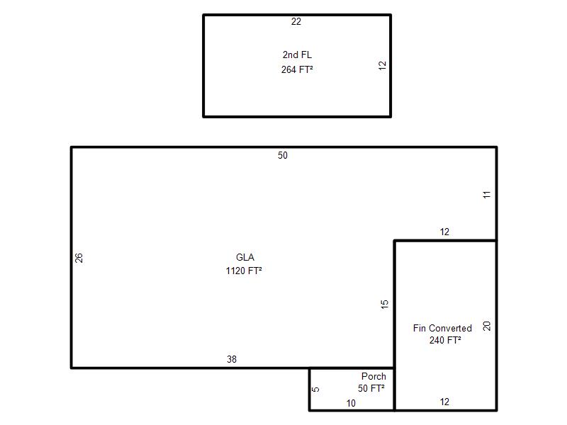
| Photo & Sketch (if available) | Comp Sales (ordered by relevancy) |
|
||||||||||||||||||
|
||||||||||||||||||||
| Value History (*The County Treasurer 405-713-1300 posts & collects actual tax amounts. Contact information HERE) | |||||||||||||
|---|---|---|---|---|---|---|---|---|---|---|---|---|---|
| Year | Market Value | Taxable Mkt Value | Gross Assessed | Exemption | Net Assessed | Millage | Est. Tax | Tax Savings | |||||
|
2025 |
113,000 |
77,387 |
8,512 |
0 |
8,512 |
122.90 |
$1,046 |
$481 |
|||||
|
2024 |
99,000 |
73,702 |
8,107 |
0 |
8,107 |
123.89 |
$1,004 |
$345 |
|||||
|
2023 |
93,000 |
70,193 |
7,720 |
0 |
7,720 |
122.82 |
$948 |
$308 |
|||||
|
2022 |
84,000 |
66,851 |
7,353 |
0 |
7,353 |
117.63 |
$865 |
$222 |
|||||
|
2021 |
80,500 |
63,668 |
7,003 |
0 |
7,003 |
117.70 |
$824 |
$218 |
|||||
| Property Account Status/Adjustments/Exemptions | ||
|---|---|---|
| Account # | Exemption Description | Amount |
|
R119702500 |
5% Capped Account |
0 |
| Property Deed Transaction History (Recorded in the County Clerk's Office) | ||||||||||
|---|---|---|---|---|---|---|---|---|---|---|
| Date | Type | Book | Page | Price | Grantor | Grantee | ||||
|
12/18/2025 |
|
Hmstd Off & |
$0 |
ESSENTIAL PROPERTIES OKTX LLC |
THALASSOPHILE LLC |
|||||
|
3/21/2018 |
|
Hmstd Off & |
$0 |
ESSENTIAL PROPERTIES OK LLC |
ESSENTIAL PROPERTIES OKTX LLC |
|||||
|
11/16/2017 |
|
Mult Parcel |
$537,500 |
BROWN REALTY INVESTMENTS LLC |
ESSENTIAL PROPERTIES OK LLC |
|||||
|
1/26/2016 |
|
Deeds |
$27,000 |
GRIFFIN CARLOS |
BROWN REALTY INVESTMENTS LLC |
|||||
|
2/7/2006 |
|
Other |
$0 |
PERRY DORIS |
GRIFFIN CARLOS |
|||||
| Last Mailed Notice of Value (N.O.V.) Information/History | ||||||||
|---|---|---|---|---|---|---|---|---|
| Year | Date | Market Value | Taxable Market Value | Gross Assessed | Exemption | Net Assessed | ||
|
2026 |
02/23/2026 |
141,000 |
81,256 |
8,937 |
0 |
8,937 |
||
|
2025 |
02/14/2025 |
113,000 |
77,387 |
8,512 |
0 |
8,512 |
||
|
2024 |
02/13/2024 |
99,000 |
73,702 |
8,107 |
0 |
8,107 |
||
|
2023 |
02/14/2023 |
93,000 |
70,193 |
7,720 |
0 |
7,720 |
||
|
2022 |
03/15/2022 |
84,000 |
66,851 |
7,353 |
0 |
7,353 |
||
| Property Building Permit History | |||||||||||
|---|---|---|---|---|---|---|---|---|---|---|---|
| Issued | Permit # | Provided by | Bldg # | Description | Est Construction Cost | Status | |||||
| No Building Permit records returned. | |||||||||||
| Click button on building number to access detailed information: | ||||||
|---|---|---|---|---|---|---|
| Bldg # | Vacant/Improved Land | Bldg Description | Year Built | SqFt | # Stories | |
|
1 |
Improved |
1½ Story Fin |
1948 |
1,384 |
1.5 Stories |
|