|
|
|
| Larry Stein Oklahoma County Assessor (405) 713-1200 - Public Access System |
|
|
|
|
|
|
| Real Property Display - Screen Produced 3/5/2026 4:42:47 AM | ||||
|---|---|---|---|---|
| Account: R119721175 | Type: Residential | Location: |
4325 WOODS DR |
|
| Building Name/Occupant: |
|
OKLAHOMA CITY |
||
| Owner Name 1: | KEMP REBA PATRICIA |
Parcel PIN#: |
2656-11-972-1175 |
|
| Owner Name 2: | 1/4 section #: |
2656 |
||
| Owner Name 3: | Parent Acct: |
|
||
| Billing Address: | 4325 WOODS DR | Tax District: |
|
|
| City, State, Zip | OKLAHOMA CITY, OK 73111-5628 | School System: |
Oklahoma City #89 |
|
|
Country: (If noted) |
Land Size: |
0.2152 Acres |
||
|
Land Value: 10,781 |
|
|||
|
Sect 14-T12N-R3W Qtr NW |
PARK ESTATES RANCH
Block
002
Lot
002
|
|||
| Full Legal Description: PARK ESTATES RANCH 002 002 |
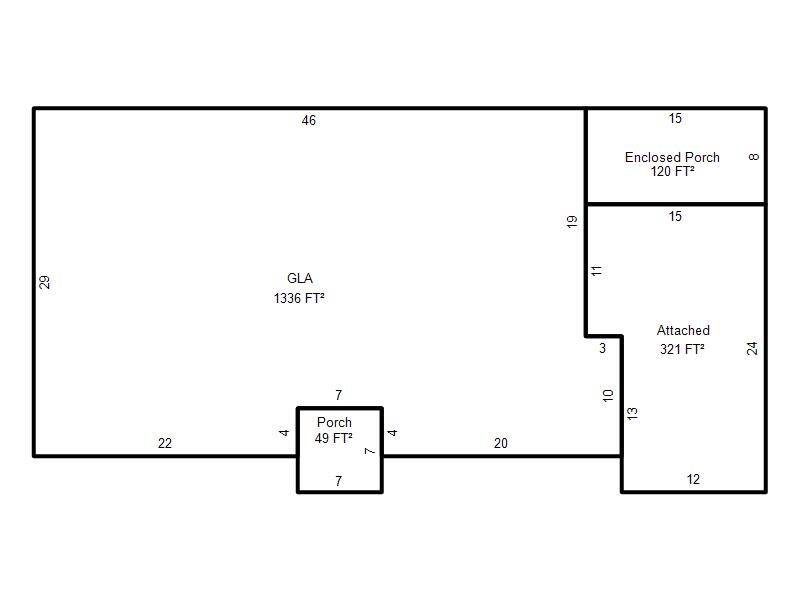
| Photo & Sketch (if available) | Comp Sales (ordered by relevancy) |
|
||||||||||||||||||
|
||||||||||||||||||||
| Value History (*The County Treasurer 405-713-1300 posts & collects actual tax amounts. Contact information HERE) | |||||||||||||
|---|---|---|---|---|---|---|---|---|---|---|---|---|---|
| Year | Market Value | Taxable Mkt Value | Gross Assessed | Exemption | Net Assessed | Millage | Est. Tax | Tax Savings | |||||
|
2025 |
112,500 |
51,195 |
5,631 |
1,000 |
4,631 |
122.90 |
$569 |
$952 |
|||||
|
2024 |
111,000 |
49,704 |
5,467 |
1,000 |
4,467 |
123.89 |
$553 |
$959 |
|||||
|
2023 |
87,500 |
48,257 |
5,307 |
1,000 |
4,307 |
122.82 |
$529 |
$653 |
|||||
|
2022 |
77,500 |
46,852 |
5,153 |
1,000 |
4,153 |
117.63 |
$489 |
$514 |
|||||
|
2021 |
74,500 |
45,488 |
5,003 |
1,000 |
4,003 |
117.70 |
$471 |
$493 |
|||||
| Property Account Status/Adjustments/Exemptions | ||
|---|---|---|
| Account # | Exemption Description | Amount |
|
R119721175 |
Homestead |
1,000 |
|
R119721175 |
3% Cap Homestead |
0 |
| Property Deed Transaction History (Recorded in the County Clerk's Office) | |||||||
|---|---|---|---|---|---|---|---|
| Date | Type | Book | Page | Price | Grantor | Grantee | |
|
7/1/1986 |
|
Historical |
$0 |
|
KEMP REBA PATRICIA |
||
| Last Mailed Notice of Value (N.O.V.) Information/History | ||||||||
|---|---|---|---|---|---|---|---|---|
| Year | Date | Market Value | Taxable Market Value | Gross Assessed | Exemption | Net Assessed | ||
|
2026 |
02/23/2026 |
120,000 |
52,730 |
5,799 |
1,000 |
4,799 |
||
|
2025 |
02/14/2025 |
112,500 |
51,195 |
5,631 |
1,000 |
4,631 |
||
|
2024 |
02/13/2024 |
111,000 |
49,704 |
5,467 |
1,000 |
4,467 |
||
|
2023 |
02/14/2023 |
87,500 |
48,257 |
5,307 |
1,000 |
4,307 |
||
|
2022 |
03/15/2022 |
77,500 |
46,852 |
5,153 |
1,000 |
4,153 |
||
| Property Building Permit History | |||||||||||
|---|---|---|---|---|---|---|---|---|---|---|---|
| Issued | Permit # | Provided by | Bldg # | Description | Est Construction Cost | Status | |||||
| No Building Permit records returned. | |||||||||||
| Click button on building number to access detailed information: | ||||||
|---|---|---|---|---|---|---|
| Bldg # | Vacant/Improved Land | Bldg Description | Year Built | SqFt | # Stories | |
|
1 |
Improved |
Ranch 1 Story |
1954 |
1,336 |
1 Stories |
|