|
|
|
| Larry Stein Oklahoma County Assessor (405) 713-1200 - Public Access System |
|
|
|
|
|
|
| Real Property Display - Screen Produced 3/5/2026 4:42:47 AM | ||||
|---|---|---|---|---|
| Account: R119721195 | Type: Residential | Location: |
4317 WOODS DR |
|
| Building Name/Occupant: |
|
OKLAHOMA CITY |
||
| Owner Name 1: | RUNNELS KEITH M |
Parcel PIN#: |
2656-11-972-1195 |
|
| Owner Name 2: | 1/4 section #: |
2656 |
||
| Owner Name 3: | Parent Acct: |
|
||
| Billing Address: | 8700 NW 105TH ST | Tax District: |
|
|
| City, State, Zip | OKLAHOMA CITY, OK 73162-1202 | School System: |
Oklahoma City #89 |
|
|
Country: (If noted) |
Land Size: |
0.2152 Acres |
||
|
Land Value: 10,781 |
|
|||
|
Sect 14-T12N-R3W Qtr NW |
PARK ESTATES RANCH
Block
002
Lot
004
|
|||
| Full Legal Description: PARK ESTATES RANCH 002 004 |
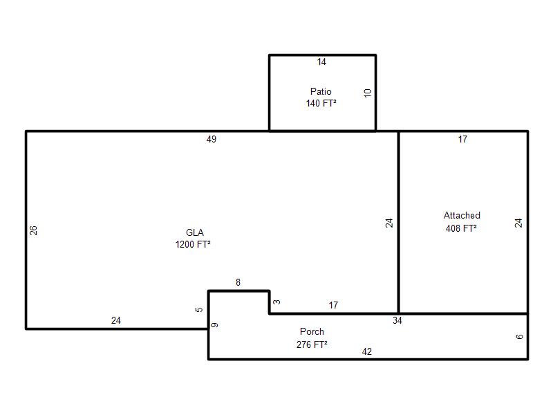
| Photo & Sketch (if available) | Comp Sales (ordered by relevancy) |
|
||||||||||||||||||
|
||||||||||||||||||||
| Value History (*The County Treasurer 405-713-1300 posts & collects actual tax amounts. Contact information HERE) | |||||||||||||
|---|---|---|---|---|---|---|---|---|---|---|---|---|---|
| Year | Market Value | Taxable Mkt Value | Gross Assessed | Exemption | Net Assessed | Millage | Est. Tax | Tax Savings | |||||
|
2025 |
108,500 |
62,361 |
6,859 |
0 |
6,859 |
122.90 |
$843 |
$624 |
|||||
|
2024 |
106,500 |
59,392 |
6,533 |
0 |
6,533 |
123.89 |
$809 |
$642 |
|||||
|
2023 |
83,000 |
56,564 |
6,221 |
0 |
6,221 |
122.82 |
$764 |
$357 |
|||||
|
2022 |
74,000 |
53,871 |
5,924 |
0 |
5,924 |
117.63 |
$697 |
$260 |
|||||
|
2021 |
71,500 |
51,306 |
5,642 |
0 |
5,642 |
117.70 |
$664 |
$261 |
|||||
| Property Account Status/Adjustments/Exemptions | ||
|---|---|---|
| Account # | Exemption Description | Amount |
|
R119721195 |
5% Capped Account |
0 |
| Property Deed Transaction History (Recorded in the County Clerk's Office) | |||||||
|---|---|---|---|---|---|---|---|
| Date | Type | Book | Page | Price | Grantor | Grantee | |
|
6/27/2004 |
|
Hmstd Off & |
$0 |
RUNNELS JOHN & DOROTHY |
RUNNELS KEITH M |
||
|
11/11/1911 |
|
Historical |
$0 |
|
RUNNELS JOHN & DOROTHY |
||
| Last Mailed Notice of Value (N.O.V.) Information/History | ||||||||
|---|---|---|---|---|---|---|---|---|
| Year | Date | Market Value | Taxable Market Value | Gross Assessed | Exemption | Net Assessed | ||
|
2026 |
02/23/2026 |
116,000 |
65,479 |
7,201 |
0 |
7,201 |
||
|
2025 |
02/14/2025 |
108,500 |
62,361 |
6,859 |
0 |
6,859 |
||
|
2024 |
02/13/2024 |
106,500 |
59,392 |
6,533 |
0 |
6,533 |
||
|
2023 |
02/14/2023 |
83,000 |
56,564 |
6,221 |
0 |
6,221 |
||
|
2022 |
03/15/2022 |
74,000 |
53,871 |
5,924 |
0 |
5,924 |
||
| Property Building Permit History | |||||||||||
|---|---|---|---|---|---|---|---|---|---|---|---|
| Issued | Permit # | Provided by | Bldg # | Description | Est Construction Cost | Status | |||||
| No Building Permit records returned. | |||||||||||
| Click button on building number to access detailed information: | ||||||
|---|---|---|---|---|---|---|
| Bldg # | Vacant/Improved Land | Bldg Description | Year Built | SqFt | # Stories | |
|
1 |
Improved |
Ranch 1 Story |
1954 |
1,200 |
1 Stories |
|