|
|
|
| Larry Stein Oklahoma County Assessor (405) 713-1200 - Public Access System |
|
|
|
|
|
|
| Real Property Display - Screen Produced 3/5/2026 4:42:45 AM | ||||
|---|---|---|---|---|
| Account: R119721215 | Type: Residential | Location: |
4309 WOODS DR |
|
| Building Name/Occupant: |
|
OKLAHOMA CITY |
||
| Owner Name 1: | OMEGA INVESTMENTS LLC |
Parcel PIN#: |
2656-11-972-1215 |
|
| Owner Name 2: | 1/4 section #: |
2656 |
||
| Owner Name 3: | Parent Acct: |
|
||
| Billing Address: | 20 NW 13TH ST, Unit 200 | Tax District: |
|
|
| City, State, Zip | OKLAHOMA CITY, OK 73103 | School System: |
Oklahoma City #89 |
|
|
Country: (If noted) |
Land Size: |
0.2152 Acres |
||
|
Land Value: 10,781 |
|
|||
|
Sect 14-T12N-R3W Qtr NW |
PARK ESTATES RANCH
Block
002
Lot
006
|
|||
| Full Legal Description: PARK ESTATES RANCH 002 006 |
| Photo & Sketch (if available) | Comp Sales (ordered by relevancy) |
|
||||||||||||||||||
|
||||||||||||||||||||
| Value History (*The County Treasurer 405-713-1300 posts & collects actual tax amounts. Contact information HERE) | |||||||||||||
|---|---|---|---|---|---|---|---|---|---|---|---|---|---|
| Year | Market Value | Taxable Mkt Value | Gross Assessed | Exemption | Net Assessed | Millage | Est. Tax | Tax Savings | |||||
|
2025 |
140,000 |
62,842 |
6,912 |
0 |
6,912 |
122.90 |
$850 |
$1,043 |
|||||
|
2024 |
139,000 |
59,850 |
6,583 |
0 |
6,583 |
123.89 |
$816 |
$1,079 |
|||||
|
2023 |
57,000 |
57,000 |
6,270 |
0 |
6,270 |
122.82 |
$770 |
$0 |
|||||
|
2022 |
59,000 |
48,347 |
5,317 |
0 |
5,317 |
117.63 |
$626 |
$138 |
|||||
|
2021 |
57,000 |
46,045 |
5,064 |
0 |
5,064 |
117.70 |
$596 |
$142 |
|||||
| Property Account Status/Adjustments/Exemptions | ||
|---|---|---|
| Account # | Exemption Description | Amount |
|
R119721215 |
5% Capped Account |
0 |
| Property Deed Transaction History (Recorded in the County Clerk's Office) | ||||||||||
|---|---|---|---|---|---|---|---|---|---|---|
| Date | Type | Book | Page | Price | Grantor | Grantee | ||||
|
1/25/2022 |
|
Deeds |
$23,000 |
BREWER NICOLE LYNE |
CWC INVESTMENTS LLC |
|||||
|
1/25/2022 |
|
Deeds |
$55,000 |
CWC INVESTMENTS LLC |
OMEGA INVESTMENTS LLC |
|||||
|
10/29/2021 |
|
Hmstd Off & |
$0 |
BREWER BERTHINA LYNETTE KORNEGAY |
BREWER NICOLE LYNE |
|||||
|
9/17/2021 |
|
Hmstd Off & |
$0 |
KORNEGAY MADYLINE |
BREWER BERTHINA LYNETTE KORNEGAY |
|||||
|
1/11/2010 |
|
Deeds |
$0 |
KORNEGAY MADYLINE |
KORNEGAY MADYLINE |
|||||
| Last Mailed Notice of Value (N.O.V.) Information/History | ||||||||
|---|---|---|---|---|---|---|---|---|
| Year | Date | Market Value | Taxable Market Value | Gross Assessed | Exemption | Net Assessed | ||
|
2026 |
02/23/2026 |
149,500 |
65,984 |
7,257 |
0 |
7,257 |
||
|
2025 |
02/14/2025 |
140,000 |
62,842 |
6,912 |
0 |
6,912 |
||
|
2024 |
02/13/2024 |
139,000 |
59,850 |
6,583 |
0 |
6,583 |
||
|
2023 |
02/14/2023 |
57,000 |
57,000 |
6,270 |
0 |
6,270 |
||
|
2022 |
03/15/2022 |
59,000 |
48,347 |
5,317 |
0 |
5,317 |
||
| Property Building Permit History | |||||||||||
|---|---|---|---|---|---|---|---|---|---|---|---|
| Issued | Permit # | Provided by | Bldg # | Description | Est Construction Cost | Status | |||||
| No Building Permit records returned. | |||||||||||
| Click button on building number to access detailed information: | ||||||
|---|---|---|---|---|---|---|
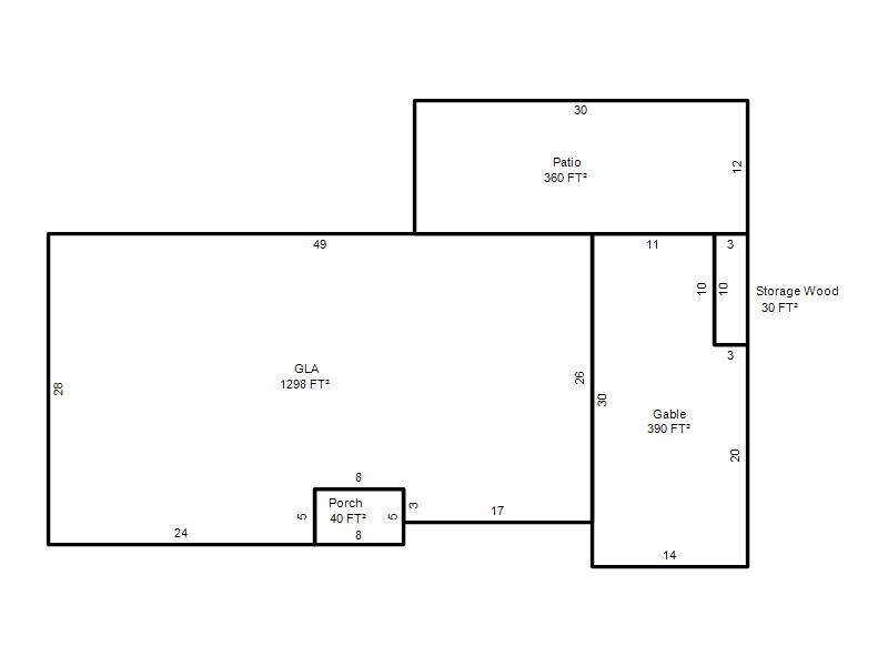
| Bldg # | Vacant/Improved Land | Bldg Description | Year Built | SqFt | # Stories | |
|
1 |
Improved |
Ranch 1 Story |
1954 |
1,298 |
1 Stories |
|