|
|
|
| Larry Stein Oklahoma County Assessor (405) 713-1200 - Public Access System |
|
|
|
|
|
|
| Real Property Display - Screen Produced 3/5/2026 4:42:49 AM | ||||
|---|---|---|---|---|
| Account: R119721225 | Type: Residential | Location: |
4305 WOODS DR |
|
| Building Name/Occupant: |
|
OKLAHOMA CITY |
||
| Owner Name 1: | OMEGA INVESTMENTS LLC |
Parcel PIN#: |
2656-11-972-1225 |
|
| Owner Name 2: | 1/4 section #: |
2656 |
||
| Owner Name 3: | Parent Acct: |
|
||
| Billing Address: | 20 NW 13TH ST, Unit 200 | Tax District: |
|
|
| City, State, Zip | OKLAHOMA CITY, OK 73103 | School System: |
Oklahoma City #89 |
|
|
Country: (If noted) |
Land Size: |
0.2152 Acres |
||
|
Land Value: 10,781 |
|
|||
|
Sect 14-T12N-R3W Qtr NW |
PARK ESTATES RANCH
Block
002
Lot
007
|
|||
| Full Legal Description: PARK ESTATES RANCH 002 007 |
| Photo & Sketch (if available) | Comp Sales (ordered by relevancy) |
|
||||||||||||||||||
|
||||||||||||||||||||
| Value History (*The County Treasurer 405-713-1300 posts & collects actual tax amounts. Contact information HERE) | |||||||||||||
|---|---|---|---|---|---|---|---|---|---|---|---|---|---|
| Year | Market Value | Taxable Mkt Value | Gross Assessed | Exemption | Net Assessed | Millage | Est. Tax | Tax Savings | |||||
|
2025 |
107,000 |
77,562 |
8,531 |
0 |
8,531 |
122.90 |
$1,049 |
$398 |
|||||
|
2024 |
105,000 |
73,869 |
8,124 |
0 |
8,124 |
123.89 |
$1,007 |
$424 |
|||||
|
2023 |
82,000 |
70,352 |
7,738 |
0 |
7,738 |
122.82 |
$950 |
$157 |
|||||
|
2022 |
73,500 |
67,002 |
7,369 |
0 |
7,369 |
117.63 |
$867 |
$84 |
|||||
|
2021 |
71,000 |
63,812 |
7,019 |
0 |
7,019 |
117.70 |
$826 |
$93 |
|||||
| Property Account Status/Adjustments/Exemptions | ||
|---|---|---|
| Account # | Exemption Description | Amount |
|
R119721225 |
5% Capped Account |
0 |
| Property Deed Transaction History (Recorded in the County Clerk's Office) | ||||||||||
|---|---|---|---|---|---|---|---|---|---|---|
| Date | Type | Book | Page | Price | Grantor | Grantee | ||||
|
1/25/2012 |
|
Deeds |
$24,000 |
THE BANK OF NEW YORK |
OMEGA INVESTMENTS LLC |
|||||
|
11/1/2011 |
|
Hmstd Off & |
$0 |
LESURE KARLOS A SR & TAMMY BASS |
THE BANK OF NEW YORK |
|||||
|
11/21/2005 |
|
Deeds |
$46,500 |
CHEADLE JACKSON HUBBARD ANGEL |
LESURE KARLOS A SR & TAMMY BASS |
|||||
|
2/19/2005 |
|
Deeds |
$0 |
CHEADLE JACKSON ETAL CHEADLE MARIO J |
CHEADLE JACKSON HUBBARD ANGEL |
|||||
|
9/12/2000 |
|
Deeds |
$0 |
HUBBARD HENRIETTA |
CHEADLE JACKSON ETAL CHEADLE MARIO J |
|||||
| Last Mailed Notice of Value (N.O.V.) Information/History | ||||||||
|---|---|---|---|---|---|---|---|---|
| Year | Date | Market Value | Taxable Market Value | Gross Assessed | Exemption | Net Assessed | ||
|
2026 |
02/23/2026 |
114,500 |
81,440 |
8,957 |
0 |
8,957 |
||
|
2025 |
02/14/2025 |
107,000 |
77,562 |
8,531 |
0 |
8,531 |
||
|
2024 |
02/13/2024 |
105,000 |
73,869 |
8,124 |
0 |
8,124 |
||
|
2023 |
02/14/2023 |
82,000 |
70,352 |
7,738 |
0 |
7,738 |
||
|
2022 |
03/15/2022 |
73,500 |
67,002 |
7,369 |
0 |
7,369 |
||
| Property Building Permit History | |||||||||||
|---|---|---|---|---|---|---|---|---|---|---|---|
| Issued | Permit # | Provided by | Bldg # | Description | Est Construction Cost | Status | |||||
| No Building Permit records returned. | |||||||||||
| Click button on building number to access detailed information: | ||||||
|---|---|---|---|---|---|---|
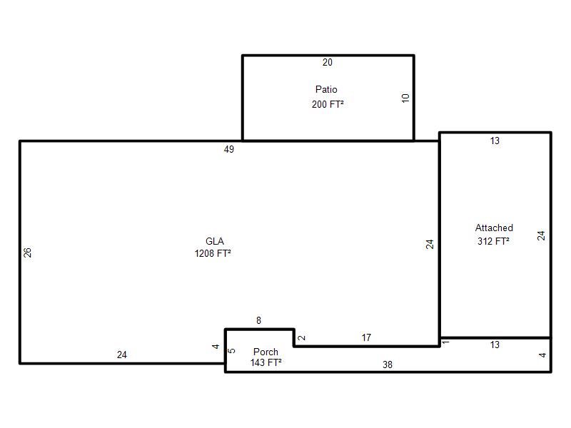
| Bldg # | Vacant/Improved Land | Bldg Description | Year Built | SqFt | # Stories | |
|
1 |
Improved |
Ranch 1 Story |
1954 |
1,208 |
1 Stories |
|