|
|
|
| Larry Stein Oklahoma County Assessor (405) 713-1200 - Public Access System |
|
|
|
|
|
|
| Real Property Display - Screen Produced 4/10/2026 3:44:03 AM | ||||
|---|---|---|---|---|
| Account: R133201255 | Type: Residential | Location: |
817 NE 42ND ST |
|
| Building Name/Occupant: |
|
OKLAHOMA CITY |
||
| Owner Name 1: | DODSON JONATHAN |
Parcel PIN#: |
2657-13-320-1255 |
|
| Owner Name 2: | DODSON SARAH K | 1/4 section #: |
2657 |
|
| Owner Name 3: | Parent Acct: |
|
||
| Billing Address: | 1220 NW 20TH ST | Tax District: |
|
|
| City, State, Zip | OKLAHOMA CITY, OK 73106 | School System: |
Oklahoma City #89 |
|
|
Country: (If noted) |
Land Size: |
5.0200 Acres |
||
|
Land Value: 117,978 |
|
|||
|
Sect 15-T12N-R3W Qtr NE |
UNPLTD PT SEC 15 12N 3W
Block
000
Lot
000
|
|||
| Full Legal Description: UNPLTD PT SEC 15 12N 3W BLK 000 LOT 000 PT NE4 SEC 15 12N 3W BEG 661.16FT W OF SE/C NE4 TH W219.25FT N330.62FT W223.45FT N330.14FT E442.70FT S660.76FT TO BEG AKA TR 2 CONT 5.020ACRS MORE OR LESS SUBJ TO ESMTS OF RECORD |
| Photo & Sketch (if available) | Comp Sales (ordered by relevancy) |
|
||||||||||||||||||
|
||||||||||||||||||||
| Value History (*The County Treasurer 405-713-1300 posts & collects actual tax amounts. Contact information HERE) | |||||||||||||
|---|---|---|---|---|---|---|---|---|---|---|---|---|---|
| Year | Market Value | Taxable Mkt Value | Gross Assessed | Exemption | Net Assessed | Millage | Est. Tax | Tax Savings | |||||
|
2026 |
1,312,000 |
1,122,896 |
123,517 |
0 |
123,517 |
122.90 |
$15,180 |
$2,556 |
|||||
|
2025 |
1,244,000 |
1,069,425 |
117,636 |
0 |
117,636 |
122.90 |
$14,458 |
$2,360 |
|||||
|
2024 |
1,018,500 |
1,018,500 |
112,035 |
0 |
112,035 |
123.89 |
$13,880 |
$0 |
|||||
|
2023 |
1,043,000 |
1,043,000 |
114,730 |
0 |
114,730 |
122.82 |
$14,091 |
$0 |
|||||
|
2022 |
1,081,000 |
1,081,000 |
118,910 |
0 |
118,910 |
117.63 |
$13,987 |
$0 |
|||||
| Property Account Status/Adjustments/Exemptions | ||
|---|---|---|
| Account # | Exemption Description | Amount |
|
R133201255 |
5% Capped Account |
0 |
| Property Deed Transaction History (Recorded in the County Clerk's Office) | ||||||||||
|---|---|---|---|---|---|---|---|---|---|---|
| Date | Type | Book | Page | Price | Grantor | Grantee | ||||
|
5/22/2020 |
|
Deeds |
$0 |
CENAM HOLDINGS LLC |
CENAM HOLDINGS LLC |
|||||
|
5/22/2020 |
|
Hmstd Off & |
$0 |
CENAM HOLDINGS LLC |
DODSON JONATHAN |
|||||
|
10/24/2019 |
|
Deeds |
$40,000 |
COFFMAN LARRY |
CENAM HOLDINGS LLC |
|||||
|
6/3/2011 |
|
Other |
$0 |
BRANDT EDWARD N JR & PATRICIA L LIVING TRUST |
COFFMAN LARRY |
|||||
|
8/21/2007 |
|
Deeds |
$0 |
BRANDT EDWARD N JR & PATRICIA |
BRANDT EDWARD N JR & PATRICIA L LIVING TRUST |
|||||
| Last Mailed Notice of Value (N.O.V.) Information/History | ||||||
|---|---|---|---|---|---|---|
| Year | Date | Market Value | Taxable Market Value | Gross Assessed | Exemption | Net Assessed |
|
2026 |
02/23/2026 |
1,312,000 |
1,122,896 |
123,517 |
0 |
123,517 |
|
2025 |
02/14/2025 |
1,244,000 |
1,069,425 |
117,636 |
0 |
117,636 |
|
2022 |
03/15/2022 |
1,081,000 |
1,081,000 |
118,910 |
0 |
118,910 |
|
2020 |
03/10/2020 |
40,000 |
40,000 |
4,400 |
0 |
4,400 |
|
2012 |
04/06/2012 |
27,821 |
27,821 |
3,060 |
0 |
3,060 |
| Property Building Permit History | ||||||
|---|---|---|---|---|---|---|
| Issued | Permit # | Provided by | Bldg # | Description | Est Construction Cost | Status |
|
4/15/2021 |
|
|
|
Main Dwellin |
|
Inactive |
| Click button on building number to access detailed information: | ||||||
|---|---|---|---|---|---|---|
| Bldg # | Vacant/Improved Land | Bldg Description | Year Built | SqFt | # Stories | |
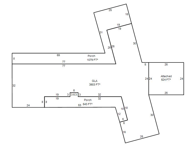
|
1 |
Improved |
Ranch 1 Story |
2020 |
3,903 |
1 Stories |
|