|
|
|
| Larry Stein Oklahoma County Assessor (405) 713-1200 - Public Access System |
|
|
|
|
|
|
| Real Property Display - Screen Produced 4/10/2026 3:32:47 AM | ||||
|---|---|---|---|---|
| Account: R133202100 | Type: Residential | Location: |
4330 N LINDSAY AVE |
|
| Building Name/Occupant: |
|
OKLAHOMA CITY |
||
| Owner Name 1: | ENGLE STANLEY & FIONA TRS |
Parcel PIN#: |
2657-13-320-2100 |
|
| Owner Name 2: | STANLEY & FIONA LIVING TRUST | 1/4 section #: |
2657 |
|
| Owner Name 3: | Parent Acct: |
|
||
| Billing Address: | 701 NE 42ND ST | Tax District: |
|
|
| City, State, Zip | OKLAHOMA CITY, OK 73105-7003 | School System: |
Oklahoma City #89 |
|
|
Country: (If noted) |
Land Size: |
1.5600 Acres |
||
|
Land Value: 73,235 |
|
|||
|
Sect 15-T12N-R3W Qtr NE |
UNPLTD PT SEC 15 12N 3W
Block
000
Lot
000
|
|||
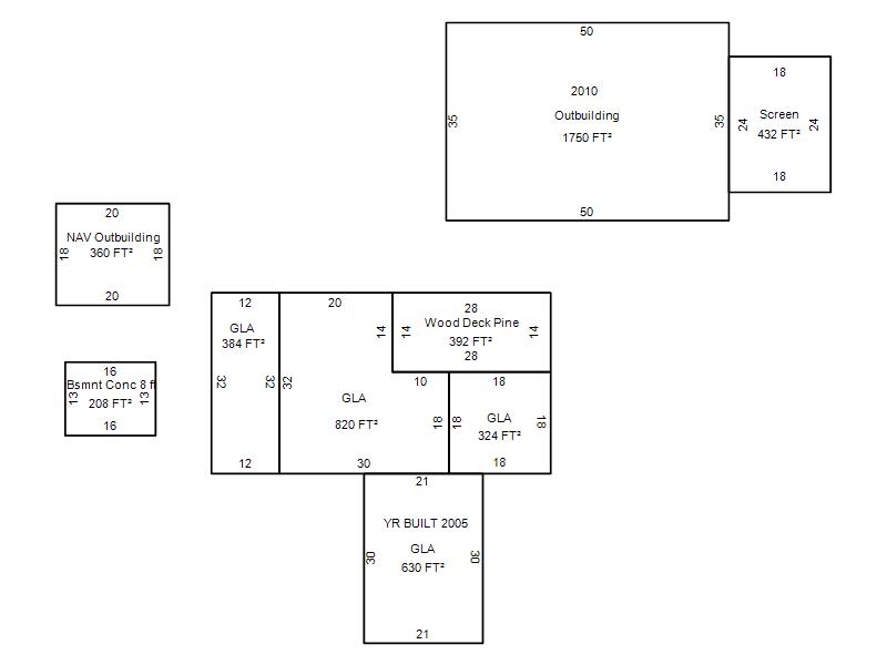
| Full Legal Description: UNPLTD PT SEC 15 12N 3W 000 000 PT NE4 N414FT OF FOLLOWING DESC BEG 495FT W SE/C SW4 OF NE4N880FT W165FT S880F E165F |
| Photo & Sketch (if available) | Comp Sales (ordered by relevancy) |
|
||||||||||||||||||
|
||||||||||||||||||||
| Value History (*The County Treasurer 405-713-1300 posts & collects actual tax amounts. Contact information HERE) | |||||||||||||
|---|---|---|---|---|---|---|---|---|---|---|---|---|---|
| Year | Market Value | Taxable Mkt Value | Gross Assessed | Exemption | Net Assessed | Millage | Est. Tax | Tax Savings | |||||
|
2026 |
327,500 |
145,232 |
15,974 |
0 |
15,974 |
122.90 |
$1,963 |
$2,464 |
|||||
|
2025 |
318,500 |
138,317 |
15,214 |
0 |
15,214 |
122.90 |
$1,870 |
$2,436 |
|||||
|
2024 |
277,500 |
131,731 |
14,490 |
0 |
14,490 |
123.89 |
$1,795 |
$1,987 |
|||||
|
2023 |
224,500 |
125,459 |
13,800 |
0 |
13,800 |
122.82 |
$1,695 |
$1,338 |
|||||
|
2022 |
181,500 |
119,485 |
13,142 |
0 |
13,142 |
117.63 |
$1,546 |
$802 |
|||||
| Property Account Status/Adjustments/Exemptions | ||
|---|---|---|
| Account # | Exemption Description | Amount |
|
R133202100 |
5% Capped Account |
0 |
| Property Deed Transaction History (Recorded in the County Clerk's Office) | |||||||
|---|---|---|---|---|---|---|---|
| Date | Type | Book | Page | Price | Grantor | Grantee | |
|
12/28/1999 |
|
Deeds |
$0 |
ENGLE STANLEY G & FIONA |
ENGLE STANLEY & FIONA TRS |
||
|
12/17/1999 |
|
Deeds |
$0 |
MCFADDEN ROBERT S & LIBBY H |
ENGLE STANLEY G & FIONA D |
||
|
8/6/1998 |
|
Historical |
$500 |
ISHMAEL DON RICHARD |
MCFADDEN ROBERT S & LIBBY H |
||
|
5/17/1991 |
|
Historical |
$0 |
ISHMAEL DON R & SHERRE W |
ISHMAEL DON RICHARD |
||
|
5/1/1984 |
|
Historical |
$0 |
|
ISHMAEL DON R & SHERRE W |
||
| Last Mailed Notice of Value (N.O.V.) Information/History | ||||||||
|---|---|---|---|---|---|---|---|---|
| Year | Date | Market Value | Taxable Market Value | Gross Assessed | Exemption | Net Assessed | ||
|
2026 |
02/23/2026 |
327,500 |
145,232 |
15,974 |
0 |
15,974 |
||
|
2025 |
02/14/2025 |
318,500 |
138,317 |
15,214 |
0 |
15,214 |
||
|
2024 |
02/13/2024 |
277,500 |
131,731 |
14,490 |
0 |
14,490 |
||
|
2023 |
02/14/2023 |
224,500 |
125,459 |
13,800 |
0 |
13,800 |
||
|
2022 |
03/15/2022 |
181,500 |
119,485 |
13,142 |
0 |
13,142 |
||
| Property Building Permit History | |||||||||||
|---|---|---|---|---|---|---|---|---|---|---|---|
| Issued | Permit # | Provided by | Bldg # | Description | Est Construction Cost | Status | |||||
| No Building Permit records returned. | |||||||||||
| Click button on building number to access detailed information: | ||||||
|---|---|---|---|---|---|---|
| Bldg # | Vacant/Improved Land | Bldg Description | Year Built | SqFt | # Stories | |
|
1 |
Improved |
Ranch 1 Story |
1934 |
2,158 |
1 Stories |
|