|
|
|
| Larry Stein Oklahoma County Assessor (405) 713-1200 - Public Access System |
|
|
|
|
|
|
| Real Property Display - Screen Produced 4/10/2026 3:32:46 AM | ||||
|---|---|---|---|---|
| Account: R133206900 | Type: Industrial | Location: |
4000 N SANTA FE AVE |
|
| Building Name/Occupant: |
M-D DISTRIBUTION WAREHOUSE |
OKLAHOMA CITY |
||
| Owner Name 1: | M D REAL ESTATE HOLDINGS LLC |
Parcel PIN#: |
2659-13-320-6900 |
|
| Owner Name 2: | 1/4 section #: |
2659 |
||
| Owner Name 3: | Parent Acct: |
2659-13-320-7800 |
||
| Billing Address: | 4041 N SANTA FE AVE | Tax District: |
|
|
| City, State, Zip | OKLAHOMA CITY, OK 73118-8512 | School System: |
Oklahoma City #89 |
|
|
Country: (If noted) |
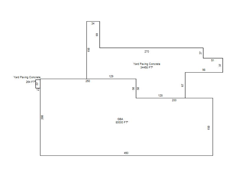
Land Size: |
9.1737 Acres |
||
|
Land Value: 620,371 |
|
|||
|
Sect 15-T12N-R3W Qtr SW |
UNPLTD PT SEC 15 12N 3W
Block
000
Lot
000
|
|||
| Full Legal Description: UNPLTD PT SEC 15 12N 3W 000 000 PT SW4 SEC 15 12N 3W BEG 989.86FT N OF SW/C SW4 TH N534.84FT E173.17FT SE16.94FT E20.65FT NE72.70FT N20.42FT NW19.02FT N380.50FT E349.94FT S329.52FT CONT S329.68FT W237.14FT S330.11FT W357.49FT TO BEG CONT 9.15ACRS MORE OR LESS |
| No comparable sales report available. | ||||||||||||||||||||||
|
||||||||||||||||||||||
| Value History (*The County Treasurer 405-713-1300 posts & collects actual tax amounts. Contact information HERE) | |||||||||||||
|---|---|---|---|---|---|---|---|---|---|---|---|---|---|
| Year | Market Value | Taxable Mkt Value | Gross Assessed | Exemption | Net Assessed | Millage | Est. Tax | Tax Savings | |||||
|
2026 |
15,303,091 |
14,498,558 |
1,594,840 |
0 |
1,594,840 |
122.90 |
$196,006 |
$10,876 |
|||||
|
2025 |
13,911,914 |
13,808,151 |
1,518,896 |
0 |
1,518,896 |
122.90 |
$186,672 |
$1,403 |
|||||
|
2024 |
14,528,449 |
13,150,620 |
1,446,568 |
0 |
1,446,568 |
123.89 |
$179,215 |
$18,777 |
|||||
|
2023 |
14,802,699 |
12,524,400 |
1,377,684 |
0 |
1,377,684 |
122.82 |
$169,207 |
$30,780 |
|||||
|
2022 |
14,802,699 |
11,928,000 |
1,312,080 |
0 |
1,312,080 |
117.63 |
$154,340 |
$37,197 |
|||||
| Property Account Status/Adjustments/Exemptions | ||
|---|---|---|
| Account # | Exemption Description | Amount |
|
R133206900 |
5% Capped Account |
0 |
| Property Deed Transaction History (Recorded in the County Clerk's Office) | ||||||||||
|---|---|---|---|---|---|---|---|---|---|---|
| Date | Type | Book | Page | Price | Grantor | Grantee | ||||
|
12/28/2020 |
|
Mult Parcel |
$13,799,999 |
M D BUILDING PRODUCTS INC |
M D REAL ESTATE HOLDINGS LLC |
|||||
|
8/4/2017 |
|
Deeds |
$0 |
JUDGMENT |
M D BUILDING PRODUCTS INC |
|||||
|
6/28/2016 |
|
Deeds |
$0 |
SANTA FE AVENUE PROPERTIES LLC |
M D BUILDING PRODUCTS INC |
|||||
|
6/7/2016 |
|
Mult Parcel |
$11,208,000 |
SANTA FE AVENUE PROPERTIES LLC |
M D BUILDING PRODUCTS INC |
|||||
|
6/4/2015 |
|
Mult Parcel |
$5,977,500 |
M-D BUILDING PRODUCTS INC |
SANTA FE AVENUE PROPERTIES LLC |
|||||
| Last Mailed Notice of Value (N.O.V.) Information/History | ||||||||
|---|---|---|---|---|---|---|---|---|
| Year | Date | Market Value | Taxable Market Value | Gross Assessed | Exemption | Net Assessed | ||
|
2026 |
03/23/2026 |
15,303,091 |
14,498,558 |
1,594,840 |
0 |
1,594,840 |
||
|
2025 |
03/14/2025 |
13,911,914 |
13,808,151 |
1,518,896 |
0 |
1,518,896 |
||
|
2024 |
03/12/2024 |
14,528,449 |
13,150,620 |
1,446,568 |
0 |
1,446,568 |
||
|
2023 |
03/13/2023 |
14,802,699 |
12,524,400 |
1,377,684 |
0 |
1,377,684 |
||
|
2022 |
03/09/2022 |
14,802,699 |
11,928,000 |
1,312,080 |
0 |
1,312,080 |
||
| Property Building Permit History | ||||||
|---|---|---|---|---|---|---|
| Issued | Permit # | Provided by | Bldg # | Description | Est Construction Cost | Status |
|
10/12/2010 |
10411732 |
OKLAHOMA CITY |
1 |
Commercial |
0 |
Inactive |
| Click button on building number to access detailed information: | ||||||
|---|---|---|---|---|---|---|
| Bldg # | Vacant/Improved Land | Bldg Description | Year Built | SqFt | # Stories | |
|
1 |
Improved |
Distribution Warehouse |
2011 |
80,000 |
1 Stories |
|
|
2 |
Improved |
Distribution Warehouse |
2017 |
101,760 |
1 Stories |
|