|
|
|
| Larry Stein Oklahoma County Assessor (405) 713-1200 - Public Access System |
|
|
|
|
|
|
| Real Property Display - Screen Produced 3/24/2026 5:31:20 AM | ||||
|---|---|---|---|---|
| Account: R049812425 | Type: Residential | Location: |
443 NW 46TH TER |
|
| Building Name/Occupant: |
|
OKLAHOMA CITY |
||
| Owner Name 1: | BERGMAN THOMAS A |
Parcel PIN#: |
2661-04-981-2425 |
|
| Owner Name 2: | 1/4 section #: |
2661 |
||
| Owner Name 3: | Parent Acct: |
|
||
| Billing Address: | 443 NW 46TH TER | Tax District: |
|
|
| City, State, Zip | OKLAHOMA CITY, OK 73118-8209 | School System: |
Oklahoma City #89 |
|
|
Country: (If noted) |
Land Size: |
0.1597 Acres |
||
|
Land Value: 51,837 |
|
|||
|
Sect 16-T12N-R3W Qtr NE |
EDGEMERE TERRACE
Block
006
Lot
003
|
|||
| Full Legal Description: EDGEMERE TERRACE 006 003 |
| Photo & Sketch (if available) | Comp Sales (ordered by relevancy) |
|
||||||||||||||||||
|
||||||||||||||||||||
| Value History (*The County Treasurer 405-713-1300 posts & collects actual tax amounts. Contact information HERE) | |||||||||||||
|---|---|---|---|---|---|---|---|---|---|---|---|---|---|
| Year | Market Value | Taxable Mkt Value | Gross Assessed | Exemption | Net Assessed | Millage | Est. Tax | Tax Savings | |||||
|
2025 |
208,000 |
144,986 |
15,948 |
1,000 |
14,948 |
122.90 |
$1,837 |
$975 |
|||||
|
2024 |
192,000 |
140,764 |
15,483 |
1,000 |
14,483 |
123.89 |
$1,794 |
$822 |
|||||
|
2023 |
182,500 |
136,665 |
15,032 |
1,000 |
14,032 |
122.82 |
$1,724 |
$742 |
|||||
|
2022 |
151,000 |
132,685 |
14,594 |
1,000 |
13,594 |
117.63 |
$1,599 |
$355 |
|||||
|
2021 |
147,500 |
128,821 |
14,169 |
1,000 |
13,169 |
117.70 |
$1,550 |
$360 |
|||||
| Property Account Status/Adjustments/Exemptions | ||
|---|---|---|
| Account # | Exemption Description | Amount |
|
R049812425 |
3% Cap Homestead |
0 |
|
R049812425 |
Homestead |
1,000 |
| Property Deed Transaction History (Recorded in the County Clerk's Office) | |||||||
|---|---|---|---|---|---|---|---|
| Date | Type | Book | Page | Price | Grantor | Grantee | |
|
5/25/2001 |
|
Deeds |
$74,500 |
TAYLOR BODO |
BERGMAN THOMAS A |
||
|
4/8/1999 |
|
Historical |
$0 |
MORRISON CLIO |
MORRISON CLIO |
||
|
4/8/1999 |
|
Historical |
$62,500 |
MORRISON CLIO |
TAYLOR BODO |
||
|
5/18/1993 |
|
Historical |
$0 |
MORRISON CLIO & MARILYN |
MORRISON CLIO |
||
|
1/1/1976 |
|
Historical |
$0 |
|
MORRISON CLIO & MARILYN |
||
| Last Mailed Notice of Value (N.O.V.) Information/History | ||||||||
|---|---|---|---|---|---|---|---|---|
| Year | Date | Market Value | Taxable Market Value | Gross Assessed | Exemption | Net Assessed | ||
|
2026 |
02/23/2026 |
213,500 |
149,335 |
16,426 |
1,000 |
15,426 |
||
|
2025 |
02/14/2025 |
208,000 |
144,986 |
15,948 |
1,000 |
14,948 |
||
|
2024 |
02/13/2024 |
192,000 |
140,764 |
15,483 |
1,000 |
14,483 |
||
|
2023 |
02/14/2023 |
182,500 |
136,665 |
15,032 |
1,000 |
14,032 |
||
|
2022 |
03/15/2022 |
151,000 |
132,685 |
14,594 |
1,000 |
13,594 |
||
| Property Building Permit History | |||||||||||
|---|---|---|---|---|---|---|---|---|---|---|---|
| Issued | Permit # | Provided by | Bldg # | Description | Est Construction Cost | Status | |||||
| No Building Permit records returned. | |||||||||||
| Click button on building number to access detailed information: | ||||||
|---|---|---|---|---|---|---|
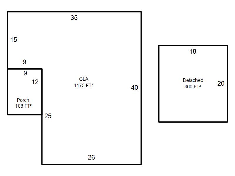
| Bldg # | Vacant/Improved Land | Bldg Description | Year Built | SqFt | # Stories | |
|
1 |
Improved |
Ranch 1 Story |
1951 |
1,175 |
1 Stories |
|