|
|
|
| Larry Stein Oklahoma County Assessor (405) 713-1200 - Public Access System |
|
|
|
|
|
|
| Real Property Display - Screen Produced 3/26/2026 4:02:56 AM | ||||
|---|---|---|---|---|
| Account: R049813100 | Type: Residential | Location: |
406 NW 48TH ST |
|
| Building Name/Occupant: |
|
OKLAHOMA CITY |
||
| Owner Name 1: | ACG MANAGEMENT LLC |
Parcel PIN#: |
2661-04-981-3100 |
|
| Owner Name 2: | 1/4 section #: |
2661 |
||
| Owner Name 3: | Parent Acct: |
|
||
| Billing Address: | 4203 N WESTERN AVE | Tax District: |
|
|
| City, State, Zip | OKLAHOMA CITY, OK 73118-5415 | School System: |
Oklahoma City #89 |
|
|
Country: (If noted) |
Land Size: |
0.1567 Acres |
||
|
Land Value: 34,125 |
|
|||
|
Sect 16-T12N-R3W Qtr NE |
EDGEMERE TERRACE
Block
007
Lot
011
|
|||
| Full Legal Description: EDGEMERE TERRACE 007 011 |
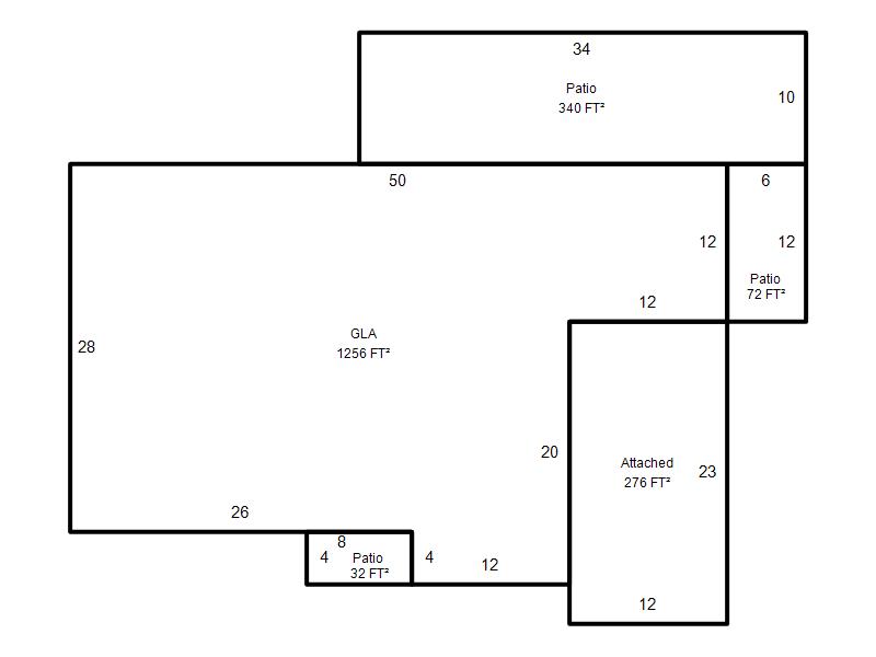
| Photo & Sketch (if available) | Comp Sales (ordered by relevancy) |
|
||||||||||||||||||
|
||||||||||||||||||||
| Value History (*The County Treasurer 405-713-1300 posts & collects actual tax amounts. Contact information HERE) | |||||||||||||
|---|---|---|---|---|---|---|---|---|---|---|---|---|---|
| Year | Market Value | Taxable Mkt Value | Gross Assessed | Exemption | Net Assessed | Millage | Est. Tax | Tax Savings | |||||
| No PropertyValuation records returned. | |||||||||||||
| Property Account Status/Adjustments/Exemptions | ||
|---|---|---|
| Account # | Exemption Description | Amount |
|
R049813100 |
5% Capped Account |
0 |
| Property Deed Transaction History (Recorded in the County Clerk's Office) | ||||||||||
|---|---|---|---|---|---|---|---|---|---|---|
| Date | Type | Book | Page | Price | Grantor | Grantee | ||||
|
1/1/2011 |
|
Hmstd Off & |
$0 |
T & N INVESTMENTS LLC |
ACG MANAGEMENT LLC |
|||||
|
11/20/2006 |
|
Other |
$0 |
T & N INVESTMENTS LLC |
STEINER CARL T PICKRELL NELSON R |
|||||
|
11/20/2006 |
|
Other |
$0 |
STEINER CARL T PICKRELL NELSON R |
T & N INVESTMENTS LLC |
|||||
|
9/28/2006 |
|
Deeds |
$80,000 |
SHELBY VIRGINIA L |
T & N INVESTMENTS LLC |
|||||
|
10/1/1986 |
|
Historical |
$0 |
SHELBY EDGAR W & V L |
SHELBY VIRGINIA L |
|||||
| Last Mailed Notice of Value (N.O.V.) Information/History | ||||||||
|---|---|---|---|---|---|---|---|---|
| Year | Date | Market Value | Taxable Market Value | Gross Assessed | Exemption | Net Assessed | ||
| No Notice of Value N.O.V. records returned. | ||||||||
| Property Building Permit History | |||||||||||
|---|---|---|---|---|---|---|---|---|---|---|---|
| Issued | Permit # | Provided by | Bldg # | Description | Est Construction Cost | Status | |||||
| No Building Permit records returned. | |||||||||||
| Click button on building number to access detailed information: | ||||||
|---|---|---|---|---|---|---|
| Bldg # | Vacant/Improved Land | Bldg Description | Year Built | SqFt | # Stories | |
|
1 |
Improved |
Ranch 1 Story |
1950 |
1,256 |
1 Stories |
|