|
|
|
| Larry Stein Oklahoma County Assessor (405) 713-1200 - Public Access System |
|
|
|
|
|
|
| Real Property Display - Screen Produced 3/28/2026 4:05:06 AM | ||||
|---|---|---|---|---|
| Account: R049814375 | Type: Residential | Location: |
5000 N HARVEY PKWY |
|
| Building Name/Occupant: |
|
OKLAHOMA CITY |
||
| Owner Name 1: | BRYCE TOBY |
Parcel PIN#: |
2661-04-981-4375 |
|
| Owner Name 2: | 1/4 section #: |
2661 |
||
| Owner Name 3: | Parent Acct: |
|
||
| Billing Address: | 5000 N HARVEY PKWY | Tax District: |
|
|
| City, State, Zip | OKLAHOMA CITY, OK 73118 | School System: |
Oklahoma City #89 |
|
|
Country: (If noted) |
Land Size: |
0.1800 Acres |
||
|
Land Value: 39,200 |
|
|||
|
Sect 16-T12N-R3W Qtr NE |
EDGEMERE TERRACE
Block
010
Lot
007
|
|||
| Full Legal Description: EDGEMERE TERRACE 010 007 |
| Photo & Sketch (if available) | Comp Sales (ordered by relevancy) |
|
||||||||||||||||||
|
||||||||||||||||||||
| Value History (*The County Treasurer 405-713-1300 posts & collects actual tax amounts. Contact information HERE) | |||||||||||||
|---|---|---|---|---|---|---|---|---|---|---|---|---|---|
| Year | Market Value | Taxable Mkt Value | Gross Assessed | Exemption | Net Assessed | Millage | Est. Tax | Tax Savings | |||||
| No PropertyValuation records returned. | |||||||||||||
| Property Account Status/Adjustments/Exemptions | ||
|---|---|---|
| Account # | Exemption Description | Amount |
|
R049814375 |
3% Cap Homestead |
0 |
|
R049814375 |
Homestead |
1,000 |
| Property Deed Transaction History (Recorded in the County Clerk's Office) | |||||||
|---|---|---|---|---|---|---|---|
| Date | Type | Book | Page | Price | Grantor | Grantee | |
|
8/6/2021 |
|
Deeds |
$225,000 |
JIMENEZ FERNANDO |
BRYCE TOBY |
||
|
10/22/2007 |
|
Deeds |
$85,000 |
COVARRUBIAS SERGIO C |
JIMENEZ FERNANDO |
||
|
12/2/1998 |
|
Historical |
$70,000 |
DUELLO DENIS J JR & STACI |
COVARRUBIAS SERGIO C |
||
|
9/12/1994 |
|
Historical |
$50,000 |
NORTON KAREN JO |
DUELLO DENIS J JR & STACI |
||
|
10/1/1983 |
|
Historical |
$0 |
|
NORTON KAREN JO |
||
| Last Mailed Notice of Value (N.O.V.) Information/History | ||||||||
|---|---|---|---|---|---|---|---|---|
| Year | Date | Market Value | Taxable Market Value | Gross Assessed | Exemption | Net Assessed | ||
| No Notice of Value N.O.V. records returned. | ||||||||
| Property Building Permit History | |||||||||||
|---|---|---|---|---|---|---|---|---|---|---|---|
| Issued | Permit # | Provided by | Bldg # | Description | Est Construction Cost | Status | |||||
| No Building Permit records returned. | |||||||||||
| Click button on building number to access detailed information: | ||||||
|---|---|---|---|---|---|---|
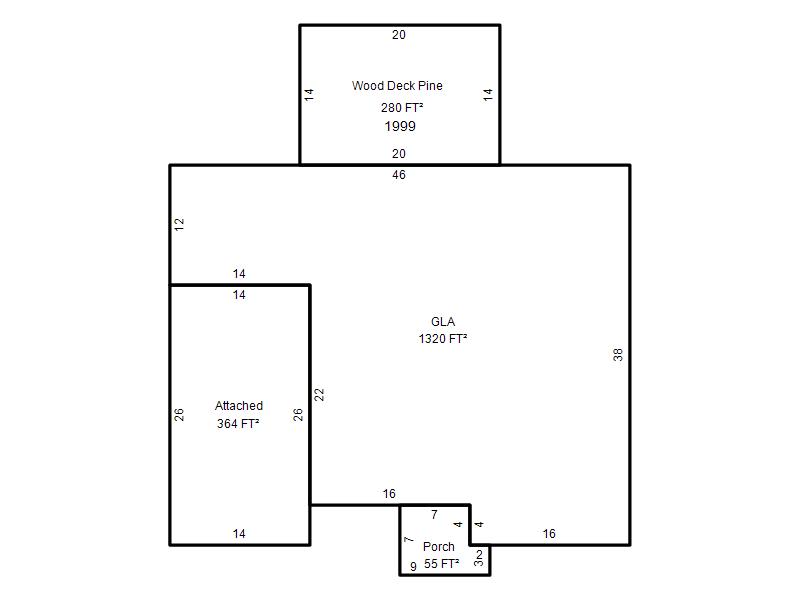
| Bldg # | Vacant/Improved Land | Bldg Description | Year Built | SqFt | # Stories | |
|
1 |
Improved |
Ranch 1 Story |
1952 |
1,320 |
1 Stories |
|