|
|
|
| Larry Stein Oklahoma County Assessor (405) 713-1200 - Public Access System |
|
|
|
|
|
|
| Real Property Display - Screen Produced 3/24/2026 5:22:03 AM | ||||
|---|---|---|---|---|
| Account: R049814400 | Type: Residential | Location: |
5006 N HARVEY PKWY |
|
| Building Name/Occupant: |
|
OKLAHOMA CITY |
||
| Owner Name 1: | ROTTO KIMBERLY A & DALE L |
Parcel PIN#: |
2661-04-981-4400 |
|
| Owner Name 2: | 1/4 section #: |
2661 |
||
| Owner Name 3: | Parent Acct: |
|
||
| Billing Address: | 5006 N HARVEY PKWY | Tax District: |
|
|
| City, State, Zip | OKLAHOMA CITY, OK 73118 | School System: |
Oklahoma City #89 |
|
|
Country: (If noted) |
Land Size: |
0.1800 Acres |
||
|
Land Value: 39,200 |
|
|||
|
Sect 16-T12N-R3W Qtr NE |
EDGEMERE TERRACE
Block
010
Lot
008
|
|||
| Full Legal Description: EDGEMERE TERRACE 010 008 |
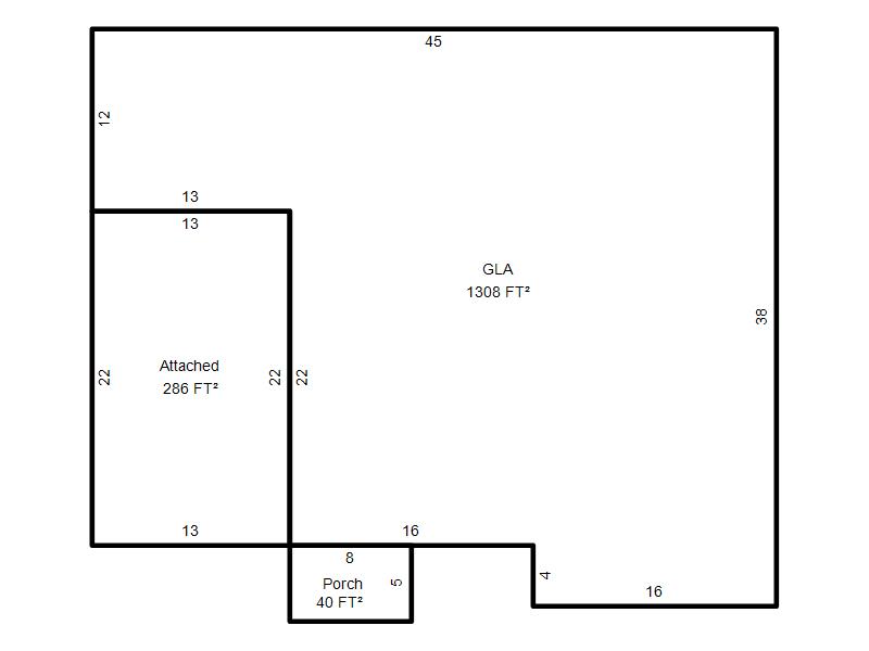
| Photo & Sketch (if available) | Comp Sales (ordered by relevancy) |
|
||||||||||||||||||
|
||||||||||||||||||||
| Value History (*The County Treasurer 405-713-1300 posts & collects actual tax amounts. Contact information HERE) | |||||||||||||
|---|---|---|---|---|---|---|---|---|---|---|---|---|---|
| Year | Market Value | Taxable Mkt Value | Gross Assessed | Exemption | Net Assessed | Millage | Est. Tax | Tax Savings | |||||
|
2025 |
304,000 |
261,940 |
28,813 |
0 |
28,813 |
122.90 |
$3,541 |
$569 |
|||||
|
2024 |
302,000 |
249,467 |
27,440 |
0 |
27,440 |
123.89 |
$3,400 |
$716 |
|||||
|
2023 |
298,500 |
237,588 |
26,134 |
0 |
26,134 |
122.82 |
$3,210 |
$823 |
|||||
|
2022 |
259,500 |
226,275 |
24,890 |
0 |
24,890 |
117.63 |
$2,928 |
$430 |
|||||
|
2021 |
215,500 |
215,500 |
23,705 |
0 |
23,705 |
117.70 |
$2,790 |
$0 |
|||||
| Property Account Status/Adjustments/Exemptions | ||
|---|---|---|
| Account # | Exemption Description | Amount |
|
R049814400 |
5% Capped Account |
0 |
| Property Deed Transaction History (Recorded in the County Clerk's Office) | |||||||
|---|---|---|---|---|---|---|---|
| Date | Type | Book | Page | Price | Grantor | Grantee | |
|
5/21/2020 |
|
Deeds |
$207,500 |
LARSEN DENNIS L & KAREN L |
ROTTO KIMBERLY A & DALE L |
||
|
5/21/2015 |
|
Deeds |
$171,000 |
BUCKET LIST LLC |
LARSEN DENNIS L & KAREN L |
||
|
2/20/2015 |
|
Deeds |
$100,000 |
BUTCHER SUSAN E TRS SUSAN E BUTCHER 1990 TRUST |
BUCKET LIST LLC |
||
|
3/15/1990 |
|
Historical |
$0 |
BUTCHER THOMAS D |
BUTCHER SUSAN E TRS |
||
|
11/1/1983 |
|
Historical |
$0 |
|
BUTCHER THOMAS D |
||
| Last Mailed Notice of Value (N.O.V.) Information/History | ||||||||
|---|---|---|---|---|---|---|---|---|
| Year | Date | Market Value | Taxable Market Value | Gross Assessed | Exemption | Net Assessed | ||
|
2026 |
02/23/2026 |
292,500 |
275,037 |
30,253 |
0 |
30,253 |
||
|
2025 |
02/14/2025 |
304,000 |
261,940 |
28,813 |
0 |
28,813 |
||
|
2024 |
02/13/2024 |
302,000 |
249,467 |
27,440 |
0 |
27,440 |
||
|
2023 |
02/14/2023 |
298,500 |
237,588 |
26,134 |
0 |
26,134 |
||
|
2022 |
03/15/2022 |
259,500 |
226,275 |
24,890 |
0 |
24,890 |
||
| Property Building Permit History | |||||||||||
|---|---|---|---|---|---|---|---|---|---|---|---|
| Issued | Permit # | Provided by | Bldg # | Description | Est Construction Cost | Status | |||||
| No Building Permit records returned. | |||||||||||
| Click button on building number to access detailed information: | ||||||
|---|---|---|---|---|---|---|
| Bldg # | Vacant/Improved Land | Bldg Description | Year Built | SqFt | # Stories | |
|
1 |
Improved |
Ranch 1 Story |
1952 |
1,308 |
1 Stories |
|