|
|
|
| Larry Stein Oklahoma County Assessor (405) 713-1200 - Public Access System |
|
|
|
|
|
|
| Real Property Display - Screen Produced 3/24/2026 5:31:20 AM | ||||
|---|---|---|---|---|
| Account: R049814700 | Type: Residential | Location: |
4520 N HARVEY PKWY, Unit A-D |
|
| Building Name/Occupant: |
|
OKLAHOMA CITY |
||
| Owner Name 1: | CALVERT REAL ESTATE WEST EDMOND LLC |
Parcel PIN#: |
2661-04-981-4700 |
|
| Owner Name 2: | 1/4 section #: |
2661 |
||
| Owner Name 3: | Parent Acct: |
|
||
| Billing Address: | 13505 RED CEDAR DR | Tax District: |
|
|
| City, State, Zip | OKLAHOMA CITY, OK 73131-1835 | School System: |
Oklahoma City #89 |
|
|
Country: (If noted) |
Land Size: |
0.1923 Acres |
||
|
Land Value: 62,416 |
|
|||
|
Sect 16-T12N-R3W Qtr NE |
EDGEMERE TERRACE
Block
011
Lot
000
|
|||
| Full Legal Description: EDGEMERE TERRACE 011 000 N11FT OF LOT 9 ALL OF LOT 10 |
| Photo & Sketch (if available) | Comp Sales (ordered by relevancy) |
|
||||||||||||||||||
|
||||||||||||||||||||
| Value History (*The County Treasurer 405-713-1300 posts & collects actual tax amounts. Contact information HERE) | |||||||||||||
|---|---|---|---|---|---|---|---|---|---|---|---|---|---|
| Year | Market Value | Taxable Mkt Value | Gross Assessed | Exemption | Net Assessed | Millage | Est. Tax | Tax Savings | |||||
|
2025 |
268,000 |
268,000 |
29,480 |
0 |
29,480 |
122.90 |
$3,623 |
$0 |
|||||
|
2024 |
262,500 |
256,725 |
28,239 |
0 |
28,239 |
123.89 |
$3,499 |
$79 |
|||||
|
2023 |
244,500 |
244,500 |
26,895 |
0 |
26,895 |
122.82 |
$3,303 |
$0 |
|||||
|
2022 |
237,500 |
237,500 |
26,125 |
0 |
26,125 |
117.63 |
$3,073 |
$0 |
|||||
|
2021 |
227,000 |
227,000 |
24,970 |
0 |
24,970 |
117.70 |
$2,939 |
$0 |
|||||
| Property Account Status/Adjustments/Exemptions | ||
|---|---|---|
| Account # | Exemption Description | Amount |
|
R049814700 |
5% Capped Account |
0 |
| Property Deed Transaction History (Recorded in the County Clerk's Office) | |||||||
|---|---|---|---|---|---|---|---|
| Date | Type | Book | Page | Price | Grantor | Grantee | |
|
6/28/2013 |
|
Deeds |
$220,000 |
MAKEDA PROPERTIES INC |
CALVERT REAL ESTATE WEST EDMOND LLC |
||
|
8/3/2009 |
|
Hmstd Off & |
$0 |
WORKU TEFERA & HIWOT ASSEFA |
MAKEDA PROPERTIES INC |
||
|
3/14/2002 |
|
Deeds |
$120,000 |
GREEAR DAVID E |
WORKU TEFERA |
||
|
3/1/1976 |
|
Historical |
$0 |
|
GREEAR DAVID E |
||
| Last Mailed Notice of Value (N.O.V.) Information/History | ||||||||
|---|---|---|---|---|---|---|---|---|
| Year | Date | Market Value | Taxable Market Value | Gross Assessed | Exemption | Net Assessed | ||
|
2026 |
02/23/2026 |
395,500 |
281,400 |
30,954 |
0 |
30,954 |
||
|
2025 |
02/14/2025 |
268,000 |
268,000 |
29,480 |
0 |
29,480 |
||
|
2024 |
02/13/2024 |
262,500 |
256,725 |
28,239 |
0 |
28,239 |
||
|
2023 |
02/14/2023 |
244,500 |
244,500 |
26,895 |
0 |
26,895 |
||
|
2022 |
03/15/2022 |
237,500 |
237,500 |
26,125 |
0 |
26,125 |
||
| Property Building Permit History | |||||||||||
|---|---|---|---|---|---|---|---|---|---|---|---|
| Issued | Permit # | Provided by | Bldg # | Description | Est Construction Cost | Status | |||||
| No Building Permit records returned. | |||||||||||
| Click button on building number to access detailed information: | ||||||
|---|---|---|---|---|---|---|
| Bldg # | Vacant/Improved Land | Bldg Description | Year Built | SqFt | # Stories | |
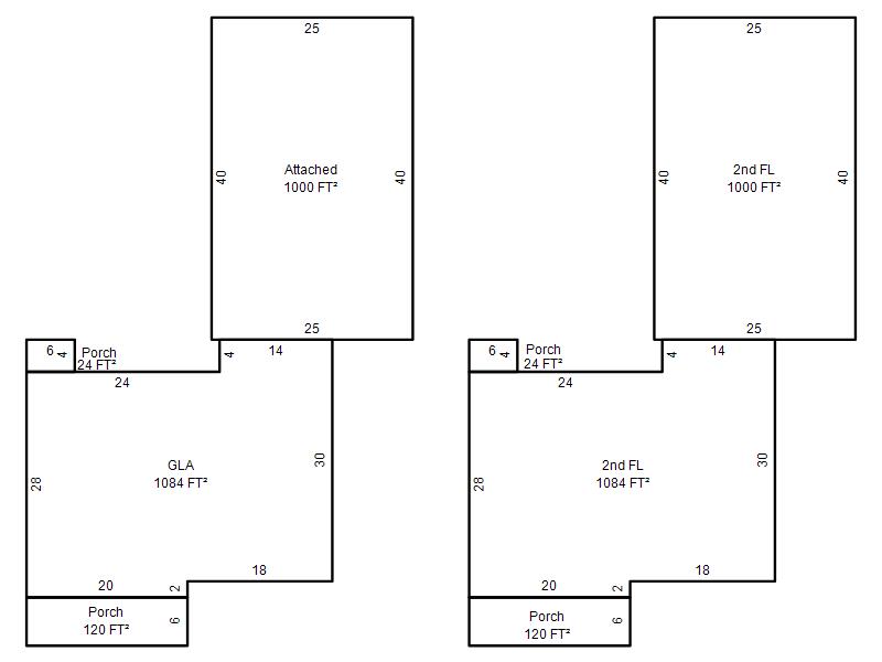
|
1 |
Improved |
Apartment <= 3 Stories |
1952 |
3,168 |
2 Stories |
|