|
|
|
| Larry Stein Oklahoma County Assessor (405) 713-1200 - Public Access System |
|
|
|
|
|
|
| Real Property Display - Screen Produced 3/26/2026 4:02:55 AM | ||||
|---|---|---|---|---|
| Account: R049640080 | Type: Residential | Location: |
529 NW 49TH ST |
|
| Building Name/Occupant: |
|
OKLAHOMA CITY |
||
| Owner Name 1: | ROBERTS RICHARD |
Parcel PIN#: |
2664-04-964-0080 |
|
| Owner Name 2: | 1/4 section #: |
2664 |
||
| Owner Name 3: | Parent Acct: |
|
||
| Billing Address: | 529 NW 49TH ST | Tax District: |
|
|
| City, State, Zip | OKLAHOMA CITY, OK 73118-6601 | School System: |
Oklahoma City #89 |
|
|
Country: (If noted) |
Land Size: |
0.1607 Acres |
||
|
Land Value: 46,200 |
|
|||
|
Sect 16-T12N-R3W Qtr NW |
DOUGLAS PLACE ADD
Block
001
Lot
000
|
|||
| Full Legal Description: DOUGLAS PLACE ADD 001 000 LOTS 29 & 30 |
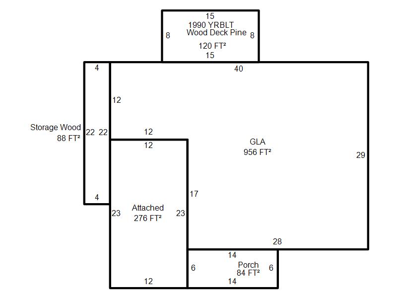
| Photo & Sketch (if available) | Comp Sales (ordered by relevancy) |
|
||||||||||||||||||
|
||||||||||||||||||||
| Value History (*The County Treasurer 405-713-1300 posts & collects actual tax amounts. Contact information HERE) | |||||||||||||
|---|---|---|---|---|---|---|---|---|---|---|---|---|---|
| Year | Market Value | Taxable Mkt Value | Gross Assessed | Exemption | Net Assessed | Millage | Est. Tax | Tax Savings | |||||
| No PropertyValuation records returned. | |||||||||||||
| Property Account Status/Adjustments/Exemptions | ||
|---|---|---|
| Account # | Exemption Description | Amount |
|
R049640080 |
5% Capped Account |
0 |
| Property Deed Transaction History (Recorded in the County Clerk's Office) | ||||||||||
|---|---|---|---|---|---|---|---|---|---|---|
| Date | Type | Book | Page | Price | Grantor | Grantee | ||||
|
7/11/2008 |
|
Other |
$0 |
TRENT ROBERT M |
ROBERTS RICHARD |
|||||
|
7/10/2008 |
|
Deeds |
$0 |
TRENT ROBERT M & KRISTY K |
ROBERTS RICHARD |
|||||
|
1/10/2005 |
|
Deeds |
$68,000 |
ZABEL MATT |
TRENT ROBERT M |
|||||
|
8/29/2000 |
|
Deeds |
$62,000 |
HUFFMYER BARRETT |
ZABEL MATT |
|||||
|
3/2/1998 |
|
Historical |
$57,000 |
DELLUOMO DANA |
HUFFMYER BARRETT |
|||||
| Last Mailed Notice of Value (N.O.V.) Information/History | ||||||||
|---|---|---|---|---|---|---|---|---|
| Year | Date | Market Value | Taxable Market Value | Gross Assessed | Exemption | Net Assessed | ||
| No Notice of Value N.O.V. records returned. | ||||||||
| Property Building Permit History | |||||||||||
|---|---|---|---|---|---|---|---|---|---|---|---|
| Issued | Permit # | Provided by | Bldg # | Description | Est Construction Cost | Status | |||||
| No Building Permit records returned. | |||||||||||
| Click button on building number to access detailed information: | ||||||
|---|---|---|---|---|---|---|
| Bldg # | Vacant/Improved Land | Bldg Description | Year Built | SqFt | # Stories | |
|
1 |
Improved |
Ranch 1 Story |
1950 |
956 |
1 Stories |
|