|
|
|
| Larry Stein Oklahoma County Assessor (405) 713-1200 - Public Access System |
|
|
|
|
|
|
| Real Property Display - Screen Produced 3/26/2026 4:42:50 AM | ||||
|---|---|---|---|---|
| Account: R049641120 | Type: Commercial | Location: |
4920 N WESTERN AVE |
|
| Building Name/Occupant: |
HteaO |
OKLAHOMA CITY |
||
| Owner Name 1: | GT JOURNEY CORP |
Parcel PIN#: |
2664-04-964-1120 |
|
| Owner Name 2: | 1/4 section #: |
2664 |
||
| Owner Name 3: | Parent Acct: |
|
||
| Billing Address: | 4920 N WESTERN AVE | Tax District: |
|
|
| City, State, Zip | OKLAHOMA CITY, OK 73118 | School System: |
Oklahoma City #89 |
|
|
Country: (If noted) |
Land Size: |
21,000.0000 Square Feet |
||
|
Land Value: 779,712 |
|
|||
|
Sect 16-T12N-R3W Qtr NW |
DOUGLAS PLACE ADD
Block
005
Lot
000
|
|||
| Full Legal Description: DOUGLAS PLACE ADD 005 000 LOTS 19 THRU 24 |
| No comparable sales report available. | ||||||||||||||||||||||
|
||||||||||||||||||||||
| Value History (*The County Treasurer 405-713-1300 posts & collects actual tax amounts. Contact information HERE) | |||||||||||||
|---|---|---|---|---|---|---|---|---|---|---|---|---|---|
| Year | Market Value | Taxable Mkt Value | Gross Assessed | Exemption | Net Assessed | Millage | Est. Tax | Tax Savings | |||||
|
2026 |
1,326,456 |
1,326,456 |
145,910 |
0 |
145,910 |
122.90 |
$17,932 |
$0 |
|||||
|
2025 |
1,290,321 |
1,271,946 |
139,913 |
0 |
139,913 |
122.90 |
$17,195 |
$248 |
|||||
|
2024 |
735,000 |
682,500 |
75,075 |
0 |
75,075 |
123.89 |
$9,301 |
$715 |
|||||
|
2023 |
650,000 |
650,000 |
71,500 |
0 |
71,500 |
122.82 |
$8,782 |
$0 |
|||||
|
2022 |
270,742 |
270,742 |
29,781 |
0 |
29,781 |
117.63 |
$3,503 |
$0 |
|||||
| Property Account Status/Adjustments/Exemptions | ||
|---|---|---|
| Account # | Exemption Description | Amount |
|
R049641120 |
5% Capped Account |
0 |
| Property Deed Transaction History (Recorded in the County Clerk's Office) | ||||||||||
|---|---|---|---|---|---|---|---|---|---|---|
| Date | Type | Book | Page | Price | Grantor | Grantee | ||||
|
11/21/2022 |
|
Deeds |
$792,000 |
J2K2 LLC |
GT JOURNEY CORP |
|||||
|
4/4/2014 |
|
Mult Parcel |
$900,000 |
CHESAPEAKE LAND CO LLC |
J2K2 LLC |
|||||
|
7/29/2005 |
|
Deeds |
$375,000 |
ESSAILI ABRAHAM H |
CHESAPEAKE LAND CO LLC |
|||||
|
5/28/2004 |
|
Deeds |
$0 |
CRAMER HARVEY D ETAL |
ESSAILI ABRAHAM H |
|||||
|
1/15/1997 |
|
Historical |
$0 |
CRAMER HARVEY D ETAL |
CRAMER HARVEY D ETAL |
|||||
| Last Mailed Notice of Value (N.O.V.) Information/History | ||||||||
|---|---|---|---|---|---|---|---|---|
| Year | Date | Market Value | Taxable Market Value | Gross Assessed | Exemption | Net Assessed | ||
|
2026 |
03/23/2026 |
1,326,456 |
1,326,456 |
145,910 |
0 |
145,910 |
||
|
2025 |
03/14/2025 |
1,290,321 |
1,271,946 |
139,913 |
0 |
139,913 |
||
|
2024 |
03/12/2024 |
735,000 |
682,500 |
75,075 |
0 |
75,075 |
||
|
2023 |
03/13/2023 |
650,000 |
650,000 |
71,500 |
0 |
71,500 |
||
|
2021 |
03/22/2021 |
303,770 |
303,770 |
33,414 |
0 |
33,414 |
||
| Property Building Permit History | ||||||
|---|---|---|---|---|---|---|
| Issued | Permit # | Provided by | Bldg # | Description | Est Construction Cost | Status |
|
5/17/2023 |
BLDC-2023-00504 |
|
|
Commercial |
1,000,000 |
Inactive |
|
5/1/2009 |
10382616 |
OKLAHOMA CITY |
|
Carport |
175,000 |
Inactive |
|
5/1/2009 |
10382489 |
OKLAHOMA CITY |
|
Storage Buil |
175,000 |
Inactive |
|
8/12/2005 |
10310659 |
OKLAHOMA CITY |
|
Demolish |
0 |
Inactive |
| Click button on building number to access detailed information: | ||||||
|---|---|---|---|---|---|---|
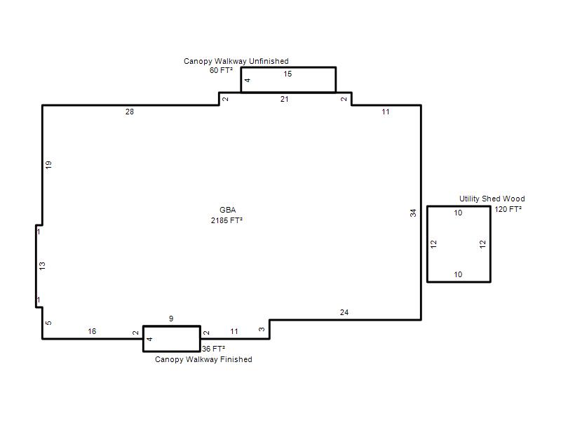
| Bldg # | Vacant/Improved Land | Bldg Description | Year Built | SqFt | # Stories | |
|
1 |
Improved |
Fast Food Restaurant |
2024 |
2,185 |
1 Stories |
|