|
|
|
| Larry Stein Oklahoma County Assessor (405) 713-1200 - Public Access System |
|
|
|
|
|
|
| Real Property Display - Screen Produced 3/24/2026 10:45:53 AM | ||||
|---|---|---|---|---|
| Account: R049642545 | Type: Residential | Location: |
712 NW 48TH ST |
|
| Building Name/Occupant: |
|
OKLAHOMA CITY |
||
| Owner Name 1: | ALLEN KORY |
Parcel PIN#: |
2664-04-964-2545 |
|
| Owner Name 2: | HUFFAKER LAUREN | 1/4 section #: |
2664 |
|
| Owner Name 3: | Parent Acct: |
|
||
| Billing Address: | 512 NW 41ST ST | Tax District: |
|
|
| City, State, Zip | OKLAHOMA CITY, OK 73118 | School System: |
Oklahoma City #89 |
|
|
Country: (If noted) |
Land Size: |
0.1607 Acres |
||
|
Land Value: 46,200 |
|
|||
|
Sect 16-T12N-R3W Qtr NW |
DOUGLAS PLACE ADD
Block
010
Lot
000
|
|||
| Full Legal Description: DOUGLAS PLACE ADD 010 000 LOTS 19 & 20 |
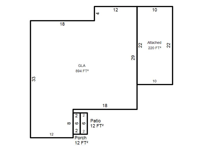
| Photo & Sketch (if available) | Comp Sales (ordered by relevancy) |
|
||||||||||||||||||
|
||||||||||||||||||||
| Value History (*The County Treasurer 405-713-1300 posts & collects actual tax amounts. Contact information HERE) | |||||||||||||
|---|---|---|---|---|---|---|---|---|---|---|---|---|---|
| Year | Market Value | Taxable Mkt Value | Gross Assessed | Exemption | Net Assessed | Millage | Est. Tax | Tax Savings | |||||
|
2025 |
166,500 |
155,700 |
17,126 |
0 |
17,126 |
122.90 |
$2,105 |
$146 |
|||||
|
2024 |
153,500 |
148,286 |
16,310 |
0 |
16,310 |
123.89 |
$2,021 |
$71 |
|||||
|
2023 |
148,500 |
141,225 |
15,534 |
0 |
15,534 |
122.82 |
$1,908 |
$98 |
|||||
|
2022 |
134,500 |
134,500 |
14,795 |
0 |
14,795 |
117.63 |
$1,740 |
$0 |
|||||
|
2021 |
137,000 |
137,000 |
15,070 |
0 |
15,070 |
117.70 |
$1,774 |
$0 |
|||||
| Property Account Status/Adjustments/Exemptions | ||
|---|---|---|
| Account # | Exemption Description | Amount |
|
R049642545 |
5% Capped Account |
0 |
| Property Deed Transaction History (Recorded in the County Clerk's Office) | ||||||||||
|---|---|---|---|---|---|---|---|---|---|---|
| Date | Type | Book | Page | Price | Grantor | Grantee | ||||
|
10/4/2019 |
|
Deeds |
$143,000 |
TRUE CHAD D & CARRIE J TRS |
ALLEN KORY |
|||||
|
3/25/2019 |
|
Deeds |
$0 |
TRUE CHAD D |
TRUE CHAD D & CARRIE J TRS |
|||||
|
10/20/2017 |
|
Deeds |
$130,500 |
KASERMAN SADIE CATHERINE |
TRUE CHAD D |
|||||
|
7/9/2013 |
|
Deeds |
$90,000 |
ELDRIDGE CLARENCE KENT & JANA DELEA |
KASERMAN SADIE CATHERINE |
|||||
|
11/24/2003 |
|
Hmstd Off & |
$0 |
ENGLE JOHN J |
ELDRIDGE CLARENCE KENT & JANA DELEA |
|||||
| Last Mailed Notice of Value (N.O.V.) Information/History | ||||||||
|---|---|---|---|---|---|---|---|---|
| Year | Date | Market Value | Taxable Market Value | Gross Assessed | Exemption | Net Assessed | ||
|
2026 |
02/23/2026 |
172,500 |
163,485 |
17,983 |
0 |
17,983 |
||
|
2025 |
02/14/2025 |
166,500 |
155,700 |
17,126 |
0 |
17,126 |
||
|
2024 |
02/13/2024 |
153,500 |
148,286 |
16,310 |
0 |
16,310 |
||
|
2023 |
02/14/2023 |
148,500 |
141,225 |
15,534 |
0 |
15,534 |
||
|
2020 |
03/10/2020 |
141,500 |
141,500 |
15,565 |
0 |
15,565 |
||
| Property Building Permit History | |||||||||||
|---|---|---|---|---|---|---|---|---|---|---|---|
| Issued | Permit # | Provided by | Bldg # | Description | Est Construction Cost | Status | |||||
| No Building Permit records returned. | |||||||||||
| Click button on building number to access detailed information: | ||||||
|---|---|---|---|---|---|---|
| Bldg # | Vacant/Improved Land | Bldg Description | Year Built | SqFt | # Stories | |
|
1 |
Improved |
Ranch 1 Story |
1940 |
894 |
1 Stories |
|