|
|
|
| Larry Stein Oklahoma County Assessor (405) 713-1200 - Public Access System |
|
|
|
|
|
|
| Real Property Display - Screen Produced 3/12/2026 4:19:31 AM | ||||
|---|---|---|---|---|
| Account: R267091102 | Type: Residential | Location: |
1721 S LUTHER RD |
|
| Building Name/Occupant: |
|
UNINCORPORATED |
||
| Owner Name 1: | MEEK MICHAEL J |
Parcel PIN#: |
1033-26-709-1102 |
|
| Owner Name 2: | 1/4 section #: |
1033 |
||
| Owner Name 3: | Parent Acct: |
|
||
| Billing Address: | 1721 S LUTHER RD | Tax District: |
|
|
| City, State, Zip | HARRAH, OK 73045-6359 | School System: |
Choctaw #4 |
|
|
Country: (If noted) |
Land Size: |
1.0000 Acres |
||
|
Land Value: 11,000 |
|
|||
|
Sect 9-T11N-R1E Qtr NE |
POTTAWATOMIE TOWNSHIP
Block
000
Lot
000
|
|||
| Full Legal Description: POTTAWATOMIE TOWNSHIP PT NE4 SEC 9 11N 1E BEG 395.22FT S OF NE/C NE4 TH W329.92FT S131.73FT E329.93FT TH N TO BEG SUBJ TO ESMTS OF RECORD AKA PT OF TR 1 POINTON HI LAND UNREC |
| Photo & Sketch (if available) | Comp Sales (ordered by relevancy) |
|
||||||||||||||||||
|
||||||||||||||||||||
| Value History (*The County Treasurer 405-713-1300 posts & collects actual tax amounts. Contact information HERE) | |||||||||||||
|---|---|---|---|---|---|---|---|---|---|---|---|---|---|
| Year | Market Value | Taxable Mkt Value | Gross Assessed | Exemption | Net Assessed | Millage | Est. Tax | Tax Savings | |||||
|
2025 |
215,000 |
120,172 |
13,217 |
1,000 |
12,217 |
117.21 |
$1,432 |
$1,340 |
|||||
|
2024 |
208,000 |
116,672 |
12,833 |
1,000 |
11,833 |
116.35 |
$1,377 |
$1,285 |
|||||
|
2023 |
190,000 |
113,274 |
12,459 |
1,000 |
11,459 |
117.10 |
$1,342 |
$1,105 |
|||||
|
2022 |
166,500 |
109,975 |
12,096 |
1,000 |
11,096 |
115.17 |
$1,278 |
$831 |
|||||
|
2021 |
136,500 |
106,772 |
11,744 |
1,000 |
10,744 |
115.06 |
$1,236 |
$491 |
|||||
| Property Account Status/Adjustments/Exemptions | ||
|---|---|---|
| Account # | Exemption Description | Amount |
|
R267091102 |
Homestead |
1,000 |
|
R267091102 |
3% Cap Homestead |
0 |
| Property Deed Transaction History (Recorded in the County Clerk's Office) | |||||||
|---|---|---|---|---|---|---|---|
| Date | Type | Book | Page | Price | Grantor | Grantee | |
|
5/22/2022 |
|
Deeds |
$0 |
MEEK MICHAEL J & ANA G |
MEEK MICHAEL J |
||
|
12/9/2003 |
|
Deeds |
$85,000 |
CRAMER RANDAL G & PATTI E |
MEEK MICHAEL J & ANA G |
||
|
6/1/1984 |
|
Historical |
$0 |
|
CRAMER RANDAL G & PATTI E |
||
| Last Mailed Notice of Value (N.O.V.) Information/History | ||||||||
|---|---|---|---|---|---|---|---|---|
| Year | Date | Market Value | Taxable Market Value | Gross Assessed | Exemption | Net Assessed | ||
|
2026 |
02/06/2026 |
201,000 |
123,777 |
13,614 |
1,000 |
12,614 |
||
|
2025 |
01/31/2025 |
215,000 |
120,172 |
13,217 |
1,000 |
12,217 |
||
|
2024 |
01/22/2024 |
208,000 |
116,672 |
12,833 |
1,000 |
11,833 |
||
|
2023 |
01/23/2023 |
190,000 |
113,274 |
12,459 |
1,000 |
11,459 |
||
|
2022 |
02/22/2022 |
166,500 |
109,975 |
12,096 |
1,000 |
11,096 |
||
| Property Building Permit History | |||||||||||
|---|---|---|---|---|---|---|---|---|---|---|---|
| Issued | Permit # | Provided by | Bldg # | Description | Est Construction Cost | Status | |||||
| No Building Permit records returned. | |||||||||||
| Click button on building number to access detailed information: | ||||||
|---|---|---|---|---|---|---|
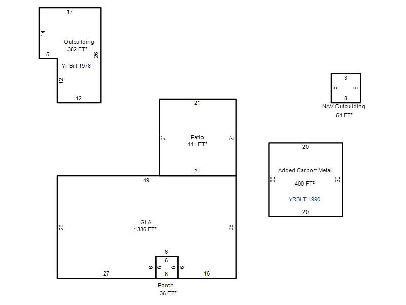
| Bldg # | Vacant/Improved Land | Bldg Description | Year Built | SqFt | # Stories | |
|
1 |
Improved |
Ranch 1 Story |
1978 |
1,336 |
1 Stories |
|