|
|
|
| Larry Stein Oklahoma County Assessor (405) 713-1200 - Public Access System |
|
|
|
|
|
|
| Real Property Display - Screen Produced 4/1/2026 12:28:10 AM | ||||
|---|---|---|---|---|
| Account: R121581217 | Type: Residential | Location: |
4400 HEMINGWAY DR, Unit 217 |
|
| Building Name/Occupant: |
|
OKLAHOMA CITY |
||
| Owner Name 1: | KOSTURA THOMAS JAY |
Parcel PIN#: |
2668-12-158-1217 |
|
| Owner Name 2: | 1/4 section #: |
2668 |
||
| Owner Name 3: | Parent Acct: |
|
||
| Billing Address: | 4400 HEMINGWAY DR, Unit 217 | Tax District: |
|
|
| City, State, Zip | OKLAHOMA CITY, OK 73118-2240 | School System: |
Oklahoma City #89 |
|
|
Country: (If noted) |
Land Size: |
1.0000 Square Feet |
||
|
Land Value: 26,325 |
|
|||
|
Sect 17-T12N-R3W Qtr NW |
HEMINGWAY CONDOMINIUMS
Block
000
Lot
000
|
|||
| Full Legal Description: HEMINGWAY CONDOMINIUMS 000 000 UNIT 217 |
| Photo & Sketch (if available) | Comp Sales (ordered by relevancy) |
|
||||||||||||||||||
|
||||||||||||||||||||
| Value History (*The County Treasurer 405-713-1300 posts & collects actual tax amounts. Contact information HERE) | |||||||||||||
|---|---|---|---|---|---|---|---|---|---|---|---|---|---|
| Year | Market Value | Taxable Mkt Value | Gross Assessed | Exemption | Net Assessed | Millage | Est. Tax | Tax Savings | |||||
|
2026 |
138,500 |
138,500 |
15,235 |
0 |
15,235 |
122.90 |
$1,872 |
$0 |
|||||
|
2025 |
141,000 |
141,000 |
15,510 |
0 |
15,510 |
122.90 |
$1,906 |
$0 |
|||||
|
2024 |
143,000 |
120,723 |
13,279 |
0 |
13,279 |
123.89 |
$1,645 |
$304 |
|||||
|
2023 |
139,000 |
114,975 |
12,647 |
0 |
12,647 |
122.82 |
$1,553 |
$325 |
|||||
|
2022 |
109,500 |
109,500 |
12,045 |
0 |
12,045 |
117.63 |
$1,417 |
$0 |
|||||
| Property Account Status/Adjustments/Exemptions | ||
|---|---|---|
| Account # | Exemption Description | Amount |
|
R121581217 |
5% Capped Account |
0 |
| Property Deed Transaction History (Recorded in the County Clerk's Office) | ||||||||||
|---|---|---|---|---|---|---|---|---|---|---|
| Date | Type | Book | Page | Price | Grantor | Grantee | ||||
|
9/13/2024 |
|
Deeds |
$140,000 |
SORIANO DANIEL R |
KOSTURA THOMAS JAY |
|||||
|
5/15/2017 |
|
Deeds |
$100,000 |
HAYNIE JOE & FAYE |
SORIANO DANIEL R |
|||||
|
8/11/2009 |
|
Deeds |
$94,000 |
VERMILLION SUSAN E |
HAYNIE JOE & FAYE |
|||||
|
9/13/2007 |
|
Deeds |
$80,000 |
MCVAY DANA LOUISE |
VERMILLION SUSAN E |
|||||
|
6/23/2005 |
|
Deeds |
$77,000 |
BERKELEY MATTHEW |
MCVAY DANA LOUISE |
|||||
| Last Mailed Notice of Value (N.O.V.) Information/History | ||||||||
|---|---|---|---|---|---|---|---|---|
| Year | Date | Market Value | Taxable Market Value | Gross Assessed | Exemption | Net Assessed | ||
|
2025 |
02/14/2025 |
141,000 |
141,000 |
15,510 |
0 |
15,510 |
||
|
2024 |
02/13/2024 |
143,000 |
120,723 |
13,279 |
0 |
13,279 |
||
|
2023 |
02/14/2023 |
139,000 |
114,975 |
12,647 |
0 |
12,647 |
||
|
2022 |
03/15/2022 |
109,500 |
109,500 |
12,045 |
0 |
12,045 |
||
|
2021 |
03/19/2021 |
108,500 |
106,942 |
11,763 |
0 |
11,763 |
||
| Property Building Permit History | |||||||||||
|---|---|---|---|---|---|---|---|---|---|---|---|
| Issued | Permit # | Provided by | Bldg # | Description | Est Construction Cost | Status | |||||
| No Building Permit records returned. | |||||||||||
| Click button on building number to access detailed information: | ||||||
|---|---|---|---|---|---|---|
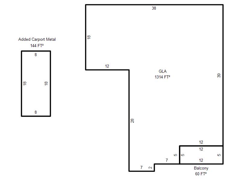
| Bldg # | Vacant/Improved Land | Bldg Description | Year Built | SqFt | # Stories | |
|
1 |
Improved |
Condo <= 3 Stories |
1982 |
1,314 |
1 Stories |
|