|
|
|
| Larry Stein Oklahoma County Assessor (405) 713-1200 - Public Access System |
|
|
|
|
|
|
| Real Property Display - Screen Produced 3/22/2026 8:31:02 AM | ||||
|---|---|---|---|---|
| Account: R059501080 | Type: Residential | Location: |
2529 NW 38TH ST |
|
| Building Name/Occupant: |
|
OKLAHOMA CITY |
||
| Owner Name 1: | JEFFERIES RICHARD G & CYNTHIA L TRS |
Parcel PIN#: |
2671-05-950-1080 |
|
| Owner Name 2: | JEFFERIES FAMILY 2020 REV TRUST | 1/4 section #: |
2671 |
|
| Owner Name 3: | Parent Acct: |
|
||
| Billing Address: | 18916 SADDLE RIVER DR | Tax District: |
|
|
| City, State, Zip | EDMOND, OK 73012 | School System: |
Oklahoma City #89 |
|
|
Country: (If noted) |
Land Size: |
0.2058 Acres |
||
|
Land Value: 34,964 |
|
|||
|
Sect 18-T12N-R3W Qtr SW |
BROOKLYN ADDITION
Block
010
Lot
000
|
|||
| Full Legal Description: BROOKLYN ADDITION 010 000 E10FT OF LOT 9 & W45FT OF LOT 10 |
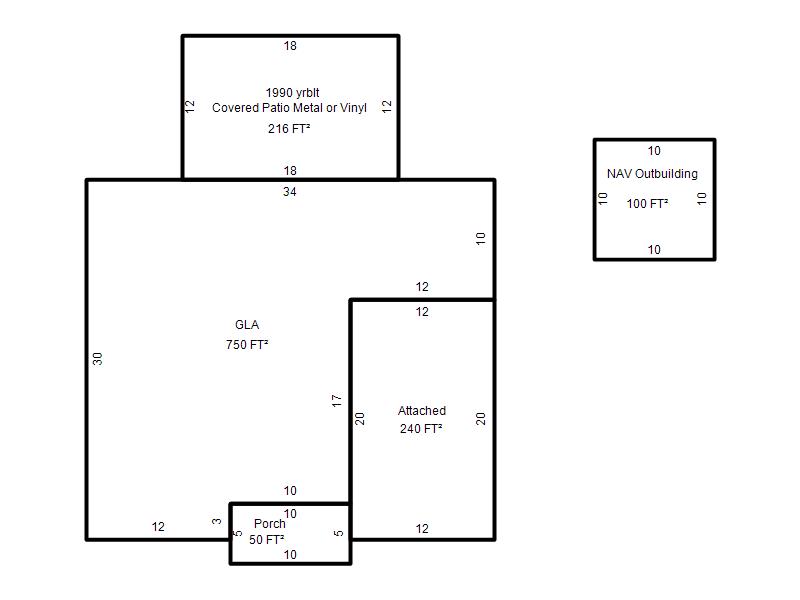
| Photo & Sketch (if available) | Comp Sales (ordered by relevancy) |
|
||||||||||||||||||
|
||||||||||||||||||||
| Value History (*The County Treasurer 405-713-1300 posts & collects actual tax amounts. Contact information HERE) | |||||||||||||
|---|---|---|---|---|---|---|---|---|---|---|---|---|---|
| Year | Market Value | Taxable Mkt Value | Gross Assessed | Exemption | Net Assessed | Millage | Est. Tax | Tax Savings | |||||
|
2025 |
145,500 |
111,583 |
12,273 |
0 |
12,273 |
122.90 |
$1,508 |
$459 |
|||||
|
2024 |
139,500 |
106,270 |
11,689 |
0 |
11,689 |
123.89 |
$1,448 |
$453 |
|||||
|
2023 |
129,000 |
101,210 |
11,133 |
0 |
11,133 |
122.82 |
$1,367 |
$375 |
|||||
|
2022 |
109,000 |
96,391 |
10,601 |
0 |
10,601 |
117.63 |
$1,247 |
$163 |
|||||
|
2021 |
104,500 |
91,801 |
10,097 |
0 |
10,097 |
117.70 |
$1,189 |
$164 |
|||||
| Property Account Status/Adjustments/Exemptions | ||
|---|---|---|
| Account # | Exemption Description | Amount |
|
R059501080 |
5% Capped Account |
0 |
| Property Deed Transaction History (Recorded in the County Clerk's Office) | ||||||||||
|---|---|---|---|---|---|---|---|---|---|---|
| Date | Type | Book | Page | Price | Grantor | Grantee | ||||
|
7/7/2020 |
|
Deeds |
$0 |
JEFFERIES RICHARD G & CYNTHIA L |
JEFFERIES RICHARD G & CYNTHIA L TRS |
|||||
|
12/17/2014 |
|
Hmstd Off & |
$0 |
GLOWELL PROPERTIES LLC |
LOWELL GENE L REV TRUST |
|||||
|
6/25/2014 |
|
Deeds |
$73,000 |
LOWELL GENE L REV TRUST |
JEFFERIES RICHARD G & CYNTHIA L |
|||||
|
3/15/2012 |
|
Hmstd Off & |
$0 |
LOWELL GENE L TRS LOWELL GENE L REV TRUST |
GLOWELL PROPERTIES LLC |
|||||
|
6/28/2005 |
|
Deeds |
$0 |
LOWELL GENE L |
LOWELL GENE L TRS LOWELL GENE L REV TRUST |
|||||
| Last Mailed Notice of Value (N.O.V.) Information/History | ||||||||
|---|---|---|---|---|---|---|---|---|
| Year | Date | Market Value | Taxable Market Value | Gross Assessed | Exemption | Net Assessed | ||
|
2026 |
02/23/2026 |
150,000 |
117,162 |
12,887 |
0 |
12,887 |
||
|
2025 |
02/14/2025 |
145,500 |
111,583 |
12,273 |
0 |
12,273 |
||
|
2024 |
02/13/2024 |
139,500 |
106,270 |
11,689 |
0 |
11,689 |
||
|
2023 |
02/14/2023 |
129,000 |
101,210 |
11,133 |
0 |
11,133 |
||
|
2022 |
03/15/2022 |
109,000 |
96,391 |
10,601 |
0 |
10,601 |
||
| Property Building Permit History | |||||||||||
|---|---|---|---|---|---|---|---|---|---|---|---|
| Issued | Permit # | Provided by | Bldg # | Description | Est Construction Cost | Status | |||||
| No Building Permit records returned. | |||||||||||
| Click button on building number to access detailed information: | ||||||
|---|---|---|---|---|---|---|
| Bldg # | Vacant/Improved Land | Bldg Description | Year Built | SqFt | # Stories | |
|
1 |
Improved |
Ranch 1 Story |
1946 |
750 |
1 Stories |
|