|
|
|
| Larry Stein Oklahoma County Assessor (405) 713-1200 - Public Access System |
|
|
|
|
|
|
| Real Property Display - Screen Produced 3/24/2026 5:12:47 AM | ||||
|---|---|---|---|---|
| Account: R089672000 | Type: Residential | Location: |
2512 NW 42ND ST |
|
| Building Name/Occupant: |
|
OKLAHOMA CITY |
||
| Owner Name 1: | GRUNDAHL KIELY |
Parcel PIN#: |
2671-08-967-2000 |
|
| Owner Name 2: | 1/4 section #: |
2671 |
||
| Owner Name 3: | Parent Acct: |
|
||
| Billing Address: | 2512 NW 42ND ST | Tax District: |
|
|
| City, State, Zip | OKLAHOMA CITY, OK 73112-3734 | School System: |
Oklahoma City #89 |
|
|
Country: (If noted) |
Land Size: |
0.9449 Acres |
||
|
Land Value: 85,613 |
|
|||
|
Sect 18-T12N-R3W Qtr SW |
BROOKLYN ADDITION
Block
007
Lot
000
|
|||
| Full Legal Description: BROOKLYN ADDITION 007 000 W120FT OF E240FT |
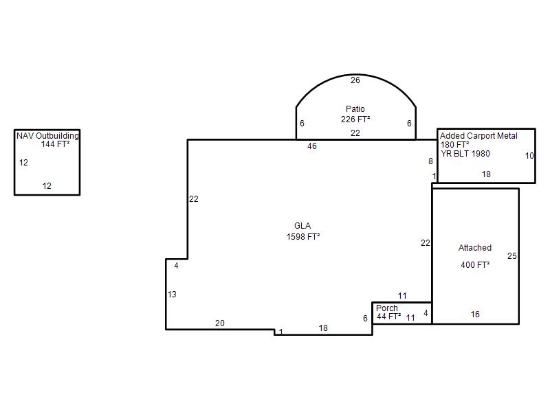
| Photo & Sketch (if available) | Comp Sales (ordered by relevancy) |
|
||||||||||||||||||
|
||||||||||||||||||||
| Value History (*The County Treasurer 405-713-1300 posts & collects actual tax amounts. Contact information HERE) | |||||||||||||
|---|---|---|---|---|---|---|---|---|---|---|---|---|---|
| Year | Market Value | Taxable Mkt Value | Gross Assessed | Exemption | Net Assessed | Millage | Est. Tax | Tax Savings | |||||
|
2025 |
216,000 |
149,426 |
16,436 |
1,000 |
15,436 |
122.90 |
$1,897 |
$1,023 |
|||||
|
2024 |
215,000 |
145,074 |
15,957 |
1,000 |
14,957 |
123.89 |
$1,853 |
$1,077 |
|||||
|
2023 |
196,000 |
140,849 |
15,493 |
1,000 |
14,493 |
122.82 |
$1,780 |
$868 |
|||||
|
2022 |
162,500 |
136,747 |
15,041 |
1,000 |
14,041 |
117.63 |
$1,652 |
$451 |
|||||
|
2021 |
145,500 |
132,765 |
14,603 |
1,000 |
13,603 |
117.70 |
$1,601 |
$283 |
|||||
| Property Account Status/Adjustments/Exemptions | ||
|---|---|---|
| Account # | Exemption Description | Amount |
|
R089672000 |
3% Cap Homestead |
0 |
|
R089672000 |
Homestead |
1,000 |
| Property Deed Transaction History (Recorded in the County Clerk's Office) | ||||||||||
|---|---|---|---|---|---|---|---|---|---|---|
| Date | Type | Book | Page | Price | Grantor | Grantee | ||||
|
11/17/2008 |
|
Deeds |
$110,000 |
FRIEDMAN HARRY SCOTT |
FRIEDMAN HARRY SCOTT |
|||||
|
11/17/2008 |
|
Deeds |
$0 |
FRIEDMAN HARRY SCOTT |
GRUNDAHL KIELY |
|||||
|
10/26/1998 |
|
Historical |
$61,000 |
BOURASSA MILDRED |
FRIEDMAN HARRY SCOTT |
|||||
|
6/29/1998 |
|
Historical |
$0 |
MARSHALL INA E |
BOURASSA MILDRED |
|||||
|
9/29/1992 |
|
Historical |
$0 |
MARSHALL INA ELIZABETH |
MARSHALL INA E |
|||||
| Last Mailed Notice of Value (N.O.V.) Information/History | ||||||||
|---|---|---|---|---|---|---|---|---|
| Year | Date | Market Value | Taxable Market Value | Gross Assessed | Exemption | Net Assessed | ||
|
2026 |
02/23/2026 |
229,500 |
153,908 |
16,929 |
1,000 |
15,929 |
||
|
2025 |
02/14/2025 |
216,000 |
149,426 |
16,436 |
1,000 |
15,436 |
||
|
2024 |
02/13/2024 |
215,000 |
145,074 |
15,957 |
1,000 |
14,957 |
||
|
2023 |
02/14/2023 |
196,000 |
140,849 |
15,493 |
1,000 |
14,493 |
||
|
2022 |
03/15/2022 |
162,500 |
136,747 |
15,041 |
1,000 |
14,041 |
||
| Property Building Permit History | ||||||
|---|---|---|---|---|---|---|
| Issued | Permit # | Provided by | Bldg # | Description | Est Construction Cost | Status |
|
8/7/2009 |
10386505 |
OKLAHOMA CITY |
1 |
Storage Buil |
1,700 |
Inactive |
| Click button on building number to access detailed information: | ||||||
|---|---|---|---|---|---|---|
| Bldg # | Vacant/Improved Land | Bldg Description | Year Built | SqFt | # Stories | |
|
1 |
Improved |
Ranch 1 Story |
1950 |
1,598 |
1 Stories |
|