|
|
|
| Larry Stein Oklahoma County Assessor (405) 713-1200 - Public Access System |
|
|
|
|
|
|
| Real Property Display - Screen Produced 3/22/2026 1:08:16 PM | ||||
|---|---|---|---|---|
| Account: R059750410 | Type: Residential | Location: |
4416 N MILLER AVE |
|
| Building Name/Occupant: |
|
OKLAHOMA CITY |
||
| Owner Name 1: | SOWELL BRIANA JEAN |
Parcel PIN#: |
2672-05-975-0410 |
|
| Owner Name 2: | 1/4 section #: |
2672 |
||
| Owner Name 3: | Parent Acct: |
|
||
| Billing Address: | 4416 N MILLER AVE | Tax District: |
|
|
| City, State, Zip | OKLAHOMA CITY, OK 73112 | School System: |
Oklahoma City #89 |
|
|
Country: (If noted) |
Land Size: |
0.1814 Acres |
||
|
Land Value: 38,710 |
|
|||
|
Sect 18-T12N-R3W Qtr NW |
MAYFAIR HEIGHTS BLKS 1 THRU 29
Block
003
Lot
003
|
|||
| Full Legal Description: MAYFAIR HEIGHTS BLKS 1 THRU 29 003 003 |
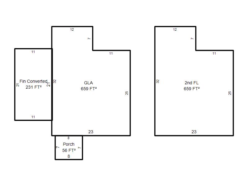
| Photo & Sketch (if available) | Comp Sales (ordered by relevancy) |
|
||||||||||||||||||
|
||||||||||||||||||||
| Value History (*The County Treasurer 405-713-1300 posts & collects actual tax amounts. Contact information HERE) | |||||||||||||
|---|---|---|---|---|---|---|---|---|---|---|---|---|---|
| Year | Market Value | Taxable Mkt Value | Gross Assessed | Exemption | Net Assessed | Millage | Est. Tax | Tax Savings | |||||
|
2025 |
253,000 |
195,638 |
21,519 |
0 |
21,519 |
122.90 |
$2,645 |
$775 |
|||||
|
2024 |
250,500 |
186,322 |
20,494 |
0 |
20,494 |
123.89 |
$2,539 |
$875 |
|||||
|
2023 |
243,500 |
177,450 |
19,519 |
0 |
19,519 |
122.82 |
$2,397 |
$892 |
|||||
|
2022 |
169,000 |
169,000 |
18,590 |
0 |
18,590 |
117.63 |
$2,187 |
$0 |
|||||
|
2021 |
198,000 |
176,537 |
19,418 |
0 |
19,418 |
117.70 |
$2,286 |
$278 |
|||||
| Property Account Status/Adjustments/Exemptions | ||
|---|---|---|
| Account # | Exemption Description | Amount |
|
R059750410 |
5% Capped Account |
0 |
| Property Deed Transaction History (Recorded in the County Clerk's Office) | ||||||||||
|---|---|---|---|---|---|---|---|---|---|---|
| Date | Type | Book | Page | Price | Grantor | Grantee | ||||
|
3/5/2021 |
|
Deeds |
$165,000 |
ARMSTRONG KELLY LYNN |
SOWELL BRIANA JEAN |
|||||
|
4/20/2015 |
|
Deeds |
$143,000 |
LINZ AMANDA |
ARMSTRONG KELLY LYNN |
|||||
|
11/24/2010 |
|
Hmstd Off & |
$0 |
HARPER RICHARD A & AMANDA |
LINZ AMANDA |
|||||
|
6/4/2009 |
|
Deeds |
$134,000 |
JOLLIFF DARREN L |
HARPER RICHARD A & AMANDA |
|||||
|
11/7/2003 |
|
Deeds |
$55,000 |
OZAN CHARLES A & ASHLEY D |
JOLLIFF DARREN L |
|||||
| Last Mailed Notice of Value (N.O.V.) Information/History | ||||||||
|---|---|---|---|---|---|---|---|---|
| Year | Date | Market Value | Taxable Market Value | Gross Assessed | Exemption | Net Assessed | ||
|
2026 |
02/23/2026 |
254,000 |
205,419 |
22,596 |
0 |
22,596 |
||
|
2025 |
02/14/2025 |
253,000 |
195,638 |
21,519 |
0 |
21,519 |
||
|
2024 |
02/13/2024 |
250,500 |
186,322 |
20,494 |
0 |
20,494 |
||
|
2023 |
02/14/2023 |
243,500 |
177,450 |
19,519 |
0 |
19,519 |
||
|
2021 |
03/19/2021 |
198,000 |
176,537 |
19,419 |
0 |
19,419 |
||
| Property Building Permit History | ||||||
|---|---|---|---|---|---|---|
| Issued | Permit # | Provided by | Bldg # | Description | Est Construction Cost | Status |
|
6/17/2004 |
10293537 |
OKLAHOMA CITY |
1 |
Remodeled |
1,500 |
Inactive |
|
1/1/2003 |
10193036 |
OKLAHOMA CITY |
1 |
Under Constr |
2,003 |
Inactive |
| Click button on building number to access detailed information: | ||||||
|---|---|---|---|---|---|---|
| Bldg # | Vacant/Improved Land | Bldg Description | Year Built | SqFt | # Stories | |
|
1 |
Improved |
2 Story |
1947 |
1,318 |
2 Stories |
|