|
|
|
| Larry Stein Oklahoma County Assessor (405) 713-1200 - Public Access System |
|
|
|
|
|
|
| Real Property Display - Screen Produced 3/22/2026 1:14:00 PM | ||||
|---|---|---|---|---|
| Account: R059750710 | Type: Residential | Location: |
2712 NW 45TH ST |
|
| Building Name/Occupant: |
|
OKLAHOMA CITY |
||
| Owner Name 1: | HENDERSON LAUREN TAYLOR |
Parcel PIN#: |
2672-05-975-0710 |
|
| Owner Name 2: | 1/4 section #: |
2672 |
||
| Owner Name 3: | Parent Acct: |
|
||
| Billing Address: | 2712 NW 45TH ST | Tax District: |
|
|
| City, State, Zip | OKLAHOMA CITY, OK 73112 | School System: |
Oklahoma City #89 |
|
|
Country: (If noted) |
Land Size: |
0.1845 Acres |
||
|
Land Value: 39,381 |
|
|||
|
Sect 18-T12N-R3W Qtr NW |
MAYFAIR HEIGHTS BLKS 1 THRU 29
Block
005
Lot
004
|
|||
| Full Legal Description: MAYFAIR HEIGHTS BLKS 1 THRU 29 005 004 |
| Photo & Sketch (if available) | Comp Sales (ordered by relevancy) |
|
||||||||||||||||||
|
||||||||||||||||||||
| Value History (*The County Treasurer 405-713-1300 posts & collects actual tax amounts. Contact information HERE) | |||||||||||||
|---|---|---|---|---|---|---|---|---|---|---|---|---|---|
| Year | Market Value | Taxable Mkt Value | Gross Assessed | Exemption | Net Assessed | Millage | Est. Tax | Tax Savings | |||||
|
2025 |
274,000 |
274,000 |
30,140 |
0 |
30,140 |
122.90 |
$3,704 |
$0 |
|||||
|
2024 |
271,000 |
271,000 |
29,810 |
0 |
29,810 |
123.89 |
$3,693 |
$0 |
|||||
|
2023 |
263,500 |
263,500 |
28,985 |
0 |
28,985 |
122.82 |
$3,560 |
$0 |
|||||
|
2022 |
227,000 |
206,635 |
22,728 |
0 |
22,728 |
117.63 |
$2,674 |
$264 |
|||||
|
2021 |
215,500 |
196,796 |
21,646 |
0 |
21,646 |
117.70 |
$2,548 |
$242 |
|||||
| Property Account Status/Adjustments/Exemptions | ||
|---|---|---|
| Account # | Exemption Description | Amount |
|
R059750710 |
5% Capped Account |
0 |
| Property Deed Transaction History (Recorded in the County Clerk's Office) | ||||||||||
|---|---|---|---|---|---|---|---|---|---|---|
| Date | Type | Book | Page | Price | Grantor | Grantee | ||||
|
9/16/2022 |
|
Deeds |
$275,000 |
COOPER ERIN L |
HENDERSON LAUREN TAYLOR |
|||||
|
7/14/2008 |
|
Deeds |
$181,000 |
VESTA KIMI SUE & CHAD E |
COOPER ERIN L |
|||||
|
12/9/2002 |
|
Deeds |
$0 |
BOEDEKER KIMI SUE |
VESTA KIMI SUE & CHAD E |
|||||
|
6/25/2001 |
|
Deeds |
$105,000 |
CRUM EDWARD A & JENNIFER L |
BOEDEKER KIMI SUE |
|||||
|
4/17/1998 |
|
Historical |
$89,000 |
CORNELL PAUL & TABITHA |
CRUM EDWARD A & JENNIFER L |
|||||
| Last Mailed Notice of Value (N.O.V.) Information/History | ||||||||
|---|---|---|---|---|---|---|---|---|
| Year | Date | Market Value | Taxable Market Value | Gross Assessed | Exemption | Net Assessed | ||
|
2026 |
02/23/2026 |
275,500 |
275,500 |
30,305 |
0 |
30,305 |
||
|
2025 |
02/14/2025 |
274,000 |
274,000 |
30,140 |
0 |
30,140 |
||
|
2024 |
02/13/2024 |
271,000 |
271,000 |
29,810 |
0 |
29,810 |
||
|
2023 |
02/14/2023 |
263,500 |
263,500 |
28,985 |
0 |
28,985 |
||
|
2022 |
03/15/2022 |
227,000 |
206,635 |
22,728 |
0 |
22,728 |
||
| Property Building Permit History | |||||||||||
|---|---|---|---|---|---|---|---|---|---|---|---|
| Issued | Permit # | Provided by | Bldg # | Description | Est Construction Cost | Status | |||||
| No Building Permit records returned. | |||||||||||
| Click button on building number to access detailed information: | ||||||
|---|---|---|---|---|---|---|
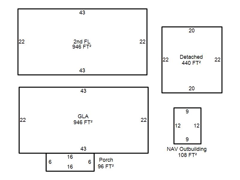
| Bldg # | Vacant/Improved Land | Bldg Description | Year Built | SqFt | # Stories | |
|
1 |
Improved |
2 Story |
1947 |
1,892 |
2 Stories |
|