|
|
|
| Larry Stein Oklahoma County Assessor (405) 713-1200 - Public Access System |
|
|
|
|
|
|
| Real Property Display - Screen Produced 3/24/2026 8:01:56 AM | ||||
|---|---|---|---|---|
| Account: R059750860 | Type: Residential | Location: |
2712 NW 46TH ST |
|
| Building Name/Occupant: |
|
OKLAHOMA CITY |
||
| Owner Name 1: | NELSON AMBER |
Parcel PIN#: |
2672-05-975-0860 |
|
| Owner Name 2: | BROWN JESSICA | 1/4 section #: |
2672 |
|
| Owner Name 3: | Parent Acct: |
|
||
| Billing Address: | 2712 NW 46TH ST | Tax District: |
|
|
| City, State, Zip | OKLAHOMA CITY, OK 73112-8224 | School System: |
Oklahoma City #89 |
|
|
Country: (If noted) |
Land Size: |
0.1834 Acres |
||
|
Land Value: 39,156 |
|
|||
|
Sect 18-T12N-R3W Qtr NW |
MAYFAIR HEIGHTS BLKS 1 THRU 29
Block
006
Lot
004
|
|||
| Full Legal Description: MAYFAIR HEIGHTS BLKS 1 THRU 29 006 004 |
| Photo & Sketch (if available) | Comp Sales (ordered by relevancy) |
|
||||||||||||||||||
|
||||||||||||||||||||
| Value History (*The County Treasurer 405-713-1300 posts & collects actual tax amounts. Contact information HERE) | |||||||||||||
|---|---|---|---|---|---|---|---|---|---|---|---|---|---|
| Year | Market Value | Taxable Mkt Value | Gross Assessed | Exemption | Net Assessed | Millage | Est. Tax | Tax Savings | |||||
|
2025 |
310,500 |
310,500 |
34,155 |
1,000 |
33,155 |
122.90 |
$4,075 |
$123 |
|||||
|
2024 |
307,500 |
307,500 |
33,825 |
1,000 |
32,825 |
123.89 |
$4,067 |
$124 |
|||||
|
2023 |
296,500 |
266,770 |
29,344 |
1,000 |
28,344 |
122.82 |
$3,481 |
$524 |
|||||
|
2022 |
259,000 |
259,000 |
28,490 |
1,000 |
27,490 |
117.63 |
$3,234 |
$118 |
|||||
|
2021 |
257,000 |
257,000 |
28,270 |
1,000 |
27,270 |
117.70 |
$3,210 |
$118 |
|||||
| Property Account Status/Adjustments/Exemptions | ||
|---|---|---|
| Account # | Exemption Description | Amount |
|
R059750860 |
3% Cap Homestead |
0 |
|
R059750860 |
Homestead |
1,000 |
| Property Deed Transaction History (Recorded in the County Clerk's Office) | ||||||||||
|---|---|---|---|---|---|---|---|---|---|---|
| Date | Type | Book | Page | Price | Grantor | Grantee | ||||
|
5/24/2023 |
|
Deeds |
$330,000 |
KNUTSON ALMA M |
NELSON AMBER |
|||||
|
3/12/2020 |
|
Deeds |
$260,000 |
SERIES G OF CTOP LLC |
KNUTSON ALMA M |
|||||
|
8/30/2019 |
|
Deeds |
$107,000 |
S & L SOLUTIONS LLC |
SERIES G OF CTOP LLC |
|||||
|
5/31/2019 |
|
Deeds |
$64,000 |
COLE KIMBERLY K PERS REP |
S & L SOLUTIONS LLC |
|||||
|
5/29/2019 |
|
Hmstd Off & |
$0 |
HOPKINS MANSELL D & LAURA JEANNE |
COLE KIMBERLY K PERS REP |
|||||
| Last Mailed Notice of Value (N.O.V.) Information/History | ||||||||
|---|---|---|---|---|---|---|---|---|
| Year | Date | Market Value | Taxable Market Value | Gross Assessed | Exemption | Net Assessed | ||
|
2025 |
02/14/2025 |
310,500 |
310,500 |
34,155 |
1,000 |
33,155 |
||
|
2024 |
02/13/2024 |
307,500 |
307,500 |
33,825 |
1,000 |
32,825 |
||
|
2023 |
02/14/2023 |
296,500 |
266,770 |
29,344 |
1,000 |
28,344 |
||
|
2022 |
03/15/2022 |
259,000 |
259,000 |
28,490 |
1,000 |
27,490 |
||
|
2021 |
03/19/2021 |
257,000 |
257,000 |
28,270 |
1,000 |
27,270 |
||
| Property Building Permit History | |||||||||||
|---|---|---|---|---|---|---|---|---|---|---|---|
| Issued | Permit # | Provided by | Bldg # | Description | Est Construction Cost | Status | |||||
| No Building Permit records returned. | |||||||||||
| Click button on building number to access detailed information: | ||||||
|---|---|---|---|---|---|---|
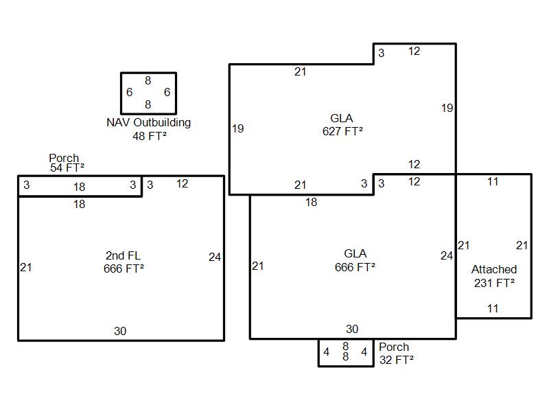
| Bldg # | Vacant/Improved Land | Bldg Description | Year Built | SqFt | # Stories | |
|
1 |
Improved |
1½ Story Fin |
1947 |
1,959 |
1.5 Stories |
|