|
|
|
| Larry Stein Oklahoma County Assessor (405) 713-1200 - Public Access System |
|
|
|
|
|
|
| Real Property Display - Screen Produced 3/22/2026 1:07:14 PM | ||||
|---|---|---|---|---|
| Account: R059751970 | Type: Residential | Location: |
2809 NW 47TH ST |
|
| Building Name/Occupant: |
|
OKLAHOMA CITY |
||
| Owner Name 1: | OWEN PROPERTY INVESTMENTS LLC |
Parcel PIN#: |
2672-05-975-1970 |
|
| Owner Name 2: | 1/4 section #: |
2672 |
||
| Owner Name 3: | Parent Acct: |
|
||
| Billing Address: | 3415 TIMBERLAKE DR | Tax District: |
|
|
| City, State, Zip | STILLWATER , OK 74074 | School System: |
Oklahoma City #89 |
|
|
Country: (If noted) |
Land Size: |
0.2313 Acres |
||
|
Land Value: 49,368 |
|
|||
|
Sect 18-T12N-R3W Qtr NW |
MAYFAIR HEIGHTS BLKS 1 THRU 29
Block
013
Lot
000
|
|||
| Full Legal Description: MAYFAIR HEIGHTS BLKS 1 THRU 29 013 000 PT OF LOTS 6 7 & 8 BEG SW/C LOT 8 TH NLY178.46FT TO NE/C LOT 9 SELY88FT SELY111.18FT WLY75.52FT TO BEG |
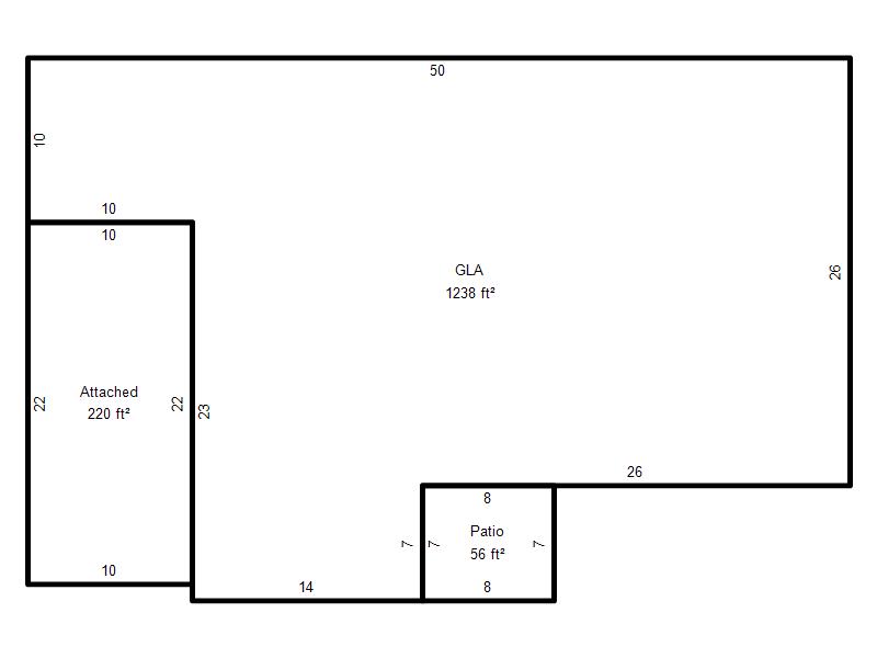
| Photo & Sketch (if available) | Comp Sales (ordered by relevancy) |
|
||||||||||||||||||
|
||||||||||||||||||||
| Value History (*The County Treasurer 405-713-1300 posts & collects actual tax amounts. Contact information HERE) | |||||||||||||
|---|---|---|---|---|---|---|---|---|---|---|---|---|---|
| Year | Market Value | Taxable Mkt Value | Gross Assessed | Exemption | Net Assessed | Millage | Est. Tax | Tax Savings | |||||
|
2025 |
193,000 |
164,091 |
18,049 |
0 |
18,049 |
122.90 |
$2,218 |
$391 |
|||||
|
2024 |
187,500 |
156,278 |
17,190 |
0 |
17,190 |
123.89 |
$2,130 |
$425 |
|||||
|
2023 |
183,500 |
148,837 |
16,371 |
0 |
16,371 |
122.82 |
$2,011 |
$468 |
|||||
|
2022 |
157,500 |
141,750 |
15,592 |
0 |
15,592 |
117.63 |
$1,834 |
$204 |
|||||
|
2021 |
135,000 |
135,000 |
14,850 |
0 |
14,850 |
117.70 |
$1,748 |
$0 |
|||||
| Property Account Status/Adjustments/Exemptions | ||
|---|---|---|
| Account # | Exemption Description | Amount |
|
R059751970 |
5% Capped Account |
0 |
| Property Deed Transaction History (Recorded in the County Clerk's Office) | ||||||||||
|---|---|---|---|---|---|---|---|---|---|---|
| Date | Type | Book | Page | Price | Grantor | Grantee | ||||
|
1/22/2020 |
|
Deeds |
$130,000 |
NORTON ANDREW |
OWEN PROPERTY INVESTMENTS LLC |
|||||
|
4/21/2014 |
|
Deeds |
$87,000 |
LSF8 MASTER PARTICIPATION TRUST |
NORTON ANDREW |
|||||
|
11/12/2013 |
|
Deeds |
$58,000 |
HEATH LORI |
LSF8 MASTER PARTICIPATION TRUST |
|||||
|
9/21/2007 |
|
Deeds |
$0 |
HEATH BILLY J |
HEATH LORI |
|||||
|
8/27/1999 |
|
Deeds |
$60,000 |
GRAHAM BRADFORD PIERCE |
HEATH BILLY J & LORI |
|||||
| Last Mailed Notice of Value (N.O.V.) Information/History | ||||||||
|---|---|---|---|---|---|---|---|---|
| Year | Date | Market Value | Taxable Market Value | Gross Assessed | Exemption | Net Assessed | ||
|
2026 |
02/23/2026 |
192,500 |
172,295 |
18,952 |
0 |
18,952 |
||
|
2025 |
02/14/2025 |
193,000 |
164,091 |
18,049 |
0 |
18,049 |
||
|
2024 |
02/13/2024 |
187,500 |
156,278 |
17,190 |
0 |
17,190 |
||
|
2023 |
02/14/2023 |
183,500 |
148,837 |
16,371 |
0 |
16,371 |
||
|
2022 |
03/15/2022 |
157,500 |
141,750 |
15,592 |
0 |
15,592 |
||
| Property Building Permit History | |||||||||||
|---|---|---|---|---|---|---|---|---|---|---|---|
| Issued | Permit # | Provided by | Bldg # | Description | Est Construction Cost | Status | |||||
| No Building Permit records returned. | |||||||||||
| Click button on building number to access detailed information: | ||||||
|---|---|---|---|---|---|---|
| Bldg # | Vacant/Improved Land | Bldg Description | Year Built | SqFt | # Stories | |
|
1 |
Improved |
Ranch 1 Story |
1950 |
1,238 |
1 Stories |
|