|
|
|
| Larry Stein Oklahoma County Assessor (405) 713-1200 - Public Access System |
|
|
|
|
|
|
| Real Property Display - Screen Produced 3/22/2026 1:08:16 PM | ||||
|---|---|---|---|---|
| Account: R059752240 | Type: Residential | Location: |
2816 NW 46TH ST |
|
| Building Name/Occupant: |
|
OKLAHOMA CITY |
||
| Owner Name 1: | KNIGHT JENNIFER ANNE |
Parcel PIN#: |
2672-05-975-2240 |
|
| Owner Name 2: | 1/4 section #: |
2672 |
||
| Owner Name 3: | Parent Acct: |
|
||
| Billing Address: | 2816 NW 46TH ST | Tax District: |
|
|
| City, State, Zip | OKLAHOMA CITY, OK 73112-8226 | School System: |
Oklahoma City #89 |
|
|
Country: (If noted) |
Land Size: |
0.1596 Acres |
||
|
Land Value: 34,075 |
|
|||
|
Sect 18-T12N-R3W Qtr NW |
MAYFAIR HEIGHTS BLKS 1 THRU 29
Block
015
Lot
005
|
|||
| Full Legal Description: MAYFAIR HEIGHTS BLKS 1 THRU 29 015 005 |
| Photo & Sketch (if available) | Comp Sales (ordered by relevancy) |
|
||||||||||||||||||
|
||||||||||||||||||||
| Value History (*The County Treasurer 405-713-1300 posts & collects actual tax amounts. Contact information HERE) | |||||||||||||
|---|---|---|---|---|---|---|---|---|---|---|---|---|---|
| Year | Market Value | Taxable Mkt Value | Gross Assessed | Exemption | Net Assessed | Millage | Est. Tax | Tax Savings | |||||
|
2025 |
149,500 |
100,846 |
11,092 |
1,000 |
10,092 |
122.90 |
$1,240 |
$781 |
|||||
|
2024 |
145,000 |
97,909 |
10,769 |
1,000 |
9,769 |
123.89 |
$1,210 |
$766 |
|||||
|
2023 |
140,000 |
95,058 |
10,455 |
1,000 |
9,455 |
122.82 |
$1,161 |
$730 |
|||||
|
2022 |
116,000 |
92,290 |
10,151 |
1,000 |
9,151 |
117.63 |
$1,077 |
$424 |
|||||
|
2021 |
107,500 |
89,602 |
9,856 |
1,000 |
8,856 |
117.70 |
$1,042 |
$349 |
|||||
| Property Account Status/Adjustments/Exemptions | ||
|---|---|---|
| Account # | Exemption Description | Amount |
|
R059752240 |
3% Cap Homestead |
0 |
|
R059752240 |
Homestead |
1,000 |
| Property Deed Transaction History (Recorded in the County Clerk's Office) | ||||||||||
|---|---|---|---|---|---|---|---|---|---|---|
| Date | Type | Book | Page | Price | Grantor | Grantee | ||||
|
2/9/2007 |
|
Deeds |
$80,000 |
METROPOLITAN PROPERTIES LLC |
KNIGHT JENNIFER ANNE |
|||||
|
10/8/2004 |
|
Other |
$0 |
THOMPSON JANA B |
METROPOLITAN PROPERTIES LLC |
|||||
|
7/12/2004 |
|
Other |
$0 |
SECRETARY OF HOUSING & URBAN DEV |
THOMPSON JANA B |
|||||
|
11/24/2003 |
|
Other |
$0 |
THOMAS MICHAEL L THOMAS NORMAN L & LEE ANN |
SECRETARY OF HOUSING & URBAN DEV |
|||||
|
7/23/2002 |
|
Deeds |
$76,000 |
C J INVESTMENTS |
THOMAS MICHAEL L THOMAS NORMAN L & LEE ANN |
|||||
| Last Mailed Notice of Value (N.O.V.) Information/History | ||||||||
|---|---|---|---|---|---|---|---|---|
| Year | Date | Market Value | Taxable Market Value | Gross Assessed | Exemption | Net Assessed | ||
|
2026 |
02/23/2026 |
152,500 |
103,871 |
11,425 |
1,000 |
10,425 |
||
|
2025 |
02/14/2025 |
149,500 |
100,846 |
11,092 |
1,000 |
10,092 |
||
|
2024 |
02/13/2024 |
145,000 |
97,909 |
10,769 |
1,000 |
9,769 |
||
|
2023 |
02/14/2023 |
140,000 |
95,058 |
10,455 |
1,000 |
9,455 |
||
|
2022 |
03/15/2022 |
116,000 |
92,290 |
10,151 |
1,000 |
9,151 |
||
| Property Building Permit History | |||||||||||
|---|---|---|---|---|---|---|---|---|---|---|---|
| Issued | Permit # | Provided by | Bldg # | Description | Est Construction Cost | Status | |||||
| No Building Permit records returned. | |||||||||||
| Click button on building number to access detailed information: | ||||||
|---|---|---|---|---|---|---|
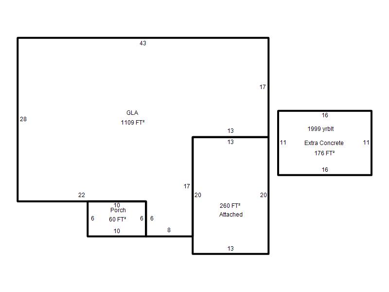
| Bldg # | Vacant/Improved Land | Bldg Description | Year Built | SqFt | # Stories | |
|
1 |
Improved |
Ranch 1 Story |
1948 |
1,109 |
1 Stories |
|