|
|
|
| Larry Stein Oklahoma County Assessor (405) 713-1200 - Public Access System |
|
|
|
|
|
|
| Real Property Display - Screen Produced 3/16/2026 1:10:58 PM | ||||
|---|---|---|---|---|
| Account: R053250050 | Type: Residential | Location: |
2108 NW 36TH ST |
|
| Building Name/Occupant: |
|
OKLAHOMA CITY |
||
| Owner Name 1: | BRODY JESSICA LEE |
Parcel PIN#: |
2673-05-325-0050 |
|
| Owner Name 2: | 1/4 section #: |
2673 |
||
| Owner Name 3: | Parent Acct: |
2673-05-325-0060 |
||
| Billing Address: | 2108 NW 36TH ST | Tax District: |
|
|
| City, State, Zip | OKLAHOMA CITY, OK 73112-7948 | School System: |
Oklahoma City #89 |
|
|
Country: (If noted) |
Land Size: |
0.2324 Acres |
||
|
Land Value: 23,794 |
|
|||
|
Sect 19-T12N-R3W Qtr NE |
WEST POINT AMD E2
Block
001
Lot
000
|
|||
| Full Legal Description: WEST POINT AMD E2 001 000 LOTS 5 & 6 & S123FT OF LOT 7 |
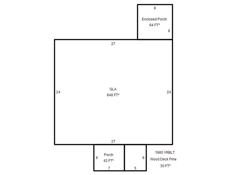
| Photo & Sketch (if available) | Comp Sales (ordered by relevancy) |
|
||||||||||||||||||
|
||||||||||||||||||||
| Value History (*The County Treasurer 405-713-1300 posts & collects actual tax amounts. Contact information HERE) | |||||||||||||
|---|---|---|---|---|---|---|---|---|---|---|---|---|---|
| Year | Market Value | Taxable Mkt Value | Gross Assessed | Exemption | Net Assessed | Millage | Est. Tax | Tax Savings | |||||
|
2025 |
95,000 |
61,910 |
6,809 |
0 |
6,809 |
122.90 |
$837 |
$447 |
|||||
|
2024 |
90,000 |
58,962 |
6,485 |
0 |
6,485 |
123.89 |
$804 |
$423 |
|||||
|
2023 |
83,000 |
56,155 |
6,176 |
0 |
6,176 |
122.82 |
$759 |
$363 |
|||||
|
2022 |
65,000 |
53,481 |
5,882 |
0 |
5,882 |
117.63 |
$692 |
$149 |
|||||
|
2021 |
58,000 |
50,935 |
5,602 |
0 |
5,602 |
117.70 |
$659 |
$91 |
|||||
| Property Account Status/Adjustments/Exemptions | ||||||
|---|---|---|---|---|---|---|
| Account # | Exemption Description | Amount | ||||
| No adjustment/exemption records returned. | ||||||
| Property Deed Transaction History (Recorded in the County Clerk's Office) | ||||||||||
|---|---|---|---|---|---|---|---|---|---|---|
| Date | Type | Book | Page | Price | Grantor | Grantee | ||||
|
6/2/2025 |
|
Deeds |
$50,000 |
SHIFFLET WALTER KYLE |
BRODY JESSICA LEE |
|||||
|
3/26/2012 |
|
Deeds |
$0 |
CRAIG JAMES THOMAS JR AKA TOM |
CRAIG TOM & VICKIE CO TRS CRAIG TOM & VICKIE REV FAMILY TRUS |
|||||
|
3/26/2012 |
|
Deeds |
$45,000 |
CRAIG TOM & VICKIE CO TRS CRAIG TOM & VICKIE REV |
SHIFFLET WALTER KYLE |
|||||
|
3/9/2011 |
|
Hmstd Off & |
$0 |
CRAIG JAMES T JR |
CRAIG TOM & VICKIE CO TRS CRAIG TOM & VICKIE REV FAMILY TRUS |
|||||
|
1/26/2009 |
|
Mult Parcel |
$56,000 |
CROSS JIMMIE R & SUSIE S TRS CROSS FAMILY REV TRUST |
CRAIG JAMES T JR |
|||||
| Last Mailed Notice of Value (N.O.V.) Information/History | ||||||||
|---|---|---|---|---|---|---|---|---|
| Year | Date | Market Value | Taxable Market Value | Gross Assessed | Exemption | Net Assessed | ||
|
2026 |
02/23/2026 |
97,000 |
97,000 |
10,670 |
0 |
10,670 |
||
|
2025 |
02/14/2025 |
95,000 |
61,910 |
6,809 |
0 |
6,809 |
||
|
2024 |
02/13/2024 |
90,000 |
58,962 |
6,485 |
0 |
6,485 |
||
|
2023 |
02/14/2023 |
83,000 |
56,155 |
6,176 |
0 |
6,176 |
||
|
2022 |
03/15/2022 |
65,000 |
53,481 |
5,882 |
0 |
5,882 |
||
| Property Building Permit History | |||||||||||
|---|---|---|---|---|---|---|---|---|---|---|---|
| Issued | Permit # | Provided by | Bldg # | Description | Est Construction Cost | Status | |||||
| No Building Permit records returned. | |||||||||||
| Click button on building number to access detailed information: | ||||||
|---|---|---|---|---|---|---|
| Bldg # | Vacant/Improved Land | Bldg Description | Year Built | SqFt | # Stories | |
|
1 |
Improved |
Ranch 1 Story |
1939 |
648 |
1 Stories |
|