|
|
|
| Larry Stein Oklahoma County Assessor (405) 713-1200 - Public Access System |
|
|
|
|
|
|
| Real Property Display - Screen Produced 3/16/2026 1:13:39 PM | ||||
|---|---|---|---|---|
| Account: R053250950 | Type: Residential | Location: |
2221 W EUBANKS ST |
|
| Building Name/Occupant: |
|
OKLAHOMA CITY |
||
| Owner Name 1: | ADOWEI FRANKLIN |
Parcel PIN#: |
2673-05-325-0950 |
|
| Owner Name 2: | MOSIER REBECCA DIXIE | 1/4 section #: |
2673 |
|
| Owner Name 3: | Parent Acct: |
|
||
| Billing Address: | 2221 W EUBANKS ST | Tax District: |
|
|
| City, State, Zip | OKLAHOMA CITY, OK 73112 | School System: |
Oklahoma City #89 |
|
|
Country: (If noted) |
UNITED STATES |
Land Size: |
0.1607 Acres |
|
|
Land Value: 16,450 |
|
|||
|
Sect 19-T12N-R3W Qtr NE |
WEST POINT AMD E2
Block
002
Lot
000
|
|||
| Full Legal Description: WEST POINT AMD E2 002 000 LOTS 39 & 40 |
| Photo & Sketch (if available) | Comp Sales (ordered by relevancy) |
|
||||||||||||||||||
|
||||||||||||||||||||
| Value History (*The County Treasurer 405-713-1300 posts & collects actual tax amounts. Contact information HERE) | |||||||||||||
|---|---|---|---|---|---|---|---|---|---|---|---|---|---|
| Year | Market Value | Taxable Mkt Value | Gross Assessed | Exemption | Net Assessed | Millage | Est. Tax | Tax Savings | |||||
|
2025 |
110,500 |
66,346 |
7,297 |
0 |
7,297 |
122.90 |
$897 |
$597 |
|||||
|
2024 |
105,500 |
63,187 |
6,949 |
0 |
6,949 |
123.89 |
$861 |
$577 |
|||||
|
2023 |
97,000 |
60,179 |
6,619 |
0 |
6,619 |
122.82 |
$813 |
$497 |
|||||
|
2022 |
76,000 |
57,314 |
6,303 |
0 |
6,303 |
117.63 |
$742 |
$242 |
|||||
|
2021 |
68,500 |
54,585 |
6,003 |
1,000 |
5,003 |
117.70 |
$589 |
$298 |
|||||
| Property Account Status/Adjustments/Exemptions | ||
|---|---|---|
| Account # | Exemption Description | Amount |
|
R053250950 |
5% Capped Account |
0 |
| Property Deed Transaction History (Recorded in the County Clerk's Office) | ||||||||||
|---|---|---|---|---|---|---|---|---|---|---|
| Date | Type | Book | Page | Price | Grantor | Grantee | ||||
|
10/3/2016 |
|
Hmstd Off & |
$0 |
MOISER RACHEL MOISER REBECCA DIXIE |
ADOWEI FRANKLIN |
|||||
|
3/30/2006 |
|
Deeds |
$45,000 |
MCORD LANCE & THELMA JOY |
MOISER RACHEL |
|||||
|
3/30/2006 |
|
Deeds |
$0 |
MOISER RACHEL |
MOISER RACHEL MOISER REBECCA DIXIE |
|||||
|
4/30/1999 |
|
Deeds |
$28,000 |
WILLAMEE PROPERTIES LLC |
MOISER RACHEL |
|||||
|
12/30/1998 |
|
Historical |
$19,000 |
MULHAUSEN JEREMY MICHAEL |
WILLAMEE PROPERTIES LLC |
|||||
| Last Mailed Notice of Value (N.O.V.) Information/History | ||||||||
|---|---|---|---|---|---|---|---|---|
| Year | Date | Market Value | Taxable Market Value | Gross Assessed | Exemption | Net Assessed | ||
|
2026 |
02/23/2026 |
112,000 |
69,663 |
7,662 |
0 |
7,662 |
||
|
2025 |
02/14/2025 |
110,500 |
66,346 |
7,297 |
0 |
7,297 |
||
|
2024 |
02/13/2024 |
105,500 |
63,187 |
6,949 |
0 |
6,949 |
||
|
2023 |
02/14/2023 |
97,000 |
60,179 |
6,619 |
0 |
6,619 |
||
|
2022 |
03/15/2022 |
76,000 |
56,222 |
6,183 |
1,000 |
5,183 |
||
| Property Building Permit History | |||||||||||
|---|---|---|---|---|---|---|---|---|---|---|---|
| Issued | Permit # | Provided by | Bldg # | Description | Est Construction Cost | Status | |||||
| No Building Permit records returned. | |||||||||||
| Click button on building number to access detailed information: | ||||||
|---|---|---|---|---|---|---|
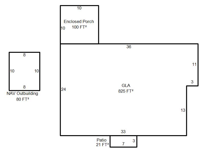
| Bldg # | Vacant/Improved Land | Bldg Description | Year Built | SqFt | # Stories | |
|
1 |
Improved |
Ranch 1 Story |
1939 |
825 |
1 Stories |
|