|
|
|
| Larry Stein Oklahoma County Assessor (405) 713-1200 - Public Access System |
|
|
|
|
|
|
| Real Property Display - Screen Produced 3/16/2026 1:13:37 PM | ||||
|---|---|---|---|---|
| Account: R053251025 | Type: Residential | Location: |
2209 W EUBANKS |
|
| Building Name/Occupant: |
|
OKLAHOMA CITY |
||
| Owner Name 1: | MITCHELL & SON LLC |
Parcel PIN#: |
2673-05-325-1025 |
|
| Owner Name 2: | C/O BDT PROPERTIES LLC | 1/4 section #: |
2673 |
|
| Owner Name 3: | Parent Acct: |
|
||
| Billing Address: | 20711 N COUNCIL RD | Tax District: |
|
|
| City, State, Zip | EDMOND, OK 73012 | School System: |
Oklahoma City #89 |
|
|
Country: (If noted) |
UNITED STATES |
Land Size: |
0.1607 Acres |
|
|
Land Value: 16,450 |
|
|||
|
Sect 19-T12N-R3W Qtr NE |
WEST POINT AMD E2
Block
002
Lot
000
|
|||
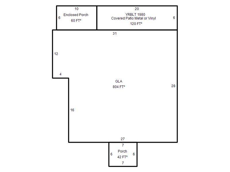
| Full Legal Description: WEST POINT AMD E2 002 000 LOTS 45 & 46 |
| Photo & Sketch (if available) | Comp Sales (ordered by relevancy) |
|
||||||||||||||||||
|
||||||||||||||||||||
| Value History (*The County Treasurer 405-713-1300 posts & collects actual tax amounts. Contact information HERE) | |||||||||||||
|---|---|---|---|---|---|---|---|---|---|---|---|---|---|
| Year | Market Value | Taxable Mkt Value | Gross Assessed | Exemption | Net Assessed | Millage | Est. Tax | Tax Savings | |||||
|
2025 |
96,000 |
59,632 |
6,559 |
0 |
6,559 |
122.90 |
$806 |
$492 |
|||||
|
2024 |
92,500 |
56,793 |
6,246 |
0 |
6,246 |
123.89 |
$774 |
$487 |
|||||
|
2023 |
87,500 |
54,089 |
5,949 |
0 |
5,949 |
122.82 |
$731 |
$451 |
|||||
|
2022 |
68,000 |
51,514 |
5,664 |
0 |
5,664 |
117.63 |
$667 |
$213 |
|||||
|
2021 |
55,500 |
49,061 |
5,395 |
0 |
5,395 |
117.70 |
$635 |
$83 |
|||||
| Property Account Status/Adjustments/Exemptions | ||
|---|---|---|
| Account # | Exemption Description | Amount |
|
R053251025 |
5% Capped Account |
0 |
| Property Deed Transaction History (Recorded in the County Clerk's Office) | ||||||||||
|---|---|---|---|---|---|---|---|---|---|---|
| Date | Type | Book | Page | Price | Grantor | Grantee | ||||
|
1/8/2019 |
|
Hmstd Off & |
$0 |
BDT PROPERTIES LLC |
MITCHELL & SON LLC |
|||||
|
6/25/2018 |
|
Deeds |
$43,000 |
WAZZAN PROPERTIES LLC |
BDT PROPERTIES LLC |
|||||
|
6/5/2018 |
|
Deeds |
$38,000 |
GRONOS WILLIAM P |
WAZZAN PROPERTIES LLC |
|||||
|
5/17/1993 |
|
Historical |
$11,000 |
WILSON THYRA LOU |
GRONOS WILLIAM P |
|||||
|
9/12/1990 |
|
Historical |
$0 |
ALLEN LEAH E |
WILSON THYRA LOU |
|||||
| Last Mailed Notice of Value (N.O.V.) Information/History | ||||||||
|---|---|---|---|---|---|---|---|---|
| Year | Date | Market Value | Taxable Market Value | Gross Assessed | Exemption | Net Assessed | ||
|
2026 |
02/23/2026 |
100,500 |
62,613 |
6,886 |
0 |
6,886 |
||
|
2025 |
02/14/2025 |
96,000 |
59,632 |
6,559 |
0 |
6,559 |
||
|
2024 |
02/13/2024 |
92,500 |
56,793 |
6,246 |
0 |
6,246 |
||
|
2023 |
02/14/2023 |
87,500 |
54,089 |
5,949 |
0 |
5,949 |
||
|
2022 |
03/15/2022 |
68,000 |
51,514 |
5,664 |
0 |
5,664 |
||
| Property Building Permit History | |||||||||||
|---|---|---|---|---|---|---|---|---|---|---|---|
| Issued | Permit # | Provided by | Bldg # | Description | Est Construction Cost | Status | |||||
| No Building Permit records returned. | |||||||||||
| Click button on building number to access detailed information: | ||||||
|---|---|---|---|---|---|---|
| Bldg # | Vacant/Improved Land | Bldg Description | Year Built | SqFt | # Stories | |
|
1 |
Improved |
Ranch 1 Story |
1938 |
804 |
1 Stories |
|