|
|
|
| Larry Stein Oklahoma County Assessor (405) 713-1200 - Public Access System |
|
|
|
|
|
|
| Real Property Display - Screen Produced 3/16/2026 1:12:12 PM | ||||
|---|---|---|---|---|
| Account: R053251275 | Type: Residential | Location: |
2228 W EUBANKS |
|
| Building Name/Occupant: |
|
OKLAHOMA CITY |
||
| Owner Name 1: | HOMECO LLC |
Parcel PIN#: |
2673-05-325-1275 |
|
| Owner Name 2: | 1/4 section #: |
2673 |
||
| Owner Name 3: | Parent Acct: |
|
||
| Billing Address: | 6608 N WESTERN AVE UNIT 232 | Tax District: |
|
|
| City, State, Zip | OKLAHOMA CITY, OK 73116-7326 | School System: |
Oklahoma City #89 |
|
|
Country: (If noted) |
Land Size: |
0.1607 Acres |
||
|
Land Value: 16,450 |
|
|||
|
Sect 19-T12N-R3W Qtr NE |
WEST POINT AMD E2
Block
003
Lot
000
|
|||
| Full Legal Description: WEST POINT AMD E2 003 000 LOTS 15 & 16 |
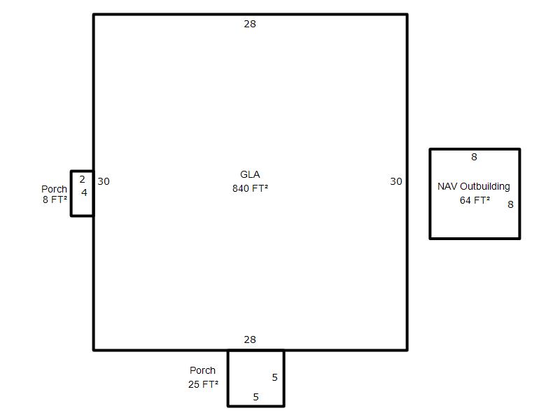
| Photo & Sketch (if available) | Comp Sales (ordered by relevancy) |
|
||||||||||||||||||
|
||||||||||||||||||||
| Value History (*The County Treasurer 405-713-1300 posts & collects actual tax amounts. Contact information HERE) | |||||||||||||
|---|---|---|---|---|---|---|---|---|---|---|---|---|---|
| Year | Market Value | Taxable Mkt Value | Gross Assessed | Exemption | Net Assessed | Millage | Est. Tax | Tax Savings | |||||
|
2025 |
110,500 |
71,055 |
7,815 |
0 |
7,815 |
122.90 |
$961 |
$533 |
|||||
|
2024 |
105,500 |
67,672 |
7,443 |
0 |
7,443 |
123.89 |
$922 |
$516 |
|||||
|
2023 |
97,500 |
64,450 |
7,088 |
0 |
7,088 |
122.82 |
$871 |
$447 |
|||||
|
2022 |
76,000 |
61,381 |
6,751 |
0 |
6,751 |
117.63 |
$794 |
$189 |
|||||
|
2021 |
68,500 |
58,459 |
6,430 |
0 |
6,430 |
117.70 |
$757 |
$130 |
|||||
| Property Account Status/Adjustments/Exemptions | ||
|---|---|---|
| Account # | Exemption Description | Amount |
|
R053251275 |
5% Capped Account |
0 |
| Property Deed Transaction History (Recorded in the County Clerk's Office) | ||||||||||
|---|---|---|---|---|---|---|---|---|---|---|
| Date | Type | Book | Page | Price | Grantor | Grantee | ||||
|
7/16/2013 |
|
Other |
$0 |
MCREYNOLDS BILLY |
HOMECO LLC |
|||||
|
8/24/2006 |
|
Deeds |
$43,500 |
HOMECO LLC |
MCREYNOLDS BILLY |
|||||
|
2/15/2002 |
|
Deeds |
$26,000 |
FORD-HAMMOCK WYNDE LEIGH |
HOMECO LLC |
|||||
|
12/11/1998 |
|
Historical |
$0 |
FORD WILMA G |
FORD-HAMMOCK WYNDE LEIGH |
|||||
|
5/23/1988 |
|
Historical |
$0 |
FORD WENDY LEIGH |
FORD WILMA G |
|||||
| Last Mailed Notice of Value (N.O.V.) Information/History | ||||||||
|---|---|---|---|---|---|---|---|---|
| Year | Date | Market Value | Taxable Market Value | Gross Assessed | Exemption | Net Assessed | ||
|
2026 |
02/23/2026 |
113,000 |
74,607 |
8,206 |
0 |
8,206 |
||
|
2025 |
02/14/2025 |
110,500 |
71,055 |
7,815 |
0 |
7,815 |
||
|
2024 |
02/13/2024 |
105,500 |
67,672 |
7,443 |
0 |
7,443 |
||
|
2023 |
02/14/2023 |
97,500 |
64,450 |
7,088 |
0 |
7,088 |
||
|
2022 |
03/15/2022 |
76,000 |
61,381 |
6,751 |
0 |
6,751 |
||
| Property Building Permit History | ||||||
|---|---|---|---|---|---|---|
| Issued | Permit # | Provided by | Bldg # | Description | Est Construction Cost | Status |
|
10/1/1998 |
10192253 |
OKLAHOMA CITY |
1 |
Demolish |
150 |
Inactive |
| Click button on building number to access detailed information: | ||||||
|---|---|---|---|---|---|---|
| Bldg # | Vacant/Improved Land | Bldg Description | Year Built | SqFt | # Stories | |
|
1 |
Improved |
Ranch 1 Story |
1937 |
840 |
1 Stories |
|