|
|
|
| Larry Stein Oklahoma County Assessor (405) 713-1200 - Public Access System |
|
|
|
|
|
|
| Real Property Display - Screen Produced 3/16/2026 1:09:55 PM | ||||
|---|---|---|---|---|
| Account: R053251375 | Type: Residential | Location: |
2242 W EUBANKS |
|
| Building Name/Occupant: |
|
OKLAHOMA CITY |
||
| Owner Name 1: | ROSH COLLECTIVE LLC |
Parcel PIN#: |
2673-05-325-1375 |
|
| Owner Name 2: | 1/4 section #: |
2673 |
||
| Owner Name 3: | Parent Acct: |
|
||
| Billing Address: | 10508 CONCORD DR | Tax District: |
|
|
| City, State, Zip | OKLAHOMA CITY, OK 73151-2000 | School System: |
Oklahoma City #89 |
|
|
Country: (If noted) |
Land Size: |
0.1607 Acres |
||
|
Land Value: 16,450 |
|
|||
|
Sect 19-T12N-R3W Qtr NE |
WEST POINT AMD E2
Block
003
Lot
000
|
|||
| Full Legal Description: WEST POINT AMD E2 003 000 LOTS 22 & 23 |
| Photo & Sketch (if available) | Comp Sales (ordered by relevancy) |
|
||||||||||||||||||
|
||||||||||||||||||||
| Value History (*The County Treasurer 405-713-1300 posts & collects actual tax amounts. Contact information HERE) | |||||||||||||
|---|---|---|---|---|---|---|---|---|---|---|---|---|---|
| Year | Market Value | Taxable Mkt Value | Gross Assessed | Exemption | Net Assessed | Millage | Est. Tax | Tax Savings | |||||
|
2025 |
144,500 |
144,500 |
15,895 |
0 |
15,895 |
122.90 |
$1,953 |
$0 |
|||||
|
2024 |
139,500 |
139,500 |
15,345 |
0 |
15,345 |
123.89 |
$1,901 |
$0 |
|||||
|
2023 |
121,500 |
86,146 |
9,475 |
0 |
9,475 |
122.82 |
$1,164 |
$478 |
|||||
|
2022 |
98,500 |
82,044 |
9,023 |
0 |
9,023 |
117.63 |
$1,062 |
$213 |
|||||
|
2021 |
91,000 |
78,138 |
8,594 |
0 |
8,594 |
117.70 |
$1,012 |
$167 |
|||||
| Property Account Status/Adjustments/Exemptions | ||
|---|---|---|
| Account # | Exemption Description | Amount |
|
R053251375 |
5% Capped Account |
0 |
| Property Deed Transaction History (Recorded in the County Clerk's Office) | ||||||||||
|---|---|---|---|---|---|---|---|---|---|---|
| Date | Type | Book | Page | Price | Grantor | Grantee | ||||
|
12/28/2023 |
|
Hmstd Off & |
$0 |
CASCADE HOLDINGS LLC |
ROSH COLLECTIVE LLC |
|||||
|
10/30/2023 |
|
Deeds |
$85,000 |
WE BUY HOUSES LLC |
CASCADE HOLDINGS LLC |
|||||
|
3/28/2023 |
|
Deeds |
$65,000 |
CONWAY PHILLIP R |
WE BUY HOUSES LLC |
|||||
|
4/25/2006 |
|
Deeds |
$51,000 |
HENDERSON JIMMIE |
CONWAY PHILLIP R |
|||||
|
10/28/2005 |
|
Deeds |
$33,500 |
BANK OF NEW YORK TRS |
HENDERSON JIMMIE |
|||||
| Last Mailed Notice of Value (N.O.V.) Information/History | ||||||||
|---|---|---|---|---|---|---|---|---|
| Year | Date | Market Value | Taxable Market Value | Gross Assessed | Exemption | Net Assessed | ||
|
2025 |
02/14/2025 |
144,500 |
144,500 |
15,895 |
0 |
15,895 |
||
|
2024 |
03/01/2024 |
139,500 |
139,500 |
15,345 |
0 |
15,345 |
||
|
2023 |
02/14/2023 |
121,500 |
86,146 |
9,475 |
0 |
9,475 |
||
|
2022 |
03/15/2022 |
98,500 |
82,044 |
9,023 |
0 |
9,023 |
||
|
2021 |
03/19/2021 |
91,000 |
78,138 |
8,595 |
0 |
8,595 |
||
| Property Building Permit History | |||||||||||
|---|---|---|---|---|---|---|---|---|---|---|---|
| Issued | Permit # | Provided by | Bldg # | Description | Est Construction Cost | Status | |||||
| No Building Permit records returned. | |||||||||||
| Click button on building number to access detailed information: | ||||||
|---|---|---|---|---|---|---|
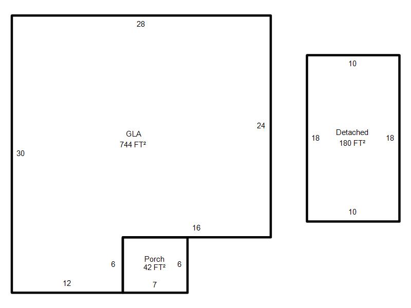
| Bldg # | Vacant/Improved Land | Bldg Description | Year Built | SqFt | # Stories | |
|
1 |
Improved |
Ranch 1 Story |
1939 |
744 |
1 Stories |
|