|
|
|
| Larry Stein Oklahoma County Assessor (405) 713-1200 - Public Access System |
|
|
|
|
|
|
| Real Property Display - Screen Produced 3/22/2026 4:19:53 AM | ||||
|---|---|---|---|---|
| Account: R053252000 | Type: Residential | Location: |
2141 NW 35TH ST |
|
| Building Name/Occupant: |
|
OKLAHOMA CITY |
||
| Owner Name 1: | LOPEZ PENA ADRIAN JUNIOR |
Parcel PIN#: |
2673-05-325-2000 |
|
| Owner Name 2: | LOPEZ PENA MARICELA | 1/4 section #: |
2673 |
|
| Owner Name 3: | Parent Acct: |
|
||
| Billing Address: | 2141 NW 35TH ST | Tax District: |
|
|
| City, State, Zip | OKLAHOMA CITY, OK 73112-7943 | School System: |
Oklahoma City #89 |
|
|
Country: (If noted) |
Land Size: |
0.1607 Acres |
||
|
Land Value: 16,450 |
|
|||
|
Sect 19-T12N-R3W Qtr NE |
WEST POINT AMD E2
Block
004
Lot
000
|
|||
| Full Legal Description: WEST POINT AMD E2 004 000 LOTS 27 & 28 |
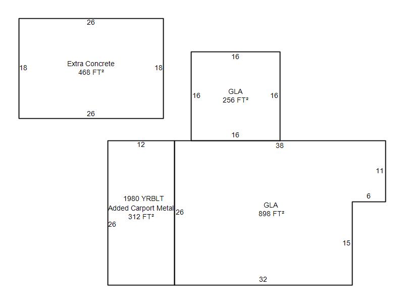
| Photo & Sketch (if available) | Comp Sales (ordered by relevancy) |
|
||||||||||||||||||
|
||||||||||||||||||||
| Value History (*The County Treasurer 405-713-1300 posts & collects actual tax amounts. Contact information HERE) | |||||||||||||
|---|---|---|---|---|---|---|---|---|---|---|---|---|---|
| Year | Market Value | Taxable Mkt Value | Gross Assessed | Exemption | Net Assessed | Millage | Est. Tax | Tax Savings | |||||
|
2025 |
140,000 |
89,013 |
9,791 |
0 |
9,791 |
122.90 |
$1,203 |
$689 |
|||||
|
2024 |
134,000 |
84,775 |
9,324 |
1,000 |
8,324 |
123.89 |
$1,031 |
$795 |
|||||
|
2023 |
125,000 |
82,306 |
9,052 |
1,000 |
8,052 |
122.82 |
$989 |
$700 |
|||||
|
2022 |
99,000 |
79,909 |
8,788 |
1,000 |
7,788 |
117.63 |
$916 |
$365 |
|||||
|
2021 |
91,000 |
77,582 |
8,533 |
1,000 |
7,533 |
117.70 |
$887 |
$291 |
|||||
| Property Account Status/Adjustments/Exemptions | ||
|---|---|---|
| Account # | Exemption Description | Amount |
|
R053252000 |
5% Capped Account |
0 |
| Property Deed Transaction History (Recorded in the County Clerk's Office) | ||||||||||
|---|---|---|---|---|---|---|---|---|---|---|
| Date | Type | Book | Page | Price | Grantor | Grantee | ||||
|
2/27/2024 |
|
Hmstd Off & |
$0 |
BUSTILLOS MARICELA LOPEZ |
LOPEZ PENA ADRIAN JUNIOR |
|||||
|
12/6/2011 |
|
Hmstd Off & |
$0 |
BILLINGSLEY CHRISTOPHER |
BUSTILLOS MARICELA LOPEZ |
|||||
|
7/18/2011 |
|
Deeds |
$13,000 |
LANDEROS MODESTO LOPEZ |
BILLINGSLEY CHRISTOPHER |
|||||
|
1/27/2011 |
|
Hmstd Off & |
$0 |
BILLINGSLEY CHRISTOPHER |
LANDEROS MODESTO LOPEZ |
|||||
|
12/22/2010 |
|
Deeds |
$13,000 |
MONTGOMERY BRINT A |
BILLINGSLEY CHRISTOPHER |
|||||
| Last Mailed Notice of Value (N.O.V.) Information/History | ||||||||
|---|---|---|---|---|---|---|---|---|
| Year | Date | Market Value | Taxable Market Value | Gross Assessed | Exemption | Net Assessed | ||
|
2026 |
02/23/2026 |
140,500 |
93,463 |
10,280 |
0 |
10,280 |
||
|
2025 |
02/14/2025 |
140,000 |
89,013 |
9,791 |
0 |
9,791 |
||
|
2024 |
02/13/2024 |
134,000 |
84,775 |
9,324 |
1,000 |
8,324 |
||
|
2024 |
04/05/2024 |
134,000 |
84,775 |
9,324 |
1,000 |
8,324 |
||
|
2023 |
02/14/2023 |
125,000 |
82,306 |
9,052 |
1,000 |
8,052 |
||
| Property Building Permit History | ||||||
|---|---|---|---|---|---|---|
| Issued | Permit # | Provided by | Bldg # | Description | Est Construction Cost | Status |
|
1/8/2010 |
10392393 |
OKLAHOMA CITY |
1 |
Burn - Trip |
25,000 |
Inactive |
| Click button on building number to access detailed information: | ||||||
|---|---|---|---|---|---|---|
| Bldg # | Vacant/Improved Land | Bldg Description | Year Built | SqFt | # Stories | |
|
1 |
Improved |
Ranch 1 Story |
1932 |
1,154 |
1 Stories |
|