|
|
|
| Larry Stein Oklahoma County Assessor (405) 713-1200 - Public Access System |
|
|
|
|
|
|
| Real Property Display - Screen Produced 3/16/2026 1:12:11 PM | ||||
|---|---|---|---|---|
| Account: R053252225 | Type: Residential | Location: |
2105 NW 35TH ST |
|
| Building Name/Occupant: |
|
OKLAHOMA CITY |
||
| Owner Name 1: | SMITH CHELSEA L |
Parcel PIN#: |
2673-05-325-2225 |
|
| Owner Name 2: | 1/4 section #: |
2673 |
||
| Owner Name 3: | Parent Acct: |
|
||
| Billing Address: | 2105 NW 35TH ST | Tax District: |
|
|
| City, State, Zip | OKLAHOMA CITY, OK 73112-7943 | School System: |
Oklahoma City #89 |
|
|
Country: (If noted) |
Land Size: |
0.1607 Acres |
||
|
Land Value: 16,450 |
|
|||
|
Sect 19-T12N-R3W Qtr NE |
WEST POINT AMD E2
Block
004
Lot
000
|
|||
| Full Legal Description: WEST POINT AMD E2 004 000 LOTS 45 & 46 |
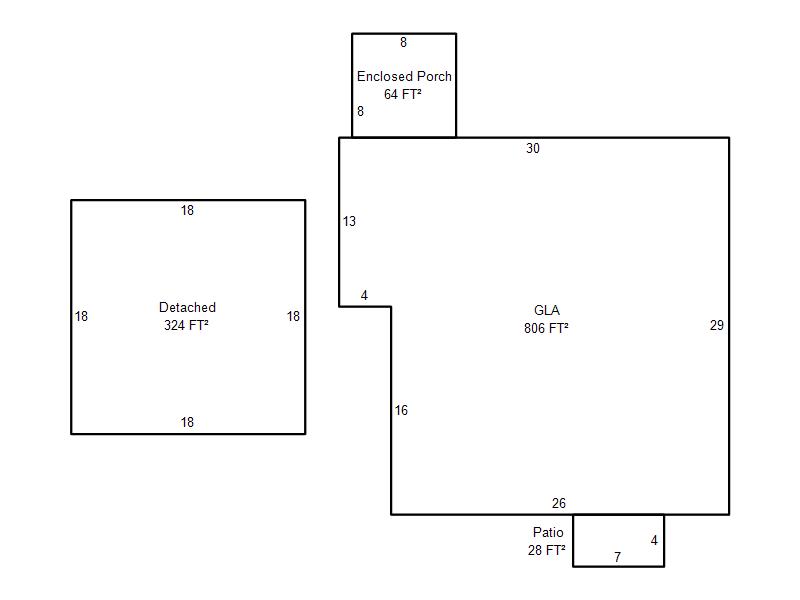
| Photo & Sketch (if available) | Comp Sales (ordered by relevancy) |
|
||||||||||||||||||
|
||||||||||||||||||||
| Value History (*The County Treasurer 405-713-1300 posts & collects actual tax amounts. Contact information HERE) | |||||||||||||
|---|---|---|---|---|---|---|---|---|---|---|---|---|---|
| Year | Market Value | Taxable Mkt Value | Gross Assessed | Exemption | Net Assessed | Millage | Est. Tax | Tax Savings | |||||
|
2025 |
141,500 |
141,500 |
15,565 |
1,000 |
14,565 |
122.90 |
$1,790 |
$123 |
|||||
|
2024 |
161,500 |
120,393 |
13,242 |
0 |
13,242 |
123.89 |
$1,641 |
$560 |
|||||
|
2023 |
152,000 |
114,660 |
12,612 |
0 |
12,612 |
122.82 |
$1,549 |
$504 |
|||||
|
2022 |
125,500 |
109,200 |
12,012 |
0 |
12,012 |
117.63 |
$1,413 |
$211 |
|||||
|
2021 |
104,000 |
104,000 |
11,440 |
0 |
11,440 |
117.70 |
$1,346 |
$0 |
|||||
| Property Account Status/Adjustments/Exemptions | ||
|---|---|---|
| Account # | Exemption Description | Amount |
|
R053252225 |
3% Cap Homestead |
0 |
|
R053252225 |
Homestead |
1,000 |
| Property Deed Transaction History (Recorded in the County Clerk's Office) | ||||||||||
|---|---|---|---|---|---|---|---|---|---|---|
| Date | Type | Book | Page | Price | Grantor | Grantee | ||||
|
5/24/2024 |
|
Deeds |
$115,000 |
ALLISON LESLIE |
SMITH CHELSEA L |
|||||
|
6/15/2020 |
|
Deeds |
$100,000 |
OCHS KELEE |
ALLISON LESLIE |
|||||
|
9/8/2004 |
|
Deeds |
$59,500 |
RUSSELL MARJORIE REILLY BARBARA |
OCHS KELEE |
|||||
|
4/29/2004 |
|
Deeds |
$25,000 |
EAKES GAY L LIVING TRUST |
RUSSELL MARJORIE REILLY BARBARA |
|||||
|
4/5/2004 |
|
Hmstd Off & |
$0 |
MING DONALD PATRICK |
EAKES GAY L LIVING TRUST |
|||||
| Last Mailed Notice of Value (N.O.V.) Information/History | ||||||||
|---|---|---|---|---|---|---|---|---|
| Year | Date | Market Value | Taxable Market Value | Gross Assessed | Exemption | Net Assessed | ||
|
2025 |
02/14/2025 |
141,500 |
141,500 |
15,565 |
1,000 |
14,565 |
||
|
2024 |
02/13/2024 |
161,500 |
120,393 |
13,242 |
0 |
13,242 |
||
|
2023 |
02/14/2023 |
152,000 |
114,660 |
12,612 |
0 |
12,612 |
||
|
2022 |
03/15/2022 |
125,500 |
109,200 |
12,012 |
0 |
12,012 |
||
|
2021 |
03/19/2021 |
104,000 |
104,000 |
11,440 |
0 |
11,440 |
||
| Property Building Permit History | |||||||||||
|---|---|---|---|---|---|---|---|---|---|---|---|
| Issued | Permit # | Provided by | Bldg # | Description | Est Construction Cost | Status | |||||
| No Building Permit records returned. | |||||||||||
| Click button on building number to access detailed information: | ||||||
|---|---|---|---|---|---|---|
| Bldg # | Vacant/Improved Land | Bldg Description | Year Built | SqFt | # Stories | |
|
1 |
Improved |
Ranch 1 Story |
1935 |
806 |
1 Stories |
|