|
|
|
| Larry Stein Oklahoma County Assessor (405) 713-1200 - Public Access System |
|
|
|
|
|
|
| Real Property Display - Screen Produced 3/16/2026 1:13:37 PM | ||||
|---|---|---|---|---|
| Account: R053252275 | Type: Residential | Location: |
2100 NW 35TH ST |
|
| Building Name/Occupant: |
|
OKLAHOMA CITY |
||
| Owner Name 1: | GRAMAJO ASBEL |
Parcel PIN#: |
2673-05-325-2275 |
|
| Owner Name 2: | 1/4 section #: |
2673 |
||
| Owner Name 3: | Parent Acct: |
|
||
| Billing Address: | 2100 NW 35TH ST | Tax District: |
|
|
| City, State, Zip | OKLAHOMA CITY, OK 73112-7944 | School System: |
Oklahoma City #89 |
|
|
Country: (If noted) |
Land Size: |
0.1607 Acres |
||
|
Land Value: 16,450 |
|
|||
|
Sect 19-T12N-R3W Qtr NE |
WEST POINT AMD E2
Block
005
Lot
000
|
|||
| Full Legal Description: WEST POINT AMD E2 005 000 LOTS 1 & 2 |
| Photo & Sketch (if available) | Comp Sales (ordered by relevancy) |
|
||||||||||||||||||
|
||||||||||||||||||||
| Value History (*The County Treasurer 405-713-1300 posts & collects actual tax amounts. Contact information HERE) | |||||||||||||
|---|---|---|---|---|---|---|---|---|---|---|---|---|---|
| Year | Market Value | Taxable Mkt Value | Gross Assessed | Exemption | Net Assessed | Millage | Est. Tax | Tax Savings | |||||
|
2025 |
119,000 |
119,000 |
13,090 |
0 |
13,090 |
122.90 |
$1,609 |
$0 |
|||||
|
2024 |
111,000 |
71,055 |
7,815 |
0 |
7,815 |
123.89 |
$968 |
$544 |
|||||
|
2023 |
103,500 |
67,672 |
7,443 |
0 |
7,443 |
122.82 |
$914 |
$484 |
|||||
|
2022 |
79,500 |
64,450 |
7,088 |
0 |
7,088 |
117.63 |
$834 |
$195 |
|||||
|
2021 |
72,500 |
61,381 |
6,751 |
0 |
6,751 |
117.70 |
$795 |
$144 |
|||||
| Property Account Status/Adjustments/Exemptions | ||
|---|---|---|
| Account # | Exemption Description | Amount |
|
R053252275 |
5% Capped Account |
0 |
| Property Deed Transaction History (Recorded in the County Clerk's Office) | ||||||||||
|---|---|---|---|---|---|---|---|---|---|---|
| Date | Type | Book | Page | Price | Grantor | Grantee | ||||
|
8/2/2024 |
|
Deeds |
$65,000 |
FLORES JULIO C & SANDRA |
GRAMAJO ASBEL |
|||||
|
4/2/1996 |
|
Historical |
$22,000 |
ROTHERMEL JOSEPH P |
FLORES JULIO C & SANDRA |
|||||
|
4/20/1994 |
|
Historical |
$0 |
ROTHERMEL JOSEPH P |
ROTHERMEL JOSEPH P |
|||||
|
12/30/1992 |
|
Historical |
$0 |
SWAIM HERMAN |
ROTHERMEL JOSEPH P |
|||||
|
3/4/1992 |
|
Historical |
$10,500 |
SMITH VERN GORDON |
SWAIM HERMAN |
|||||
| Last Mailed Notice of Value (N.O.V.) Information/History | ||||||||
|---|---|---|---|---|---|---|---|---|
| Year | Date | Market Value | Taxable Market Value | Gross Assessed | Exemption | Net Assessed | ||
|
2026 |
02/23/2026 |
120,000 |
120,000 |
13,200 |
0 |
13,200 |
||
|
2025 |
02/14/2025 |
119,000 |
119,000 |
13,090 |
0 |
13,090 |
||
|
2024 |
02/13/2024 |
111,000 |
71,055 |
7,815 |
0 |
7,815 |
||
|
2023 |
02/14/2023 |
103,500 |
67,672 |
7,443 |
0 |
7,443 |
||
|
2022 |
03/15/2022 |
79,500 |
64,450 |
7,088 |
0 |
7,088 |
||
| Property Building Permit History | ||||||
|---|---|---|---|---|---|---|
| Issued | Permit # | Provided by | Bldg # | Description | Est Construction Cost | Status |
|
5/20/2002 |
10192258 |
OKLAHOMA CITY |
1 |
Other |
12,000 |
Inactive |
|
5/15/2002 |
10192257 |
OKLAHOMA CITY |
1 |
Storage Buil |
1,200 |
Inactive |
| Click button on building number to access detailed information: | ||||||
|---|---|---|---|---|---|---|
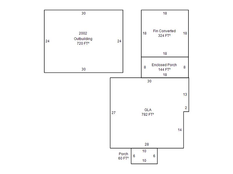
| Bldg # | Vacant/Improved Land | Bldg Description | Year Built | SqFt | # Stories | |
|
1 |
Improved |
Ranch 1 Story |
1945 |
782 |
1 Stories |
|