|
|
|
| Larry Stein Oklahoma County Assessor (405) 713-1200 - Public Access System |
|
|
|
|
|
|
| Real Property Display - Screen Produced 3/16/2026 1:13:37 PM | ||||
|---|---|---|---|---|
| Account: R053253425 | Type: Residential | Location: |
2208 NW 34TH ST |
|
| Building Name/Occupant: |
|
OKLAHOMA CITY |
||
| Owner Name 1: | 2208 NW 34TH STREET PROTECTED SERIES |
Parcel PIN#: |
2673-05-325-3425 |
|
| Owner Name 2: | OF LDA HOLDINGS LLC | 1/4 section #: |
2673 |
|
| Owner Name 3: | Parent Acct: |
|
||
| Billing Address: | 12716 WHITEFIELD CIR | Tax District: |
|
|
| City, State, Zip | OKLAHOMA CITY, OK 73142-3129 | School System: |
Oklahoma City #89 |
|
|
Country: (If noted) |
Land Size: |
0.1607 Acres |
||
|
Land Value: 16,450 |
|
|||
|
Sect 19-T12N-R3W Qtr NE |
WEST POINT AMD E2
Block
007
Lot
000
|
|||
| Full Legal Description: WEST POINT AMD E2 007 000 LOTS 5 & 6 |
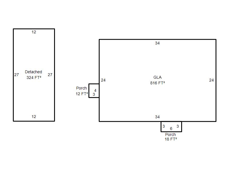
| Photo & Sketch (if available) | Comp Sales (ordered by relevancy) |
|
||||||||||||||||||
|
||||||||||||||||||||
| Value History (*The County Treasurer 405-713-1300 posts & collects actual tax amounts. Contact information HERE) | |||||||||||||
|---|---|---|---|---|---|---|---|---|---|---|---|---|---|
| Year | Market Value | Taxable Mkt Value | Gross Assessed | Exemption | Net Assessed | Millage | Est. Tax | Tax Savings | |||||
|
2025 |
100,000 |
66,834 |
7,351 |
0 |
7,351 |
122.90 |
$904 |
$448 |
|||||
|
2024 |
95,500 |
63,652 |
7,001 |
0 |
7,001 |
123.89 |
$867 |
$434 |
|||||
|
2023 |
90,500 |
60,621 |
6,667 |
0 |
6,667 |
122.82 |
$819 |
$404 |
|||||
|
2022 |
70,500 |
57,735 |
6,350 |
0 |
6,350 |
117.63 |
$747 |
$165 |
|||||
|
2021 |
64,000 |
54,986 |
6,048 |
0 |
6,048 |
117.70 |
$712 |
$117 |
|||||
| Property Account Status/Adjustments/Exemptions | ||||||
|---|---|---|---|---|---|---|
| Account # | Exemption Description | Amount | ||||
| No adjustment/exemption records returned. | ||||||
| Property Deed Transaction History (Recorded in the County Clerk's Office) | ||||||||||
|---|---|---|---|---|---|---|---|---|---|---|
| Date | Type | Book | Page | Price | Grantor | Grantee | ||||
|
2/4/2025 |
|
Deeds |
$100,000 |
NORMAN SEWELL CELINA |
2208 NW 34TH STREET PROTECTED SERIES |
|||||
|
1/12/2012 |
|
Hmstd Off & |
$0 |
CONLEE JIM |
NORMAN SEWELL CELINA |
|||||
|
1/24/2006 |
|
Deeds |
$0 |
CONLEE JIMMIE G & BILLIE JO |
CONLEE JIMMIE GALE |
|||||
|
4/10/2000 |
|
Deeds |
$21,000 |
KHODDAM HOSSEIN |
CONLEE JIMMIE G & BILLIE JO |
|||||
|
2/13/1996 |
|
Historical |
$15,000 |
LANGHAM GEORGENA |
KHODDAM HOSSEIN |
|||||
| Last Mailed Notice of Value (N.O.V.) Information/History | ||||||||
|---|---|---|---|---|---|---|---|---|
| Year | Date | Market Value | Taxable Market Value | Gross Assessed | Exemption | Net Assessed | ||
|
2026 |
02/23/2026 |
105,000 |
105,000 |
11,550 |
0 |
11,550 |
||
|
2025 |
02/14/2025 |
100,000 |
66,834 |
7,351 |
0 |
7,351 |
||
|
2025 |
03/28/2025 |
100,000 |
66,834 |
7,351 |
0 |
7,351 |
||
|
2024 |
02/13/2024 |
95,500 |
63,652 |
7,001 |
0 |
7,001 |
||
|
2023 |
02/14/2023 |
90,500 |
60,621 |
6,667 |
0 |
6,667 |
||
| Property Building Permit History | |||||||||||
|---|---|---|---|---|---|---|---|---|---|---|---|
| Issued | Permit # | Provided by | Bldg # | Description | Est Construction Cost | Status | |||||
| No Building Permit records returned. | |||||||||||
| Click button on building number to access detailed information: | ||||||
|---|---|---|---|---|---|---|
| Bldg # | Vacant/Improved Land | Bldg Description | Year Built | SqFt | # Stories | |
|
1 |
Improved |
Ranch 1 Story |
1939 |
816 |
1 Stories |
|