|
|
|
| Larry Stein Oklahoma County Assessor (405) 713-1200 - Public Access System |
|
|
|
|
|
|
| Real Property Display - Screen Produced 3/16/2026 1:12:11 PM | ||||
|---|---|---|---|---|
| Account: R053257175 | Type: Residential | Location: |
2128 NW 31ST ST |
|
| Building Name/Occupant: |
|
OKLAHOMA CITY |
||
| Owner Name 1: | DIAZ DLOMAN RODELMO |
Parcel PIN#: |
2673-05-325-7175 |
|
| Owner Name 2: | ALFARO MONICA DIAZ | 1/4 section #: |
2673 |
|
| Owner Name 3: | Parent Acct: |
|
||
| Billing Address: | 4501 NW 28TH ST | Tax District: |
|
|
| City, State, Zip | OKLAHOMA CITY, OK 73127 | School System: |
Oklahoma City #89 |
|
|
Country: (If noted) |
Land Size: |
0.1607 Acres |
||
|
Land Value: 16,450 |
|
|||
|
Sect 19-T12N-R3W Qtr NE |
WEST POINT AMD E2
Block
013
Lot
000
|
|||
| Full Legal Description: WEST POINT AMD E2 013 000 LOTS 15 & 16 |
| Photo & Sketch (if available) | Comp Sales (ordered by relevancy) |
|
||||||||||||||||||
|
||||||||||||||||||||
| Value History (*The County Treasurer 405-713-1300 posts & collects actual tax amounts. Contact information HERE) | |||||||||||||
|---|---|---|---|---|---|---|---|---|---|---|---|---|---|
| Year | Market Value | Taxable Mkt Value | Gross Assessed | Exemption | Net Assessed | Millage | Est. Tax | Tax Savings | |||||
|
2025 |
149,500 |
131,748 |
14,492 |
0 |
14,492 |
122.90 |
$1,781 |
$240 |
|||||
|
2024 |
126,500 |
125,475 |
13,802 |
0 |
13,802 |
123.89 |
$1,710 |
$14 |
|||||
|
2023 |
119,500 |
119,500 |
13,145 |
0 |
13,145 |
122.82 |
$1,614 |
$0 |
|||||
|
2022 |
93,000 |
63,870 |
7,024 |
0 |
7,024 |
117.63 |
$826 |
$377 |
|||||
|
2021 |
83,500 |
60,829 |
6,690 |
0 |
6,690 |
117.70 |
$788 |
$294 |
|||||
| Property Account Status/Adjustments/Exemptions | ||
|---|---|---|
| Account # | Exemption Description | Amount |
|
R053257175 |
5% Capped Account |
0 |
| Property Deed Transaction History (Recorded in the County Clerk's Office) | ||||||||||
|---|---|---|---|---|---|---|---|---|---|---|
| Date | Type | Book | Page | Price | Grantor | Grantee | ||||
|
5/4/2022 |
|
Deeds |
$110,000 |
DIAZ DE LEON UBALDO JEREMIAS |
DIAZ DLOMAN RODELMO |
|||||
|
6/3/2016 |
|
Deeds |
$43,000 |
LRG PROPERTIES LLC |
DIAZ DE LEON UBALDO JEREMIAS |
|||||
|
5/17/2016 |
|
Hmstd Off & |
$0 |
LRG PROPERTIES |
LRG PROPERTIES LLC |
|||||
|
5/5/2016 |
|
Deeds |
$30,500 |
GWIN DONALD G |
LRG PROPERTIES |
|||||
|
8/13/2012 |
|
Deeds |
$0 |
GWIN MARY A GWIN DONALD G |
GWIN DONALD G |
|||||
| Last Mailed Notice of Value (N.O.V.) Information/History | ||||||||
|---|---|---|---|---|---|---|---|---|
| Year | Date | Market Value | Taxable Market Value | Gross Assessed | Exemption | Net Assessed | ||
|
2026 |
02/23/2026 |
152,500 |
138,335 |
15,216 |
0 |
15,216 |
||
|
2025 |
02/14/2025 |
149,500 |
131,748 |
14,492 |
0 |
14,492 |
||
|
2024 |
02/13/2024 |
126,500 |
125,475 |
13,802 |
0 |
13,802 |
||
|
2023 |
02/14/2023 |
119,500 |
119,500 |
13,145 |
0 |
13,145 |
||
|
2022 |
03/15/2022 |
93,000 |
63,870 |
7,024 |
0 |
7,024 |
||
| Property Building Permit History | |||||||||||
|---|---|---|---|---|---|---|---|---|---|---|---|
| Issued | Permit # | Provided by | Bldg # | Description | Est Construction Cost | Status | |||||
| No Building Permit records returned. | |||||||||||
| Click button on building number to access detailed information: | ||||||
|---|---|---|---|---|---|---|
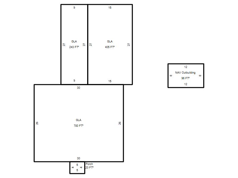
| Bldg # | Vacant/Improved Land | Bldg Description | Year Built | SqFt | # Stories | |
|
1 |
Improved |
Ranch 1 Story |
1942 |
1,428 |
1 Stories |
|