|
|
|
| Larry Stein Oklahoma County Assessor (405) 713-1200 - Public Access System |
|
|
|
|
|
|
| Real Property Display - Screen Produced 3/20/2026 5:53:52 AM | ||||
|---|---|---|---|---|
| Account: R053257850 | Type: Residential | Location: |
3124 N YOUNGS BLVD |
|
| Building Name/Occupant: |
|
OKLAHOMA CITY |
||
| Owner Name 1: | YOUNGS 3124 OKC OK LLC |
Parcel PIN#: |
2673-05-325-7850 |
|
| Owner Name 2: | 1/4 section #: |
2673 |
||
| Owner Name 3: | Parent Acct: |
|
||
| Billing Address: | 4940 PONT NEUF RD | Tax District: |
|
|
| City, State, Zip | EDMOND, OK 73034-9253 | School System: |
Oklahoma City #89 |
|
|
Country: (If noted) |
Land Size: |
0.1045 Acres |
||
|
Land Value: 10,693 |
|
|||
|
Sect 19-T12N-R3W Qtr NE |
WEST POINT AMD E2
Block
014
Lot
000
|
|||
| Full Legal Description: WEST POINT AMD E2 014 000 S65FT LOTS 23 THRU 25 |
| Photo & Sketch (if available) | Comp Sales (ordered by relevancy) |
|
||||||||||||||||||
|
||||||||||||||||||||
| Value History (*The County Treasurer 405-713-1300 posts & collects actual tax amounts. Contact information HERE) | |||||||||||||
|---|---|---|---|---|---|---|---|---|---|---|---|---|---|
| Year | Market Value | Taxable Mkt Value | Gross Assessed | Exemption | Net Assessed | Millage | Est. Tax | Tax Savings | |||||
|
2025 |
191,500 |
191,500 |
21,065 |
0 |
21,065 |
122.90 |
$2,589 |
$0 |
|||||
|
2024 |
188,000 |
188,000 |
20,680 |
0 |
20,680 |
123.89 |
$2,562 |
$0 |
|||||
|
2023 |
124,500 |
124,500 |
13,695 |
1,000 |
12,695 |
122.82 |
$1,559 |
$123 |
|||||
|
2022 |
150,000 |
150,000 |
16,500 |
0 |
16,500 |
117.63 |
$1,941 |
$0 |
|||||
|
2021 |
85,000 |
84,525 |
9,297 |
0 |
9,297 |
117.70 |
$1,094 |
$6 |
|||||
| Property Account Status/Adjustments/Exemptions | ||
|---|---|---|
| Account # | Exemption Description | Amount |
|
R053257850 |
5% Capped Account |
0 |
| Property Deed Transaction History (Recorded in the County Clerk's Office) | ||||||||||
|---|---|---|---|---|---|---|---|---|---|---|
| Date | Type | Book | Page | Price | Grantor | Grantee | ||||
|
8/14/2023 |
|
Deeds |
$208,000 |
WILSON SAMUEL |
YOUNGS 3124 OKC OK LLC |
|||||
|
7/9/2021 |
|
Deeds |
$152,000 |
WILSON JOHN M JR |
WILSON SAMUEL |
|||||
|
1/15/2020 |
|
Hmstd Off & |
$0 |
FRONT DOOR PROPERTIES LLC |
WILSON JOHN M JR |
|||||
|
1/15/2020 |
|
Hmstd Off & |
$0 |
WILSON JOHN M JR & SUSAN |
FRONT DOOR PROPERTIES LLC |
|||||
|
11/26/2018 |
|
Deeds |
$81,000 |
ANDERSON MARK |
FRONT DOOR PROPERTIES LLC |
|||||
| Last Mailed Notice of Value (N.O.V.) Information/History | ||||||||
|---|---|---|---|---|---|---|---|---|
| Year | Date | Market Value | Taxable Market Value | Gross Assessed | Exemption | Net Assessed | ||
|
2026 |
02/23/2026 |
192,000 |
192,000 |
21,120 |
0 |
21,120 |
||
|
2025 |
02/14/2025 |
191,500 |
191,500 |
21,065 |
0 |
21,065 |
||
|
2024 |
02/13/2024 |
188,000 |
188,000 |
20,680 |
0 |
20,680 |
||
|
2022 |
03/15/2022 |
150,000 |
150,000 |
16,500 |
0 |
16,500 |
||
|
2021 |
03/19/2021 |
85,000 |
84,525 |
9,297 |
0 |
9,297 |
||
| Property Building Permit History | |||||||||||
|---|---|---|---|---|---|---|---|---|---|---|---|
| Issued | Permit # | Provided by | Bldg # | Description | Est Construction Cost | Status | |||||
| No Building Permit records returned. | |||||||||||
| Click button on building number to access detailed information: | ||||||
|---|---|---|---|---|---|---|
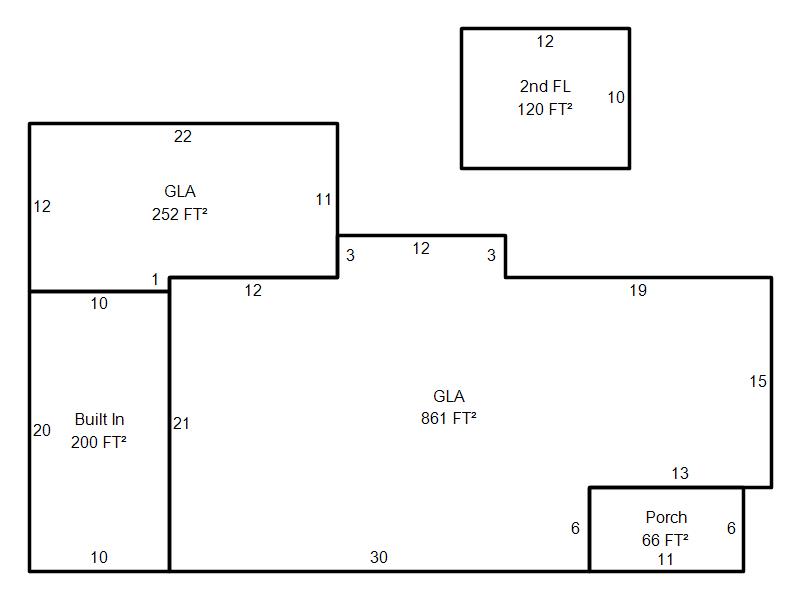
| Bldg # | Vacant/Improved Land | Bldg Description | Year Built | SqFt | # Stories | |
|
1 |
Improved |
1½ Story Fin |
1941 |
1,233 |
1.5 Stories |
|