|
|
|
| Larry Stein Oklahoma County Assessor (405) 713-1200 - Public Access System |
|
|
|
|
|
|
| Real Property Display - Screen Produced 3/16/2026 1:10:57 PM | ||||
|---|---|---|---|---|
| Account: R053257875 | Type: Residential | Location: |
3120 N YOUNGS BLVD |
|
| Building Name/Occupant: |
|
OKLAHOMA CITY |
||
| Owner Name 1: | COLVIN ISAAC NEWTON |
Parcel PIN#: |
2673-05-325-7875 |
|
| Owner Name 2: | 1/4 section #: |
2673 |
||
| Owner Name 3: | Parent Acct: |
|
||
| Billing Address: | 3120 N YOUNGS BLVD | Tax District: |
|
|
| City, State, Zip | OKLAHOMA CITY, OK 73112-7861 | School System: |
Oklahoma City #89 |
|
|
Country: (If noted) |
Land Size: |
0.1141 Acres |
||
|
Land Value: 11,680 |
|
|||
|
Sect 19-T12N-R3W Qtr NE |
WEST POINT AMD E2
Block
014
Lot
000
|
|||
| Full Legal Description: WEST POINT AMD E2 014 000 N70FT LOTS 26 THRU 28 |
| Photo & Sketch (if available) | Comp Sales (ordered by relevancy) |
|
||||||||||||||||||
|
||||||||||||||||||||
| Value History (*The County Treasurer 405-713-1300 posts & collects actual tax amounts. Contact information HERE) | |||||||||||||
|---|---|---|---|---|---|---|---|---|---|---|---|---|---|
| Year | Market Value | Taxable Mkt Value | Gross Assessed | Exemption | Net Assessed | Millage | Est. Tax | Tax Savings | |||||
|
2025 |
170,000 |
61,321 |
6,745 |
0 |
6,745 |
122.90 |
$829 |
$1,469 |
|||||
|
2024 |
162,500 |
58,401 |
6,424 |
1,000 |
5,424 |
123.89 |
$672 |
$1,543 |
|||||
|
2023 |
150,000 |
56,700 |
6,236 |
1,000 |
5,236 |
122.82 |
$643 |
$1,383 |
|||||
|
2022 |
116,500 |
55,049 |
6,054 |
0 |
6,054 |
117.63 |
$712 |
$795 |
|||||
|
2021 |
104,500 |
52,428 |
5,766 |
0 |
5,766 |
117.70 |
$679 |
$674 |
|||||
| Property Account Status/Adjustments/Exemptions | ||
|---|---|---|
| Account # | Exemption Description | Amount |
|
R053257875 |
5% Capped Account |
0 |
| Property Deed Transaction History (Recorded in the County Clerk's Office) | ||||||||||
|---|---|---|---|---|---|---|---|---|---|---|
| Date | Type | Book | Page | Price | Grantor | Grantee | ||||
|
1/9/2024 |
|
Hmstd Off & |
$0 |
COLVIN LEA ANNE |
COLVIN ISAAC NEWTON |
|||||
|
10/16/2009 |
|
Deeds |
$0 |
GARRETT NADINE ANNA COLVIN LEA ANNE |
COLVIN LEA ANNE |
|||||
|
7/25/2005 |
|
Deeds |
$0 |
GARRETT NADINE ANNA COLVIN LEA-ANNE |
GARRETT NADINE ANNA COLVIN LEA ANNE |
|||||
|
4/13/1998 |
|
Historical |
$0 |
GARRETT NADINE ANNA |
GARRETT NADINE ANNA |
|||||
|
2/4/1998 |
|
Historical |
$0 |
GARRETT JOHNIE P & NADINE A |
GARRETT NADINE ANNA |
|||||
| Last Mailed Notice of Value (N.O.V.) Information/History | ||||||||
|---|---|---|---|---|---|---|---|---|
| Year | Date | Market Value | Taxable Market Value | Gross Assessed | Exemption | Net Assessed | ||
|
2026 |
02/23/2026 |
171,500 |
64,387 |
7,082 |
0 |
7,082 |
||
|
2025 |
02/14/2025 |
170,000 |
61,321 |
6,745 |
0 |
6,745 |
||
|
2024 |
02/13/2024 |
162,500 |
58,401 |
6,424 |
1,000 |
5,424 |
||
|
2023 |
02/14/2023 |
150,000 |
56,700 |
6,236 |
1,000 |
5,236 |
||
|
2022 |
03/15/2022 |
116,500 |
55,049 |
6,054 |
0 |
6,054 |
||
| Property Building Permit History | |||||||||||
|---|---|---|---|---|---|---|---|---|---|---|---|
| Issued | Permit # | Provided by | Bldg # | Description | Est Construction Cost | Status | |||||
| No Building Permit records returned. | |||||||||||
| Click button on building number to access detailed information: | ||||||
|---|---|---|---|---|---|---|
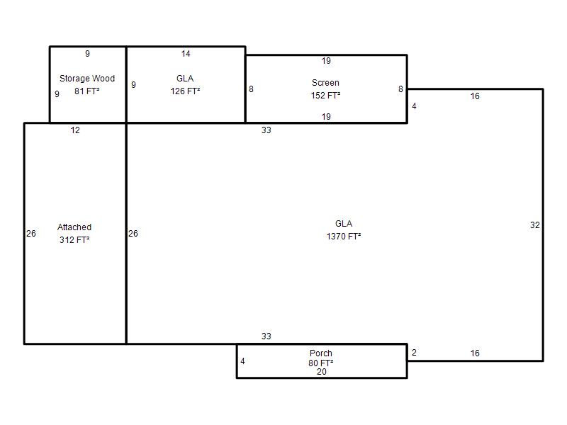
| Bldg # | Vacant/Improved Land | Bldg Description | Year Built | SqFt | # Stories | |
|
1 |
Improved |
Ranch 1 Story |
1947 |
1,496 |
1 Stories |
|