|
|
|
| Larry Stein Oklahoma County Assessor (405) 713-1200 - Public Access System |
|
|
|
|
|
|
| Real Property Display - Screen Produced 3/16/2026 1:12:10 PM | ||||
|---|---|---|---|---|
| Account: R053258225 | Type: Residential | Location: |
2215 NW 30TH ST |
|
| Building Name/Occupant: |
|
OKLAHOMA CITY |
||
| Owner Name 1: | GARCIA CHRISTOPHER RENE |
Parcel PIN#: |
2673-05-325-8225 |
|
| Owner Name 2: | 1/4 section #: |
2673 |
||
| Owner Name 3: | Parent Acct: |
|
||
| Billing Address: | 2215 NW 30TH ST | Tax District: |
|
|
| City, State, Zip | OKLAHOMA CITY, OK 73115 | School System: |
Oklahoma City #89 |
|
|
Country: (If noted) |
Land Size: |
0.1733 Acres |
||
|
Land Value: 17,743 |
|
|||
|
Sect 19-T12N-R3W Qtr NE |
WEST POINT AMD E2
Block
015
Lot
000
|
|||
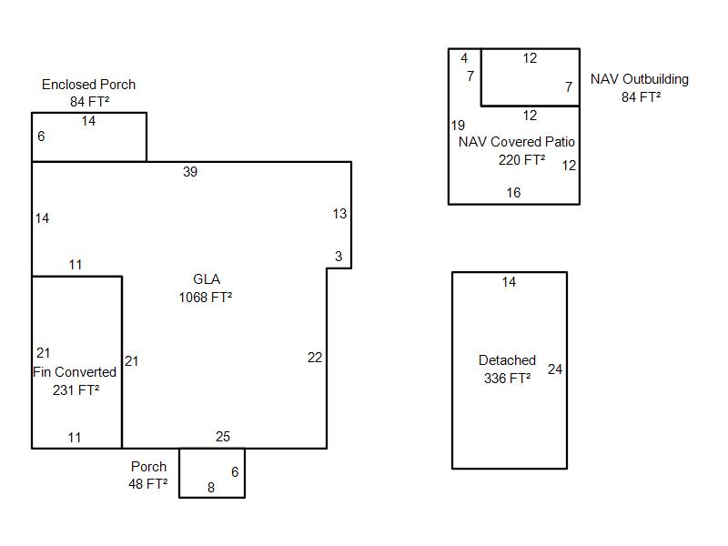
| Full Legal Description: WEST POINT AMD E2 015 000 LOTS 7 & 8 |
| Photo & Sketch (if available) | Comp Sales (ordered by relevancy) |
|
||||||||||||||||||
|
||||||||||||||||||||
| Value History (*The County Treasurer 405-713-1300 posts & collects actual tax amounts. Contact information HERE) | |||||||||||||
|---|---|---|---|---|---|---|---|---|---|---|---|---|---|
| Year | Market Value | Taxable Mkt Value | Gross Assessed | Exemption | Net Assessed | Millage | Est. Tax | Tax Savings | |||||
|
2025 |
146,500 |
145,950 |
16,054 |
0 |
16,054 |
122.90 |
$1,973 |
$7 |
|||||
|
2024 |
139,000 |
139,000 |
15,290 |
0 |
15,290 |
123.89 |
$1,894 |
$0 |
|||||
|
2023 |
162,000 |
162,000 |
17,820 |
0 |
17,820 |
122.82 |
$2,189 |
$0 |
|||||
|
2022 |
101,000 |
96,075 |
10,568 |
0 |
10,568 |
117.63 |
$1,243 |
$64 |
|||||
|
2021 |
91,500 |
91,500 |
10,065 |
0 |
10,065 |
117.70 |
$1,185 |
$0 |
|||||
| Property Account Status/Adjustments/Exemptions | ||
|---|---|---|
| Account # | Exemption Description | Amount |
|
R053258225 |
5% Capped Account |
0 |
| Property Deed Transaction History (Recorded in the County Clerk's Office) | ||||||||||
|---|---|---|---|---|---|---|---|---|---|---|
| Date | Type | Book | Page | Price | Grantor | Grantee | ||||
|
9/26/2022 |
|
Deeds |
$161,000 |
CAMBIAR PROPERTIES LLC |
GARCIA CHRISTOPHER RENE |
|||||
|
12/16/2020 |
|
Deeds |
$95,000 |
BURNET CHERYL K ESTATE |
CAMBIAR PROPERTIES LLC |
|||||
|
10/9/2020 |
|
Hmstd Off & |
$0 |
BURNET BERNICE LIVING TRUST |
BURNET CHERYL K EST OF |
|||||
|
10/9/2020 |
|
Hmstd Off & |
$0 |
BURNET CHERYL K EST OF |
BURNET CHERYL K ESTATE |
|||||
|
10/24/1994 |
|
Historical |
$30,000 |
REHERMAN JEAN M TRS |
BURNET BERNICE LIVING TRUST |
|||||
| Last Mailed Notice of Value (N.O.V.) Information/History | ||||||||
|---|---|---|---|---|---|---|---|---|
| Year | Date | Market Value | Taxable Market Value | Gross Assessed | Exemption | Net Assessed | ||
|
2026 |
02/23/2026 |
147,500 |
147,500 |
16,225 |
0 |
16,225 |
||
|
2025 |
02/14/2025 |
146,500 |
145,950 |
16,054 |
0 |
16,054 |
||
|
2023 |
02/14/2023 |
162,000 |
162,000 |
17,820 |
0 |
17,820 |
||
|
2022 |
03/15/2022 |
101,000 |
96,075 |
10,568 |
0 |
10,568 |
||
|
2021 |
03/19/2021 |
91,500 |
91,500 |
10,065 |
0 |
10,065 |
||
| Property Building Permit History | |||||||||||
|---|---|---|---|---|---|---|---|---|---|---|---|
| Issued | Permit # | Provided by | Bldg # | Description | Est Construction Cost | Status | |||||
| No Building Permit records returned. | |||||||||||
| Click button on building number to access detailed information: | ||||||
|---|---|---|---|---|---|---|
| Bldg # | Vacant/Improved Land | Bldg Description | Year Built | SqFt | # Stories | |
|
1 |
Improved |
Ranch 1 Story |
1941 |
1,068 |
1 Stories |
|