|
|
|
| Larry Stein Oklahoma County Assessor (405) 713-1200 - Public Access System |
|
|
|
|
|
|
| Real Property Display - Screen Produced 3/16/2026 8:09:52 AM | ||||
|---|---|---|---|---|
| Account: R053755400 | Type: Residential | Location: |
2320 NW 33RD ST |
|
| Building Name/Occupant: |
|
OKLAHOMA CITY |
||
| Owner Name 1: | SMITH QUAN DEBORAH ANN |
Parcel PIN#: |
2673-05-375-5400 |
|
| Owner Name 2: | 1/4 section #: |
2673 |
||
| Owner Name 3: | Parent Acct: |
|
||
| Billing Address: | 2320 NW 33RD ST | Tax District: |
|
|
| City, State, Zip | OKLAHOMA CITY, OK 73112-7822 | School System: |
Oklahoma City #89 |
|
|
Country: (If noted) |
Land Size: |
0.2329 Acres |
||
|
Land Value: 23,845 |
|
|||
|
Sect 19-T12N-R3W Qtr NE |
WEST POINT ADDITION
Block
021
Lot
000
|
|||
| Full Legal Description: WEST POINT ADDITION 021 000 BEG 245FT W OF NE/C TH S139FT W73.12FT N139FT E73.12FT TO BEG |
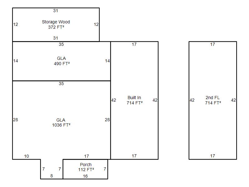
| Photo & Sketch (if available) | Comp Sales (ordered by relevancy) |
|
||||||||||||||||||
|
||||||||||||||||||||
| Value History (*The County Treasurer 405-713-1300 posts & collects actual tax amounts. Contact information HERE) | |||||||||||||
|---|---|---|---|---|---|---|---|---|---|---|---|---|---|
| Year | Market Value | Taxable Mkt Value | Gross Assessed | Exemption | Net Assessed | Millage | Est. Tax | Tax Savings | |||||
|
2025 |
237,500 |
116,570 |
12,822 |
1,000 |
11,822 |
122.90 |
$1,453 |
$1,758 |
|||||
|
2024 |
201,500 |
113,175 |
12,448 |
1,000 |
11,448 |
123.89 |
$1,418 |
$1,328 |
|||||
|
2023 |
192,000 |
109,879 |
12,086 |
1,000 |
11,086 |
122.82 |
$1,362 |
$1,232 |
|||||
|
2022 |
148,500 |
106,679 |
11,733 |
1,000 |
10,733 |
117.63 |
$1,263 |
$659 |
|||||
|
2021 |
134,000 |
103,572 |
11,392 |
1,000 |
10,392 |
117.70 |
$1,223 |
$512 |
|||||
| Property Account Status/Adjustments/Exemptions | ||
|---|---|---|
| Account # | Exemption Description | Amount |
|
R053755400 |
Homestead |
1,000 |
|
R053755400 |
3% Cap Homestead |
0 |
| Property Deed Transaction History (Recorded in the County Clerk's Office) | |||||||
|---|---|---|---|---|---|---|---|
| Date | Type | Book | Page | Price | Grantor | Grantee | |
|
8/15/2003 |
|
Deeds |
$35,500 |
DEEDS JESSICA SMITH DEBORAH ANN |
SMITH QUAN DEBORAH ANN |
||
|
4/17/1996 |
|
Historical |
$0 |
SMITH CLARENCE W & JESSIE E |
DEEDS JESSICA |
||
|
12/1/1983 |
|
Historical |
$0 |
|
SMITH CLARENCE W & JESSIE E |
||
| Last Mailed Notice of Value (N.O.V.) Information/History | ||||||||
|---|---|---|---|---|---|---|---|---|
| Year | Date | Market Value | Taxable Market Value | Gross Assessed | Exemption | Net Assessed | ||
|
2026 |
02/23/2026 |
240,000 |
120,067 |
13,206 |
1,000 |
12,206 |
||
|
2025 |
02/14/2025 |
237,500 |
116,570 |
12,822 |
1,000 |
11,822 |
||
|
2024 |
02/13/2024 |
201,500 |
113,175 |
12,448 |
1,000 |
11,448 |
||
|
2023 |
02/14/2023 |
192,000 |
109,879 |
12,086 |
1,000 |
11,086 |
||
|
2022 |
03/15/2022 |
148,500 |
106,679 |
11,733 |
1,000 |
10,733 |
||
| Property Building Permit History | |||||||||||
|---|---|---|---|---|---|---|---|---|---|---|---|
| Issued | Permit # | Provided by | Bldg # | Description | Est Construction Cost | Status | |||||
| No Building Permit records returned. | |||||||||||
| Click button on building number to access detailed information: | ||||||
|---|---|---|---|---|---|---|
| Bldg # | Vacant/Improved Land | Bldg Description | Year Built | SqFt | # Stories | |
|
1 |
Improved |
1½ Story Fin |
1942 |
2,240 |
1.5 Stories |
|