|
|
|
| Larry Stein Oklahoma County Assessor (405) 713-1200 - Public Access System |
|
|
|
|
|
|
| Real Property Display - Screen Produced 3/16/2026 4:23:16 PM | ||||
|---|---|---|---|---|
| Account: R053953280 | Type: Residential | Location: |
2419 NW 32ND ST |
|
| Building Name/Occupant: |
|
OKLAHOMA CITY |
||
| Owner Name 1: | SHRADER AUSTIN & ASHLEY |
Parcel PIN#: |
2673-05-395-3280 |
|
| Owner Name 2: | 1/4 section #: |
2673 |
||
| Owner Name 3: | Parent Acct: |
|
||
| Billing Address: | 3000 PUGET SOUND DR | Tax District: |
|
|
| City, State, Zip | EDMOND, OK 73034 | School System: |
Oklahoma City #89 |
|
|
Country: (If noted) |
UNITED STATES |
Land Size: |
0.1468 Acres |
|
|
Land Value: 21,100 |
|
|||
|
Sect 19-T12N-R3W Qtr NE |
MILAMS SUB ADDITION
Block
001
Lot
000
|
|||
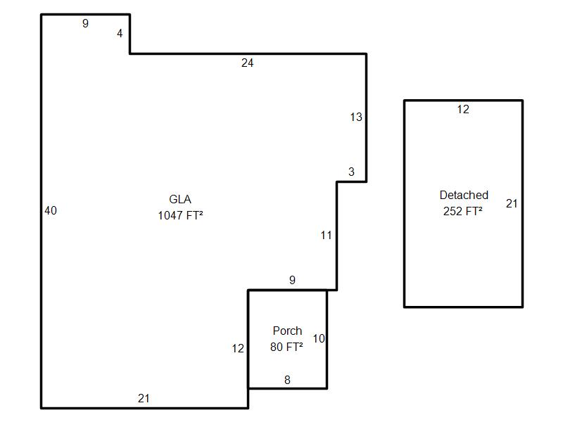
| Full Legal Description: MILAMS SUB ADDITION 001 000 E21FT LOT 16 & ALL LOT 17 |
| Photo & Sketch (if available) | Comp Sales (ordered by relevancy) |
|
||||||||||||||||||
|
||||||||||||||||||||
| Value History (*The County Treasurer 405-713-1300 posts & collects actual tax amounts. Contact information HERE) | |||||||||||||
|---|---|---|---|---|---|---|---|---|---|---|---|---|---|
| Year | Market Value | Taxable Mkt Value | Gross Assessed | Exemption | Net Assessed | Millage | Est. Tax | Tax Savings | |||||
|
2025 |
134,000 |
134,000 |
14,740 |
0 |
14,740 |
122.90 |
$1,812 |
$0 |
|||||
|
2024 |
127,500 |
83,754 |
9,212 |
0 |
9,212 |
123.89 |
$1,141 |
$596 |
|||||
|
2023 |
118,500 |
79,766 |
8,773 |
0 |
8,773 |
122.82 |
$1,078 |
$523 |
|||||
|
2022 |
92,500 |
75,968 |
8,354 |
0 |
8,354 |
117.63 |
$983 |
$214 |
|||||
|
2021 |
84,000 |
72,351 |
7,957 |
0 |
7,957 |
117.70 |
$937 |
$151 |
|||||
| Property Account Status/Adjustments/Exemptions | ||
|---|---|---|
| Account # | Exemption Description | Amount |
|
R053953280 |
5% Capped Account |
0 |
| Property Deed Transaction History (Recorded in the County Clerk's Office) | |||||||
|---|---|---|---|---|---|---|---|
| Date | Type | Book | Page | Price | Grantor | Grantee | |
|
7/1/2024 |
|
Deeds |
$117,000 |
PARTON CARLTON & MARY L |
SHRADER AUSTIN & ASHLEY |
||
|
11/25/1996 |
|
Historical |
$32,500 |
BULEN LOREE G TRUST |
PARTON CARLTON & MARY L |
||
|
11/1/1996 |
|
Historical |
$0 |
BULEN LOREE G TRUST |
BULEN LOREE G TRUST |
||
|
9/10/1996 |
|
Historical |
$0 |
BULEN LOREE G |
BULEN LOREE G TRUST |
||
|
11/11/1911 |
|
Historical |
$0 |
|
BULEN LOREE G |
||
| Last Mailed Notice of Value (N.O.V.) Information/History | ||||||||
|---|---|---|---|---|---|---|---|---|
| Year | Date | Market Value | Taxable Market Value | Gross Assessed | Exemption | Net Assessed | ||
|
2026 |
02/23/2026 |
135,000 |
135,000 |
14,850 |
0 |
14,850 |
||
|
2025 |
02/14/2025 |
134,000 |
134,000 |
14,740 |
0 |
14,740 |
||
|
2024 |
02/13/2024 |
127,500 |
83,754 |
9,212 |
0 |
9,212 |
||
|
2023 |
02/14/2023 |
118,500 |
79,766 |
8,773 |
0 |
8,773 |
||
|
2022 |
03/15/2022 |
92,500 |
75,968 |
8,354 |
0 |
8,354 |
||
| Property Building Permit History | |||||||||||
|---|---|---|---|---|---|---|---|---|---|---|---|
| Issued | Permit # | Provided by | Bldg # | Description | Est Construction Cost | Status | |||||
| No Building Permit records returned. | |||||||||||
| Click button on building number to access detailed information: | ||||||
|---|---|---|---|---|---|---|
| Bldg # | Vacant/Improved Land | Bldg Description | Year Built | SqFt | # Stories | |
|
1 |
Improved |
Ranch 1 Story |
1945 |
1,047 |
1 Stories |
|