|
|
|
| Larry Stein Oklahoma County Assessor (405) 713-1200 - Public Access System |
|
|
|
|
|
|
| Real Property Display - Screen Produced 3/16/2026 4:23:16 PM | ||||
|---|---|---|---|---|
| Account: R053959430 | Type: Residential | Location: |
2407 NW 31ST ST |
|
| Building Name/Occupant: |
|
OKLAHOMA CITY |
||
| Owner Name 1: | NELSON BIG EAGLE PEGGY A |
Parcel PIN#: |
2673-05-395-9430 |
|
| Owner Name 2: | 1/4 section #: |
2673 |
||
| Owner Name 3: | Parent Acct: |
|
||
| Billing Address: | 2407 NW 31ST ST | Tax District: |
|
|
| City, State, Zip | OKLAHOMA CITY, OK 73112-7807 | School System: |
Oklahoma City #89 |
|
|
Country: (If noted) |
Land Size: |
0.2393 Acres |
||
|
Land Value: 34,403 |
|
|||
|
Sect 19-T12N-R3W Qtr NE |
MILAMS SUB ADDITION
Block
002
Lot
000
|
|||
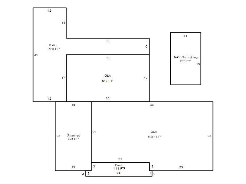
| Full Legal Description: MILAMS SUB ADDITION 002 000 LOTS 22 THRU 24 |
| Photo & Sketch (if available) | Comp Sales (ordered by relevancy) |
|
||||||||||||||||||
|
||||||||||||||||||||
| Value History (*The County Treasurer 405-713-1300 posts & collects actual tax amounts. Contact information HERE) | |||||||||||||
|---|---|---|---|---|---|---|---|---|---|---|---|---|---|
| Year | Market Value | Taxable Mkt Value | Gross Assessed | Exemption | Net Assessed | Millage | Est. Tax | Tax Savings | |||||
|
2025 |
182,500 |
88,500 |
9,735 |
2,000 |
7,735 |
122.90 |
$951 |
$1,517 |
|||||
|
2024 |
176,500 |
88,500 |
9,735 |
2,000 |
7,735 |
123.89 |
$958 |
$1,447 |
|||||
|
2023 |
163,000 |
88,500 |
9,735 |
1,000 |
8,735 |
122.82 |
$1,073 |
$1,129 |
|||||
|
2022 |
128,500 |
88,500 |
9,735 |
1,000 |
8,735 |
117.63 |
$1,027 |
$635 |
|||||
|
2021 |
115,500 |
88,500 |
9,735 |
1,000 |
8,735 |
117.70 |
$1,028 |
$467 |
|||||
| Property Account Status/Adjustments/Exemptions | ||
|---|---|---|
| Account # | Exemption Description | Amount |
|
R053959430 |
Senior Additional Homestead |
1,000 |
|
R053959430 |
Freeze Senior Valuation |
0 |
|
R053959430 |
Homestead |
1,000 |
|
R053959430 |
3% Cap Homestead |
0 |
| Property Deed Transaction History (Recorded in the County Clerk's Office) | |||||||
|---|---|---|---|---|---|---|---|
| Date | Type | Book | Page | Price | Grantor | Grantee | |
|
9/25/2015 |
|
Hmstd Off & |
$0 |
BIG EAGLE PEGGY A NELSON |
NELSON BIG EAGLE PEGGY A |
||
|
5/14/2010 |
|
Deeds |
$0 |
PATTERSON DONALD L |
BIG EAGLE PEGGY A NELSON |
||
|
1/1/1976 |
|
Historical |
$0 |
|
NELSON PEGGY ANN |
||
| Last Mailed Notice of Value (N.O.V.) Information/History | ||||||||
|---|---|---|---|---|---|---|---|---|
| Year | Date | Market Value | Taxable Market Value | Gross Assessed | Exemption | Net Assessed | ||
|
2026 |
02/23/2026 |
184,000 |
88,500 |
9,735 |
2,000 |
7,735 |
||
|
2025 |
02/14/2025 |
182,500 |
88,500 |
9,735 |
2,000 |
7,735 |
||
|
2024 |
02/13/2024 |
176,500 |
88,500 |
9,735 |
1,000 |
8,735 |
||
|
2023 |
02/14/2023 |
163,000 |
88,500 |
9,735 |
1,000 |
8,735 |
||
|
2022 |
03/15/2022 |
128,500 |
88,500 |
9,735 |
1,000 |
8,735 |
||
| Property Building Permit History | |||||||||||
|---|---|---|---|---|---|---|---|---|---|---|---|
| Issued | Permit # | Provided by | Bldg # | Description | Est Construction Cost | Status | |||||
| No Building Permit records returned. | |||||||||||
| Click button on building number to access detailed information: | ||||||
|---|---|---|---|---|---|---|
| Bldg # | Vacant/Improved Land | Bldg Description | Year Built | SqFt | # Stories | |
|
1 |
Improved |
Ranch 1 Story |
1946 |
1,547 |
1 Stories |
|