|
|
|
| Larry Stein Oklahoma County Assessor (405) 713-1200 - Public Access System |
|
|
|
|
|
|
| Real Property Display - Screen Produced 4/8/2026 5:55:37 AM | ||||
|---|---|---|---|---|
| Account: R052652760 | Type: Residential | Location: |
2221 NW 28TH ST |
|
| Building Name/Occupant: |
|
OKLAHOMA CITY |
||
| Owner Name 1: | KELLER LARRY WADE |
Parcel PIN#: |
2674-05-265-2760 |
|
| Owner Name 2: | BURTON JANA LOUISE | 1/4 section #: |
2674 |
|
| Owner Name 3: | KELLER LORRIE SUE | Parent Acct: |
|
|
| Billing Address: | 2221 NW 28TH ST | Tax District: |
|
|
| City, State, Zip | OKLAHOMA CITY, OK 73118 | School System: |
Oklahoma City #89 |
|
|
Country: (If noted) |
UNITED STATES |
Land Size: |
0.1928 Acres |
|
|
Land Value: 51,408 |
|
|||
|
Sect 19-T12N-R3W Qtr SE |
CASHION PLACE ADDITION
Block
004
Lot
014
|
|||
| Full Legal Description: CASHION PLACE ADDITION 004 014 |
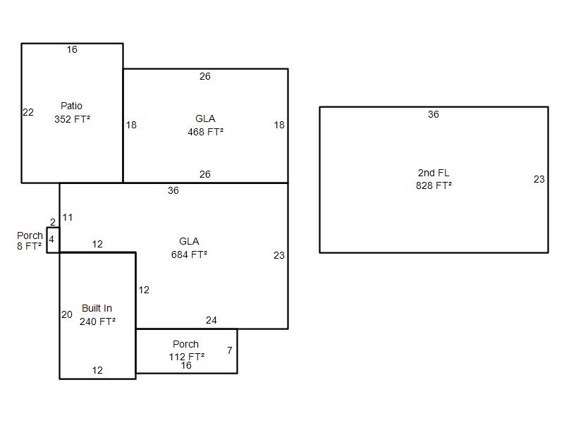
| Photo & Sketch (if available) | Comp Sales (ordered by relevancy) |
|
||||||||||||||||||
|
||||||||||||||||||||
| Value History (*The County Treasurer 405-713-1300 posts & collects actual tax amounts. Contact information HERE) | |||||||||||||
|---|---|---|---|---|---|---|---|---|---|---|---|---|---|
| Year | Market Value | Taxable Mkt Value | Gross Assessed | Exemption | Net Assessed | Millage | Est. Tax | Tax Savings | |||||
|
2026 |
270,500 |
210,492 |
23,154 |
2,000 |
21,154 |
122.90 |
$2,600 |
$1,057 |
|||||
|
2025 |
272,500 |
210,492 |
23,153 |
2,000 |
21,153 |
122.90 |
$2,600 |
$1,084 |
|||||
|
2024 |
270,000 |
204,362 |
22,479 |
0 |
22,479 |
123.89 |
$2,785 |
$895 |
|||||
|
2023 |
260,500 |
194,631 |
21,408 |
0 |
21,408 |
122.82 |
$2,630 |
$890 |
|||||
|
2022 |
215,500 |
185,363 |
20,388 |
0 |
20,388 |
117.63 |
$2,398 |
$390 |
|||||
| Property Account Status/Adjustments/Exemptions | ||
|---|---|---|
| Account # | Exemption Description | Amount |
|
R052652760 |
Freeze Senior Valuation |
0 |
|
R052652760 |
Homestead |
1,000 |
|
R052652760 |
Senior Additional Homestead |
1,000 |
|
R052652760 |
3% Cap Homestead |
0 |
| Property Deed Transaction History (Recorded in the County Clerk's Office) | |||||||
|---|---|---|---|---|---|---|---|
| Date | Type | Book | Page | Price | Grantor | Grantee | |
|
5/23/2011 |
|
Hmstd Off & |
$0 |
KELLER BERNICE H & LARRY WADE TRS KELLER EDWIN L & BERNICE |
KELLER LARRY WADE |
||
|
9/10/2007 |
|
Deeds |
$0 |
KELLER EDWIN L & BERNICE H |
KELLER BERNICE H & LARRY WADE TRS KELLER EDWIN L & BERNICE |
||
|
11/11/1911 |
|
Historical |
$0 |
|
KELLER EDWIN L & BERNICE H |
||
| Last Mailed Notice of Value (N.O.V.) Information/History | ||||||||
|---|---|---|---|---|---|---|---|---|
| Year | Date | Market Value | Taxable Market Value | Gross Assessed | Exemption | Net Assessed | ||
|
2025 |
02/14/2025 |
272,500 |
214,580 |
23,602 |
0 |
23,602 |
||
|
2024 |
02/13/2024 |
270,000 |
204,362 |
22,479 |
0 |
22,479 |
||
|
2023 |
02/14/2023 |
260,500 |
194,631 |
21,408 |
0 |
21,408 |
||
|
2022 |
03/15/2022 |
215,500 |
185,363 |
20,388 |
0 |
20,388 |
||
|
2021 |
03/19/2021 |
197,500 |
176,537 |
19,419 |
0 |
19,419 |
||
| Property Building Permit History | |||||||||||
|---|---|---|---|---|---|---|---|---|---|---|---|
| Issued | Permit # | Provided by | Bldg # | Description | Est Construction Cost | Status | |||||
| No Building Permit records returned. | |||||||||||
| Click button on building number to access detailed information: | ||||||
|---|---|---|---|---|---|---|
| Bldg # | Vacant/Improved Land | Bldg Description | Year Built | SqFt | # Stories | |
|
1 |
Improved |
2 Story |
1934 |
1,980 |
2 Stories |
|