|
|
|
| Larry Stein Oklahoma County Assessor (405) 713-1200 - Public Access System |
|
|
|
|
|
|
| Real Property Display - Screen Produced 4/5/2026 4:58:05 AM | ||||
|---|---|---|---|---|
| Account: R069100800 | Type: Residential | Location: |
2512 NW 30TH ST |
|
| Building Name/Occupant: |
|
OKLAHOMA CITY |
||
| Owner Name 1: | CALLES PEDRO F |
Parcel PIN#: |
2675-06-910-0800 |
|
| Owner Name 2: | 1/4 section #: |
2675 |
||
| Owner Name 3: | Parent Acct: |
|
||
| Billing Address: | 2512 NW 30TH ST | Tax District: |
|
|
| City, State, Zip | OKLAHOMA CITY, OK 73112-7602 | School System: |
Oklahoma City #89 |
|
|
Country: (If noted) |
Land Size: |
0.1612 Acres |
||
|
Land Value: 27,378 |
|
|||
|
Sect 19-T12N-R3W Qtr SW |
ATKINSONS HI LAND
Block
001
Lot
004
|
|||
| Full Legal Description: ATKINSONS HI LAND 001 004 |
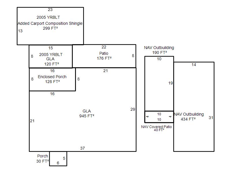
| Photo & Sketch (if available) | Comp Sales (ordered by relevancy) |
|
||||||||||||||||||
|
||||||||||||||||||||
| Value History (*The County Treasurer 405-713-1300 posts & collects actual tax amounts. Contact information HERE) | |||||||||||||
|---|---|---|---|---|---|---|---|---|---|---|---|---|---|
| Year | Market Value | Taxable Mkt Value | Gross Assessed | Exemption | Net Assessed | Millage | Est. Tax | Tax Savings | |||||
|
2026 |
175,500 |
137,650 |
15,141 |
1,000 |
14,141 |
122.90 |
$1,738 |
$635 |
|||||
|
2025 |
180,000 |
133,641 |
14,700 |
1,000 |
13,700 |
122.90 |
$1,684 |
$750 |
|||||
|
2024 |
175,000 |
129,749 |
14,271 |
1,000 |
13,271 |
123.89 |
$1,644 |
$741 |
|||||
|
2023 |
171,000 |
125,970 |
13,856 |
1,000 |
12,856 |
122.82 |
$1,579 |
$731 |
|||||
|
2022 |
146,500 |
122,301 |
13,451 |
1,000 |
12,451 |
117.63 |
$1,465 |
$431 |
|||||
| Property Account Status/Adjustments/Exemptions | ||
|---|---|---|
| Account # | Exemption Description | Amount |
|
R069100800 |
Homestead |
1,000 |
|
R069100800 |
3% Cap Homestead |
0 |
| Property Deed Transaction History (Recorded in the County Clerk's Office) | |||||||
|---|---|---|---|---|---|---|---|
| Date | Type | Book | Page | Price | Grantor | Grantee | |
|
7/20/2001 |
|
Deeds |
$64,000 |
HOGAN FRANK A II & PAMELA S |
CALLES PEDRO F |
||
|
11/8/1999 |
|
Deeds |
$30,000 |
CLARK ALLISON R |
HOGAN FRANK A II & PAMELA S |
||
|
5/5/1997 |
|
Historical |
$28,000 |
CLARK ALLISON R |
CLARK ALLISON R |
||
|
1/19/1995 |
|
Historical |
$28,000 |
WITTEN HELEN J |
CLARK ALLISON R |
||
|
11/11/1911 |
|
Historical |
$0 |
|
WITTEN HELEN J |
||
| Last Mailed Notice of Value (N.O.V.) Information/History | ||||||||
|---|---|---|---|---|---|---|---|---|
| Year | Date | Market Value | Taxable Market Value | Gross Assessed | Exemption | Net Assessed | ||
|
2026 |
02/23/2026 |
175,500 |
137,650 |
15,141 |
1,000 |
14,141 |
||
|
2025 |
02/14/2025 |
180,000 |
133,641 |
14,700 |
1,000 |
13,700 |
||
|
2024 |
02/13/2024 |
175,000 |
129,749 |
14,271 |
1,000 |
13,271 |
||
|
2023 |
02/14/2023 |
171,000 |
125,970 |
13,856 |
1,000 |
12,856 |
||
|
2022 |
03/15/2022 |
146,500 |
122,301 |
13,451 |
1,000 |
12,451 |
||
| Property Building Permit History | ||||||
|---|---|---|---|---|---|---|
| Issued | Permit # | Provided by | Bldg # | Description | Est Construction Cost | Status |
|
12/8/1997 |
10194851 |
OKLAHOMA CITY |
1 |
Fire Remodel |
38,000 |
Inactive |
|
11/21/1997 |
10194853 |
OKLAHOMA CITY |
1 |
Burn - Trip |
20,000 |
Inactive |
|
7/15/1996 |
10194854 |
OKLAHOMA CITY |
1 |
Add On |
2,000 |
Inactive |
|
8/14/1995 |
10194852 |
OKLAHOMA CITY |
1 |
Burn - Trip |
7,000 |
Inactive |
| Click button on building number to access detailed information: | ||||||
|---|---|---|---|---|---|---|
| Bldg # | Vacant/Improved Land | Bldg Description | Year Built | SqFt | # Stories | |
|
1 |
Improved |
Ranch 1 Story |
1940 |
1,065 |
1 Stories |
|