|
|
|
| Larry Stein Oklahoma County Assessor (405) 713-1200 - Public Access System |
|
|
|
|
|
|
| Real Property Display - Screen Produced 4/4/2026 10:36:38 PM | ||||
|---|---|---|---|---|
| Account: R053803450 | Type: Residential | Location: |
2625 NW 35TH ST |
|
| Building Name/Occupant: |
|
OKLAHOMA CITY |
||
| Owner Name 1: | TAYLOR JEFF A & DIANA |
Parcel PIN#: |
2676-05-380-3450 |
|
| Owner Name 2: | 1/4 section #: |
2676 |
||
| Owner Name 3: | Parent Acct: |
|
||
| Billing Address: | 1612 WESTCHESTER DR | Tax District: |
|
|
| City, State, Zip | OKLAHOMA CITY, OK 73120-1310 | School System: |
Oklahoma City #89 |
|
|
Country: (If noted) |
Land Size: |
0.1573 Acres |
||
|
Land Value: 21,578 |
|
|||
|
Sect 19-T12N-R3W Qtr NW |
STEVE PENNINGTON ADD
Block
002
Lot
027
|
|||
| Full Legal Description: STEVE PENNINGTON ADD 002 027 |
| Photo & Sketch (if available) | Comp Sales (ordered by relevancy) |
|
||||||||||||||||||
|
||||||||||||||||||||
| Value History (*The County Treasurer 405-713-1300 posts & collects actual tax amounts. Contact information HERE) | |||||||||||||
|---|---|---|---|---|---|---|---|---|---|---|---|---|---|
| Year | Market Value | Taxable Mkt Value | Gross Assessed | Exemption | Net Assessed | Millage | Est. Tax | Tax Savings | |||||
|
2026 |
132,000 |
102,678 |
11,293 |
0 |
11,293 |
122.90 |
$1,388 |
$396 |
|||||
|
2025 |
126,500 |
97,789 |
10,756 |
0 |
10,756 |
122.90 |
$1,322 |
$388 |
|||||
|
2024 |
122,000 |
93,133 |
10,243 |
0 |
10,243 |
123.89 |
$1,269 |
$393 |
|||||
|
2023 |
115,500 |
88,699 |
9,756 |
0 |
9,756 |
122.82 |
$1,198 |
$362 |
|||||
|
2022 |
99,000 |
84,476 |
9,291 |
0 |
9,291 |
117.63 |
$1,093 |
$188 |
|||||
| Property Account Status/Adjustments/Exemptions | ||
|---|---|---|
| Account # | Exemption Description | Amount |
|
R053803450 |
5% Capped Account |
0 |
| Property Deed Transaction History (Recorded in the County Clerk's Office) | |||||||
|---|---|---|---|---|---|---|---|
| Date | Type | Book | Page | Price | Grantor | Grantee | |
|
2/28/2002 |
|
Deeds |
$42,000 |
GRIST KAREN S |
TAYLOR JEFF A & DIANA |
||
|
8/30/1988 |
|
Historical |
$27,000 |
MERABANK |
GRIST KAREN S |
||
|
12/18/1987 |
|
Historical |
$0 |
GALLAGHER KYM ALLYN |
MERABANK |
||
|
4/1/1984 |
|
Historical |
$0 |
|
GALLAGHER KYM ALLYN |
||
| Last Mailed Notice of Value (N.O.V.) Information/History | ||||||||
|---|---|---|---|---|---|---|---|---|
| Year | Date | Market Value | Taxable Market Value | Gross Assessed | Exemption | Net Assessed | ||
|
2026 |
02/23/2026 |
132,000 |
102,678 |
11,293 |
0 |
11,293 |
||
|
2025 |
02/14/2025 |
126,500 |
97,789 |
10,756 |
0 |
10,756 |
||
|
2024 |
02/13/2024 |
122,000 |
93,133 |
10,243 |
0 |
10,243 |
||
|
2023 |
02/14/2023 |
115,500 |
88,699 |
9,756 |
0 |
9,756 |
||
|
2022 |
03/15/2022 |
99,000 |
84,476 |
9,291 |
0 |
9,291 |
||
| Property Building Permit History | |||||||||||
|---|---|---|---|---|---|---|---|---|---|---|---|
| Issued | Permit # | Provided by | Bldg # | Description | Est Construction Cost | Status | |||||
| No Building Permit records returned. | |||||||||||
| Click button on building number to access detailed information: | ||||||
|---|---|---|---|---|---|---|
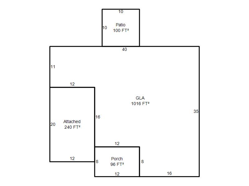
| Bldg # | Vacant/Improved Land | Bldg Description | Year Built | SqFt | # Stories | |
|
1 |
Improved |
Ranch 1 Story |
1948 |
1,016 |
1 Stories |
|