|
|
|
| Larry Stein Oklahoma County Assessor (405) 713-1200 - Public Access System |
|
|
|
|
|
|
| Real Property Display - Screen Produced 3/20/2026 5:25:24 AM | ||||
|---|---|---|---|---|
| Account: R051452100 | Type: Residential | Location: |
2035 NW 31ST ST |
|
| Building Name/Occupant: |
|
OKLAHOMA CITY |
||
| Owner Name 1: | MURPHY JALINDA M |
Parcel PIN#: |
2680-05-145-2100 |
|
| Owner Name 2: | 1/4 section #: |
2680 |
||
| Owner Name 3: | Parent Acct: |
|
||
| Billing Address: | 2035 NW 31ST ST | Tax District: |
|
|
| City, State, Zip | OKLAHOMA CITY, OK 73118-3033 | School System: |
Oklahoma City #89 |
|
|
Country: (If noted) |
Land Size: |
0.2238 Acres |
||
|
Land Value: 24,863 |
|
|||
|
Sect 20-T12N-R3W Qtr NW |
OFFUTT ADDITION
Block
001
Lot
000
|
|||
| Full Legal Description: OFFUTT ADDITION 001 000 LOTS 6 & 7 PLUS E50FT OF W147FT OF LOT A |
| Photo & Sketch (if available) | Comp Sales (ordered by relevancy) |
|
||||||||||||||||||
|
||||||||||||||||||||
| Value History (*The County Treasurer 405-713-1300 posts & collects actual tax amounts. Contact information HERE) | |||||||||||||
|---|---|---|---|---|---|---|---|---|---|---|---|---|---|
| Year | Market Value | Taxable Mkt Value | Gross Assessed | Exemption | Net Assessed | Millage | Est. Tax | Tax Savings | |||||
|
2025 |
150,000 |
96,769 |
10,643 |
0 |
10,643 |
122.90 |
$1,308 |
$720 |
|||||
|
2024 |
127,000 |
92,161 |
10,137 |
0 |
10,137 |
123.89 |
$1,256 |
$475 |
|||||
|
2023 |
126,500 |
87,773 |
9,654 |
0 |
9,654 |
122.82 |
$1,186 |
$523 |
|||||
|
2022 |
101,500 |
83,594 |
9,194 |
0 |
9,194 |
117.63 |
$1,082 |
$232 |
|||||
|
2021 |
90,500 |
79,614 |
8,757 |
0 |
8,757 |
117.70 |
$1,031 |
$141 |
|||||
| Property Account Status/Adjustments/Exemptions | ||
|---|---|---|
| Account # | Exemption Description | Amount |
|
R051452100 |
Homestead |
1,000 |
|
R051452100 |
3% Cap Homestead |
0 |
| Property Deed Transaction History (Recorded in the County Clerk's Office) | ||||||||||
|---|---|---|---|---|---|---|---|---|---|---|
| Date | Type | Book | Page | Price | Grantor | Grantee | ||||
|
9/8/2010 |
|
Other |
$0 |
CITY OF OKLAHOMA CITY |
MURPHY JALINDA M |
|||||
|
5/11/2009 |
|
Other |
$0 |
JUDGMENT & DECREE FORECLOSURE |
CITY OF OKLAHOMA CITY |
|||||
|
11/17/2004 |
|
Other |
$0 |
CITY OF OKLAHOMA CITY |
MISNER JENNY L |
|||||
|
2/6/2003 |
|
Other |
$0 |
PATRICK CASEY L H PATRICK MARY T |
CITY OF OKLAHOMA CITY |
|||||
|
12/30/1992 |
|
Historical |
$15,000 |
RIGGS RICHARD A |
PATRICK CASEY L H |
|||||
| Last Mailed Notice of Value (N.O.V.) Information/History | ||||||||
|---|---|---|---|---|---|---|---|---|
| Year | Date | Market Value | Taxable Market Value | Gross Assessed | Exemption | Net Assessed | ||
|
2026 |
02/23/2026 |
151,500 |
101,607 |
11,176 |
0 |
11,176 |
||
|
2025 |
02/14/2025 |
150,000 |
96,769 |
10,643 |
0 |
10,643 |
||
|
2024 |
02/13/2024 |
127,000 |
92,161 |
10,137 |
0 |
10,137 |
||
|
2023 |
02/14/2023 |
126,500 |
87,773 |
9,654 |
0 |
9,654 |
||
|
2022 |
03/15/2022 |
101,500 |
83,594 |
9,194 |
0 |
9,194 |
||
| Property Building Permit History | |||||||||||
|---|---|---|---|---|---|---|---|---|---|---|---|
| Issued | Permit # | Provided by | Bldg # | Description | Est Construction Cost | Status | |||||
| No Building Permit records returned. | |||||||||||
| Click button on building number to access detailed information: | ||||||
|---|---|---|---|---|---|---|
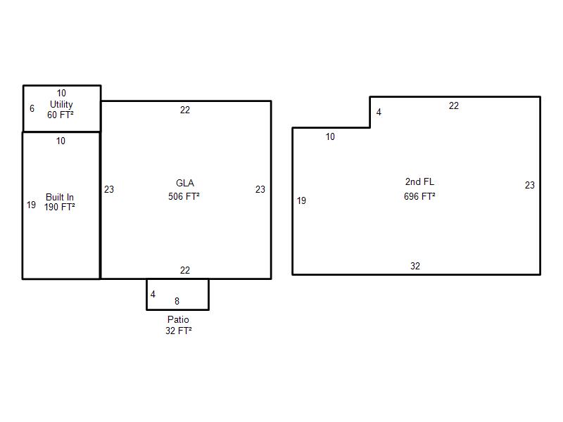
| Bldg # | Vacant/Improved Land | Bldg Description | Year Built | SqFt | # Stories | |
|
1 |
Improved |
1½ Story Fin |
1937 |
1,202 |
1.5 Stories |
|