Larry Stein Oklahoma County Assessor (405) 713-1200 - Public Access System
Home Contact Us Guest Book Map Search New Search
Real Property Display - Screen Produced   4/25/2026 5:59:40 PM 
Account: R151811050  Type: Residential

  

Location:

8815 FAIRFIELD GREENS DR

Building Name/Occupant:

 

MIDWEST CITY

Owner Name 1:  STREET VICTOR A REV TRUST

Parcel PIN#:

1406-15-181-1050

Owner Name 2:    1/4 section #:

1406

Owner Name 3:    Parent Acct:

 

Billing Address:  94 1080 ANANIA CIR, Unit 101 Tax District:

City, State, Zip  MILILANI, HI  96789 School System:

Mid-Del #52

Country: (If noted)

  

Land Size:

0.0742  Acres

Personal Property

Land Value: 14,230 

Treasurer:

Sect 2-T11N-R2W Qtr SE

 FAIRFIELD GREENS REPT BLKS 1&2   Block 001  Lot 006   Subdivision Sales
 Full Legal Description:  FAIRFIELD GREENS REPT BLKS 1&2 001 006

NOTE:  The following sales may or may not be used to determine Fair Market Value

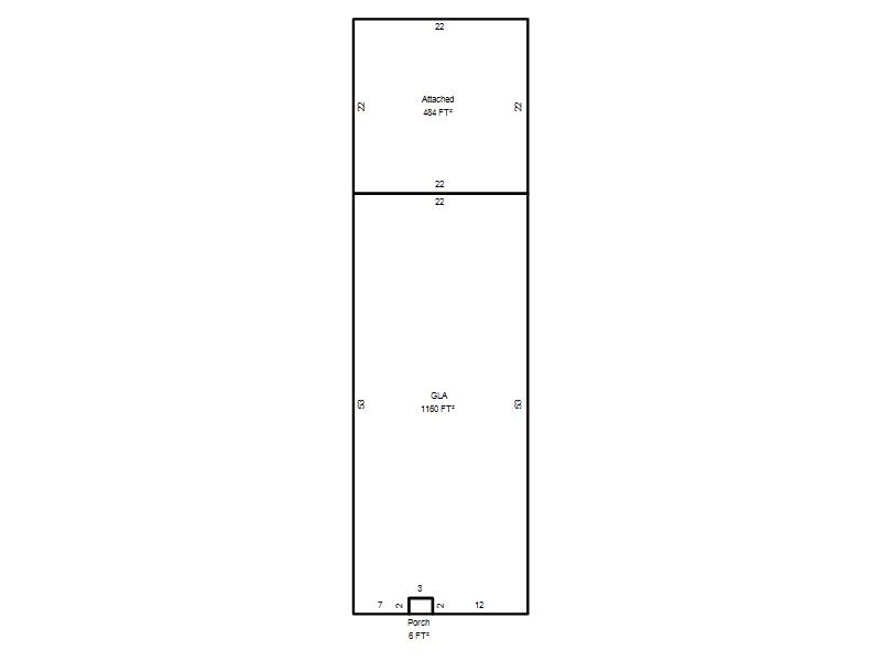
Photo & Sketch (if available) Sales  Sales Report

 8811 FAIRFIELD GREENS DR MIDWEST CITY, OK

04/30/2024

 $142,000 

 1654 EMBER LN MIDWEST CITY, OK

11/12/2025

 $125,000 

 2949 VILLAGE CIR OKLAHOMA CITY, OK

10/31/2025

 $215,000 

 13917 CROSSING WAY EAST OKLAHOMA CITY, OK

10/15/2025

 $122,500 

 9121 KNOTTINGHAM MIDWEST CITY, OK

05/04/2023

 $128,000 

 11404 BENTTREE CIR OKLAHOMA CITY, OK

07/18/2025

 $138,000 

Value History  (*The County Treasurer 405-713-1300 posts & collects actual tax amounts.  Contact information  HERE)
Year Market Value Taxable Mkt Value Gross Assessed Exemption Net Assessed Millage Est. Tax Tax Savings

2026

146,000 

100,712 

11,077 

11,077 

119.58 

$1,325 

$596 

2025

139,000 

95,917 

10,550 

10,550 

119.58 

$1,262 

$567 

2024

92,000 

91,350 

10,048 

10,048 

122.51 

$1,231 

$9 

[1/10]
Property Account Status/Adjustments/Exemptions
Account # Exemption Description Amount

R151811050

5% Capped Account

Property Deed Transaction History   (Recorded in the County Clerk's Office)
Date Type Book Page Price Grantor Grantee

12/3/2025

Hmstd Off &

16315

653

 $0 

STREET VICTOR A

STREET VICTOR A REV TRUST

5/11/1993

Historical

6430

1605

 $56,000 

KENNEDY DEBRAH S

STREET VICTOR A

6/1/1983

Historical

5016

1720

 $0 

 

KENNEDY DEBRAH S

Last Mailed Notice of Value (N.O.V.) Information/History
Year Date Market Value Taxable Market Value Gross Assessed Exemption Net Assessed

2026

02/06/2026

146,000 

100,712 

11,077 

11,077 

2025

01/31/2025

139,000 

95,917 

10,550 

10,550 

2024

01/22/2024

92,000 

91,350 

10,048 

10,048 

[1/4]
Property Building Permit History
Issued Permit # Provided by Bldg # Description Est Construction Cost Status
No Building Permit records returned.
Click button below to access detailed information and additional property photos:
  Bldg # Vacant/Improved Land Bldg Description Year Built SqFt # Stories

Click

1

Improved

Townhouse One Story

1980

1,160 

1 Stories