|
|
|
| Larry Stein Oklahoma County Assessor (405) 713-1200 - Public Access System |
|
|
|
|
|
|
| Real Property Display - Screen Produced 4/2/2026 11:22:29 AM | ||||
|---|---|---|---|---|
| Account: R048845600 | Type: Residential | Location: |
828 NW 34TH ST |
|
| Building Name/Occupant: |
|
OKLAHOMA CITY |
||
| Owner Name 1: | MCCAMPBELL KATHRYN |
Parcel PIN#: |
2684-04-884-5600 |
|
| Owner Name 2: | 1/4 section #: |
2684 |
||
| Owner Name 3: | Parent Acct: |
|
||
| Billing Address: | 828 NW 34TH ST | Tax District: |
|
|
| City, State, Zip | OKLAHOMA CITY, OK 73118-7202 | School System: |
Oklahoma City #89 |
|
|
Country: (If noted) |
Land Size: |
0.1550 Acres |
||
|
Land Value: 35,100 |
|
|||
|
Sect 21-T12N-R3W Qtr NW |
ROSS MANN ADDITION
Block
005
Lot
000
|
|||
| Full Legal Description: ROSS MANN ADDITION 005 000 W20FT LOT 15 ALL LOT 16 & E5FT LOT 17 |
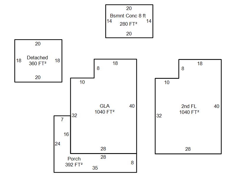
| Photo & Sketch (if available) | Comp Sales (ordered by relevancy) |
|
||||||||||||||||||
|
||||||||||||||||||||
| Value History (*The County Treasurer 405-713-1300 posts & collects actual tax amounts. Contact information HERE) | |||||||||||||
|---|---|---|---|---|---|---|---|---|---|---|---|---|---|
| Year | Market Value | Taxable Mkt Value | Gross Assessed | Exemption | Net Assessed | Millage | Est. Tax | Tax Savings | |||||
|
2026 |
301,500 |
201,415 |
22,155 |
0 |
22,155 |
122.90 |
$2,723 |
$1,353 |
|||||
|
2025 |
294,500 |
191,824 |
21,099 |
0 |
21,099 |
122.90 |
$2,593 |
$1,388 |
|||||
|
2024 |
281,500 |
182,690 |
20,095 |
0 |
20,095 |
123.89 |
$2,490 |
$1,347 |
|||||
|
2023 |
275,000 |
173,991 |
19,138 |
0 |
19,138 |
122.82 |
$2,351 |
$1,365 |
|||||
|
2022 |
222,000 |
165,706 |
18,226 |
0 |
18,226 |
117.63 |
$2,144 |
$728 |
|||||
| Property Account Status/Adjustments/Exemptions | ||
|---|---|---|
| Account # | Exemption Description | Amount |
|
R048845600 |
5% Capped Account |
0 |
| Property Deed Transaction History (Recorded in the County Clerk's Office) | |||||||
|---|---|---|---|---|---|---|---|
| Date | Type | Book | Page | Price | Grantor | Grantee | |
|
7/15/2015 |
|
Hmstd Off & |
$0 |
MONTALTO 1999 LIVING TRUST |
MCCAMPBELL KATHRYN |
||
|
1/14/2003 |
|
Deeds |
$0 |
MCCAMPBELL KATHRYN MONTALTO CAROLYN |
MONTALTO 1999 LIVING TRUST |
||
|
3/15/2000 |
|
Deeds |
$82,500 |
WILKINSON JOHN B JR |
MCCAMPBELL KATHRYN MONTALTO CAROLYN |
||
|
6/1/1982 |
|
Historical |
$0 |
|
WILKINSON JOHN B JR |
||
| Last Mailed Notice of Value (N.O.V.) Information/History | ||||||||
|---|---|---|---|---|---|---|---|---|
| Year | Date | Market Value | Taxable Market Value | Gross Assessed | Exemption | Net Assessed | ||
|
2026 |
02/23/2026 |
301,500 |
201,415 |
22,155 |
0 |
22,155 |
||
|
2025 |
02/14/2025 |
294,500 |
191,824 |
21,099 |
0 |
21,099 |
||
|
2024 |
02/13/2024 |
281,500 |
182,690 |
20,095 |
0 |
20,095 |
||
|
2023 |
02/14/2023 |
275,000 |
173,991 |
19,138 |
0 |
19,138 |
||
|
2022 |
03/15/2022 |
222,000 |
165,706 |
18,226 |
0 |
18,226 |
||
| Property Building Permit History | |||||||||||
|---|---|---|---|---|---|---|---|---|---|---|---|
| Issued | Permit # | Provided by | Bldg # | Description | Est Construction Cost | Status | |||||
| No Building Permit records returned. | |||||||||||
| Click button on building number to access detailed information: | ||||||
|---|---|---|---|---|---|---|
| Bldg # | Vacant/Improved Land | Bldg Description | Year Built | SqFt | # Stories | |
|
1 |
Improved |
2 Story |
1920 |
2,080 |
2 Stories |
|