|
|
|
| Larry Stein Oklahoma County Assessor (405) 713-1200 - Public Access System |
|
|
|
|
|
|
| Real Property Display - Screen Produced 4/25/2026 6:03:54 PM | ||||
|---|---|---|---|---|
| Account: R151811180 | Type: Residential | Location: |
8921 FAIRFIELD GREENS DR |
|
| Building Name/Occupant: |
|
MIDWEST CITY |
||
| Owner Name 1: | SUDERS RENTAL PROPERTIES LLC |
Parcel PIN#: |
1406-15-181-1180 |
|
| Owner Name 2: | 1/4 section #: |
1406 |
||
| Owner Name 3: | Parent Acct: |
|
||
| Billing Address: | 2624 W WILSHIRE BLVD | Tax District: |
|
|
| City, State, Zip | OKLAHOMA CITY, OK 73116 | School System: |
Mid-Del #52 |
|
|
Country: (If noted) |
Land Size: |
0.0616 Acres |
||
|
Land Value: 11,810 |
|
|||
|
Sect 2-T11N-R2W Qtr SE |
FAIRFIELD GREENS REPT BLKS 1&2
Block
001
Lot
019
|
|||
| Full Legal Description: FAIRFIELD GREENS REPT BLKS 1&2 001 019 |
| Value History (*The County Treasurer 405-713-1300 posts & collects actual tax amounts. Contact information HERE) | |||||||||||||
|---|---|---|---|---|---|---|---|---|---|---|---|---|---|
| Year | Market Value | Taxable Mkt Value | Gross Assessed | Exemption | Net Assessed | Millage | Est. Tax | Tax Savings | |||||
|
2026 |
139,000 |
96,082 |
10,568 |
0 |
10,568 |
119.58 |
$1,264 |
$565 |
|||||
|
2025 |
132,500 |
91,507 |
10,065 |
0 |
10,065 |
119.58 |
$1,204 |
$539 |
|||||
|
2024 |
91,500 |
87,150 |
9,586 |
0 |
9,586 |
122.51 |
$1,174 |
$59 |
|||||
| Property Account Status/Adjustments/Exemptions | ||
|---|---|---|
| Account # | Exemption Description | Amount |
|
R151811180 |
5% Capped Account |
0 |
| Property Deed Transaction History (Recorded in the County Clerk's Office) | ||||||||||
|---|---|---|---|---|---|---|---|---|---|---|
| Date | Type | Book | Page | Price | Grantor | Grantee | ||||
|
2/3/2015 |
|
Hmstd Off & |
$0 |
SUDER DAVID J & DARLA M TRS |
SUDERS RENTAL PROPERTIES LLC |
|||||
|
10/23/2014 |
|
Mult Parcel |
$2,000,000 |
DOUGLAS DEV CORP |
SUDER DAVID J & DARLA M TRS SUDER LIVING TRUST |
|||||
|
1/2/2008 |
|
Mult Parcel |
$1,305,000 |
FAIRFIELD-FAIRHILL TOWNHOMES LIMITED PARTNERSHIP |
DOUGLAS DEV CORP |
|||||
| Last Mailed Notice of Value (N.O.V.) Information/History | ||||||||
|---|---|---|---|---|---|---|---|---|
| Year | Date | Market Value | Taxable Market Value | Gross Assessed | Exemption | Net Assessed | ||
|
2026 |
02/06/2026 |
139,000 |
96,082 |
10,568 |
0 |
10,568 |
||
|
2025 |
01/31/2025 |
132,500 |
91,507 |
10,065 |
0 |
10,065 |
||
|
2024 |
01/22/2024 |
91,500 |
87,150 |
9,586 |
0 |
9,586 |
||
| Property Building Permit History | |||||||||||
|---|---|---|---|---|---|---|---|---|---|---|---|
| Issued | Permit # | Provided by | Bldg # | Description | Est Construction Cost | Status | |||||
| No Building Permit records returned. | |||||||||||
| Click button below to access detailed information and additional property photos: | ||||||
|---|---|---|---|---|---|---|
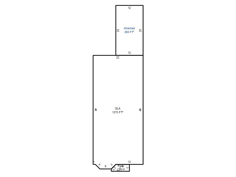
| Bldg # | Vacant/Improved Land | Bldg Description | Year Built | SqFt | # Stories | |
|
1 |
Improved |
Townhouse One Story |
1982 |
1,070 |
1 Stories |
|