|
|
|
| Larry Stein Oklahoma County Assessor (405) 713-1200 - Public Access System |
|
|
|
|
|
|
| Real Property Display - Screen Produced 4/25/2026 6:00:32 PM | ||||
|---|---|---|---|---|
| Account: R151811280 | Type: Residential | Location: |
8906 FAIRFIELD GREENS DR |
|
| Building Name/Occupant: |
|
MIDWEST CITY |
||
| Owner Name 1: | GOODMAN WAYNE & LEONA M TRS ETAL |
Parcel PIN#: |
1406-15-181-1280 |
|
| Owner Name 2: | GOODMAN WAYNE E LIVING TRUST | 1/4 section #: |
1406 |
|
| Owner Name 3: | GOODMAN WAYNE & LEONA M TRS | Parent Acct: |
|
|
| Billing Address: | 3 E CYPRESS AVE, Unit 103 | Tax District: |
|
|
| City, State, Zip | YUKON, OK 73099 | School System: |
Mid-Del #52 |
|
|
Country: (If noted) |
Land Size: |
0.0692 Acres |
||
|
Land Value: 13,257 |
|
|||
|
Sect 2-T11N-R2W Qtr SE |
FAIRFIELD GREENS REPT BLKS 1&2
Block
002
Lot
029
|
|||
| Full Legal Description: FAIRFIELD GREENS REPT BLKS 1&2 002 029 |
| Value History (*The County Treasurer 405-713-1300 posts & collects actual tax amounts. Contact information HERE) | |||||||||||||
|---|---|---|---|---|---|---|---|---|---|---|---|---|---|
| Year | Market Value | Taxable Mkt Value | Gross Assessed | Exemption | Net Assessed | Millage | Est. Tax | Tax Savings | |||||
|
2026 |
146,000 |
103,083 |
11,338 |
0 |
11,338 |
119.58 |
$1,356 |
$565 |
|||||
|
2025 |
141,000 |
98,175 |
10,799 |
0 |
10,799 |
119.58 |
$1,291 |
$563 |
|||||
|
2024 |
93,500 |
93,500 |
10,285 |
0 |
10,285 |
122.51 |
$1,260 |
$0 |
|||||
| Property Account Status/Adjustments/Exemptions | ||
|---|---|---|
| Account # | Exemption Description | Amount |
|
R151811280 |
5% Capped Account |
0 |
| Property Deed Transaction History (Recorded in the County Clerk's Office) | ||||||||||
|---|---|---|---|---|---|---|---|---|---|---|
| Date | Type | Book | Page | Price | Grantor | Grantee | ||||
|
2/4/2008 |
|
Deeds |
$0 |
GOODMAN WAYNE & LEONA M |
GOODMAN WAYNE & LEONA M TRS ETAL |
|||||
|
5/1/2007 |
|
Deeds |
$89,500 |
CRISWELL BETTY L TRS CRISWELL BETTY L LIVING TRUST |
GOODMAN WAYNE & LEONA M |
|||||
|
10/2/1996 |
|
Historical |
$74,000 |
OLIVER LINDON W TRS |
CRISWELL BETTY L TRS |
|||||
| Last Mailed Notice of Value (N.O.V.) Information/History | ||||||||
|---|---|---|---|---|---|---|---|---|
| Year | Date | Market Value | Taxable Market Value | Gross Assessed | Exemption | Net Assessed | ||
|
2026 |
02/06/2026 |
146,000 |
103,083 |
11,338 |
0 |
11,338 |
||
|
2025 |
01/31/2025 |
141,000 |
98,175 |
10,799 |
0 |
10,799 |
||
|
2024 |
01/22/2024 |
93,500 |
93,500 |
10,285 |
0 |
10,285 |
||
| Property Building Permit History | |||||||||||
|---|---|---|---|---|---|---|---|---|---|---|---|
| Issued | Permit # | Provided by | Bldg # | Description | Est Construction Cost | Status | |||||
| No Building Permit records returned. | |||||||||||
| Click button below to access detailed information and additional property photos: | ||||||
|---|---|---|---|---|---|---|
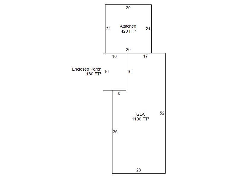
| Bldg # | Vacant/Improved Land | Bldg Description | Year Built | SqFt | # Stories | |
|
1 |
Improved |
Townhouse One Story |
1981 |
1,100 |
1 Stories |
|