Larry Stein Oklahoma County Assessor (405) 713-1200 - Public Access System
Home Contact Us Guest Book Map Search New Search
Real Property Display - Screen Produced   4/25/2026 6:00:20 PM 
Account: R151811360  Type: Residential

  

Location:

8812 FAIRFIELD GREENS DR

Building Name/Occupant:

 

MIDWEST CITY

Owner Name 1:  SUDERS RENTAL PROPERTIES LLC

Parcel PIN#:

1406-15-181-1360

Owner Name 2:    1/4 section #:

1406

Owner Name 3:    Parent Acct:

 

Billing Address:  2624 W WILSHIRE BLVD Tax District:

City, State, Zip  OKLAHOMA CITY, OK  73116-3024 School System:

Mid-Del #52

Country: (If noted)

  

Land Size:

0.0621  Acres

Personal Property

Land Value: 11,906 

Treasurer:

Sect 2-T11N-R2W Qtr SE

 FAIRFIELD GREENS REPT BLKS 1&2   Block 002  Lot 037   Subdivision Sales
 Full Legal Description:  FAIRFIELD GREENS REPT BLKS 1&2 002 037

NOTE:  The following sales may or may not be used to determine Fair Market Value

Photo & Sketch (if available) Sales  Sales Report

 3119 W WILSHIRE BLVD OKLAHOMA CITY, OK

07/08/2025

 $160,000 

 3051 W WILSHIRE BLVD OKLAHOMA CITY, OK

03/20/2025

 $155,000 

 9405 EAGLE HILL DR OKLAHOMA CITY, OK

07/30/2025

 $228,500 

 4702 HEMLOCK LN OKLAHOMA CITY, OK

12/08/2025

 $175,000 

 10603 WHITE OAK CANYON RD OKLAHOMA CITY, OK

03/04/2025

 $124,000 

 4717 HEMLOCK LN OKLAHOMA CITY, OK

07/14/2025

 $205,000 

Value History  (*The County Treasurer 405-713-1300 posts & collects actual tax amounts.  Contact information  HERE)
Year Market Value Taxable Mkt Value Gross Assessed Exemption Net Assessed Millage Est. Tax Tax Savings

2026

157,000 

109,147 

12,005 

12,005 

119.58 

$1,436 

$629 

2025

151,000 

103,950 

11,434 

11,434 

119.58 

$1,367 

$619 

2024

99,000 

99,000 

10,890 

10,890 

122.51 

$1,334 

$0 

[1/10]
Property Account Status/Adjustments/Exemptions
Account # Exemption Description Amount

R151811360

5% Capped Account

Property Deed Transaction History   (Recorded in the County Clerk's Office)
Date Type Book Page Price Grantor Grantee

2/3/2015

Hmstd Off &

12744

1357

 $0 

SUDER DAVID J & DARLA M TRS

SUDERS RENTAL PROPERTIES LLC

10/23/2014

Mult Parcel

12681

1722

 $2,000,000 

DOUGLAS DEV CORP

SUDER DAVID J & DARLA M TRS SUDER LIVING TRUST

8/15/2012

Deeds

12010

1074

 $90,000 

YOUNG EDENA ROXANNE

DOUGLAS DEVELOPMENT CORP

[1/3]
Last Mailed Notice of Value (N.O.V.) Information/History
Year Date Market Value Taxable Market Value Gross Assessed Exemption Net Assessed

2026

02/06/2026

157,000 

109,147 

12,005 

12,005 

2025

01/31/2025

151,000 

103,950 

11,434 

11,434 

2024

01/22/2024

99,000 

99,000 

10,890 

10,890 

[1/3]
Property Building Permit History
Issued Permit # Provided by Bldg # Description Est Construction Cost Status
No Building Permit records returned.
Click button below to access detailed information and additional property photos:
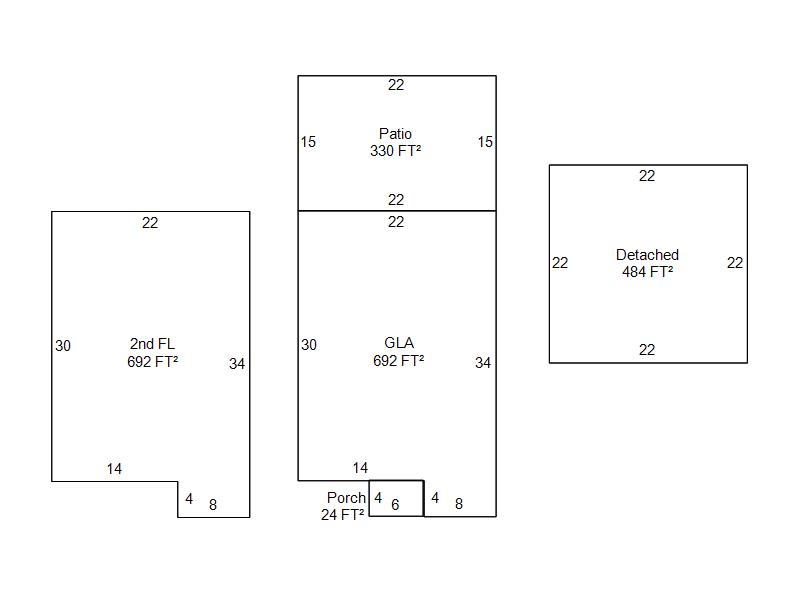
  Bldg # Vacant/Improved Land Bldg Description Year Built SqFt # Stories

Click

1

Improved

Townhouse Multiple Story

1980

1,384 

2 Stories